Militari - Metrou Gorjului

60.000 €

Militari, Bucureşti

Nr. camere:
2
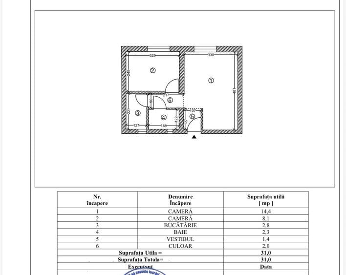
Suprafață utilă:
31 mp
Etaj:
4 / 4
An construcție:
1970
Nr. niveluri:
4

Descriere apartament

Militari - aproape de Metrou Gorjului ,se vinde un Apartament de 2 camere, spatios, luminos, bine compartimentat, cu o suprafata utila de 31 mp , etaj 4 din 4, fara risc seismic, fara imbunatatiri, orientare cardinala Vest, vedere spate , liniste , zona verde. Blocul ( constructie anii "70 ) este situat stradal, pe strada Valea Lunga vis a vis de magazinul Profi , farmacia Dr Max. NB ! Se poate amenaja simplu, investitie minimai si mai frumos decat apartamentele " noi de la marginea Bucurestiului ".
Citește mai mult Citește mai puțin
Confort 1 Decomandat Nemobilat Aer condiționat Calorifere Termoficare Necesită renovare

Detalii apartament

ID anunț: 4022815 Actualizat în: 31 Martie 2026
Nr. camere: 2
Suprafață utilă: 31 mp
Suprafață utilă totală: 31 mp
Compartimentare: Decomandat
Confort: 1
Etaj: Etaj 4 / 4
Nr. băi: 1
An construcție: 1970
Regim înălțime: P+4E

Istoric preț

Facilități

Pereți
Vopsea lavabilă
Ușă intrare
Lemn
Uși interior
Lemn Panel
Stare interior
Necesită renovare
Ferestre cu geam termopan
Lemn
Utilități
Curent Canalizare Apă
Sistem încălzire
Termoficare Calorifere
Climatizare
Aer condiționat
Mobilat
Nemobilat
Facilități imobil
Interfon Acoperiș
Amenajare străzi
Asfaltate Iluminat stradal Mijloace de transport în comun
Servicii imobil
Administrare

Puncte de interes

Mijloace transport
transport
Statia Valea Lunga, linia 137, 236, 336, 136, N115, 138,61,62
Mijloace transport aprox. 186 m
transport
Statia Bd. Iuliu Maniu / Apusului, linia 137, 178, 236, 336, 136, N115, 138, N120, 61,62
Mijloace transport aprox. 309 m
transport
Statia Piata Gorjului: 137, 138
Mijloace transport aprox. 404 m
transport
Gorjului
Mijloace transport aprox. 539 m
Școală
education
Scoala nr.157 Ion Dumitriu
Învățământ aprox. 144 m
education
Scoala Nr. 157 Ion Dumitriu
Învățământ aprox. 167 m
education
Gradinita nr. 195
Învățământ aprox. 215 m
education
Gradinita de copii nr 195 "Prichindel"
Învățământ aprox. 278 m
Recreere
parks
Parc
Recreere aprox. 284 m
restaurants
Miraj Pizza & Pub
Restaurante aprox. 353 m
shopping
Profi
Supermarket/Mall aprox. 365 m
shopping
Carrefour Market - Piata Gorjului
Supermarket/Mall aprox. 422 m

Proprietăți similare

Apartament cu 2 camere în Militari
58.800 €
București, Militari
2 camere
50 mp
Etaj 5
Apartament cu 2 camere în Militari
58.800 €
București, Militari
2 camere
50 mp
Etaj 6 / 10
Apartament cu 2 camere în Militari
62.990 €
București, Militari
2 camere
44 mp
Etaj 7
Apartament cu 2 camere în Militari
61.600 €
București, Militari
2 camere
44 mp
Etaj 3
Apartament cu 2 camere semidecomandat în Militari
59.999 €
București, Militari
2 camere
32 mp
Parter
Apartament cu 2 camere semidecomandat, mobilat în Militari
64.900 €
București, Militari
2 camere
45 mp
Etaj 4
Apartament cu 2 camere în Militari
58.800 €
București, Militari
2 camere
50 mp
Etaj 2 / 10
Apartament cu 2 camere în Militari
65.990 €
București, Militari
2 camere
44 mp
Etaj 1
Apartament cu 2 camere în Militari
65.990 €
București, Militari
2 camere
44 mp
Etaj 5

Abonează-te la newsletter să fii primul care primește cele mai noi recomandări de proprietăți și sfaturi de la experți.