Apartament 2 camere Bloc 2023 Iuliu Maniu Sector 6

120.000 €

Militari, Bucureşti

Nr. camere:
2
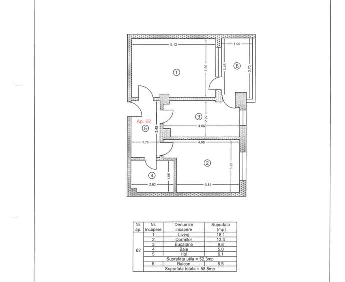
Suprafață utilă:
52 mp
Etaj:
5 / 7
An construcție:
2023
Nr. niveluri:
7

Descriere apartament

Va prezint spre vanzare un apartament cu 2 camere situat în bloc constructie 2023, etaj 5/7 situat pe Bulevardul Iuliu Maniu, nr. 405, chiar la intrarea in oraș, cu acces rapid spre autostrada si punctele de interes din zona. Apartamentul se vinde nemobilat, dupa cum rezulta din imagini. Vanzator persoana fizica, nu se plateste TVA! Comision achizitie 2%. Pentru mai multe detalii, sunati la numarul de telefon din anunt!
Citește mai mult Citește mai puțin
Decomandat

Detalii apartament

ID anunț: 3869978 Actualizat în: 17 Martie 2026
Nr. camere: 2
Suprafață utilă: 52 mp
Suprafață utilă totală: 52 mp
Compartimentare: Decomandat
Etaj: Etaj 5 / 7
Nr. băi: 1
An construcție: 2023
Regim înălțime: P+7E

Istoric preț

Facilități

Facilități
Balcon

Puncte de interes

Mijloace transport
transport
Statia Soseaua de Centura, linia 137, 236,421
Mijloace transport aprox. 412 m
transport
Capat Liceul Industrial de Transporturi linii : 62
Mijloace transport aprox. 514 m
transport
Statia Grup Scolar Auto, linia 137, 236, N115
Mijloace transport aprox. 568 m
transport
Statia CFR Bucuresti Vest
Mijloace transport aprox. 849 m
Școală
education
Grup Scolar Auto
Învățământ aprox. 520 m
education
Colegiul Tehnic "Iuliu Maniu"
Învățământ aprox. 575 m
education
Grupul Şcolar Industrial "Petru Poni" (nr. 7).
Învățământ aprox. 1680 m
education
Liceul Tehnologic Petru Poni
Învățământ aprox. 1702 m
Recreere
shopping
Depozit Grewe
Supermarket/Mall aprox. 496 m
restaurants
Sunset Hotel
Restaurante aprox. 621 m
shopping
Hornbach Militari
Supermarket/Mall aprox. 767 m
parks
Spaţiu verde Praktiker Militari
Recreere aprox. 1076 m

Proprietăți similare

Apartament cu 3 camere în Militari
114.900 €
București, Militari
3 camere
67 mp
Etaj 4
Apartament cu 4 camere semidecomandat în Militari
128.500 €
București, Militari
4 camere
76 mp
Etaj 3
Apartament cu 3 camere decomandat, mobilat în Militari
109.900 €
București, Militari
3 camere
66,2 mp
Etaj 5 / 9
Apartament cu 2 camere decomandat, mobilat în Militari
116.000 €
București, Militari
2 camere
53 mp
Etaj 5
Apartament cu 3 camere decomandat în Militari
125.000 €
București, Militari
3 camere
64 mp
Parter
Apartament cu 2 camere semidecomandat, mobilat în Militari
110.000 €
București, Militari
2 camere
48 mp
Parter
Apartament cu 3 camere decomandat, mobilat în Militari
123.000 €
București, Militari
3 camere
69 mp
Etaj 8
Apartament cu 3 camere decomandat în Militari
127.000 €
București, Militari
3 camere
72,09 mp
Etaj 9
Apartament cu 3 camere decomandat, mobilat în Militari
119.000 €
București, Militari
3 camere
70 mp
Etaj 3

Abonează-te la newsletter să fii primul care primește cele mai noi recomandări de proprietăți și sfaturi de la experți.