Apartament 2 camere . Pret 59000 Euro. Metrou Gorjului

59.000 €

Militari, Bucureşti

Nr. camere:
2
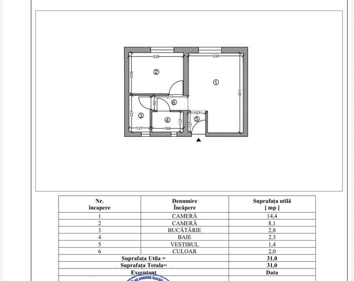
Suprafață utilă:
31 mp
Etaj:
4 / 4
An construcție:
1964
Nr. niveluri:
4

Descriere apartament

Militari - Metrou - piata Gorjului , la numai 10 min de mers pe jos ,se vinde un Apartament de 2 camere,spatios, luminos, bine compartimentat, cu o suprafata de 31 mp , etaj 4 din 4, bloc din anul 1964, fara risc seismic si fara imbunatatiri, orientare cardinala Vest, vedere spate , liniste. Se poate amenaja usor si frumos. Blocul este stradal, pe strada Valea Lunga vis a vis de magazinul Profi , farmacia Dr Max. Fara comision, costuri mici.
Citește mai mult Citește mai puțin
Confort 1 Decomandat Nemobilat Aer condiționat Calorifere Termoficare Necesită renovare

Detalii apartament

ID anunț: 3243439 Actualizat în: 11 Martie 2026
Nr. camere: 2
Suprafață utilă: 31 mp
Suprafață utilă totală: 31 mp
Compartimentare: Decomandat
Confort: 1
Etaj: Etaj 4 / 4
Nr. băi: 1
An construcție: 1964
Regim înălțime: P+4E

Istoric preț

Facilități

Utilități
Gaze Canalizare Curent Apă
Sistem încălzire
Calorifere Termoficare
Climatizare
Aer condiționat
Podele
Linoleum
Ușă intrare
Pal
Uși interior
Panel
Stare interior
Necesită renovare
Amenajare străzi
Asfaltate Mijloace de transport în comun Iluminat stradal
Servicii imobil
Administrare

Puncte de interes

Mijloace transport
transport
Statia Valea Lunga, linia 137, 236, 336, 136, N115, 138,61,62
Mijloace transport aprox. 41 m
transport
Statia Piata Gorjului: 137, 138
Mijloace transport aprox. 288 m
transport
Statia Bd. Iuliu Maniu / Apusului, linia 137, 178, 236, 336, 136, N115, 138, N120, 61,62
Mijloace transport aprox. 335 m
transport
Gorjului
Mijloace transport aprox. 430 m
Școală
education
Scoala nr.157 Ion Dumitriu
Învățământ aprox. 264 m
education
Gradinita Blue Fairy
Învățământ aprox. 270 m
education
Scoala Nr. 157 Ion Dumitriu
Învățământ aprox. 278 m
education
Gradinita de copii nr 195 "Prichindel"
Învățământ aprox. 291 m
Recreere
parks
Parc
Recreere aprox. 230 m
restaurants
Shaorma Gorjului
Restaurante aprox. 241 m
shopping
Carrefour Market - Piata Gorjului
Supermarket/Mall aprox. 301 m
shopping
Profi
Supermarket/Mall aprox. 437 m

Proprietăți similare

Apartament cu 2 camere semidecomandat în Militari
64.500 €
București, Militari
2 camere
38 mp
Etaj 8
Apartament cu 2 camere semidecomandat, mobilat în Militari
61.900 €
București, Militari
2 camere
33,2 mp
Etaj 3 / 8
Apartament cu 2 camere semidecomandat în Militari
60.000 €
București, Militari
2 camere
40 mp
Etaj 1 / 6
Apartament cu 2 camere decomandat, mobilat în Militari
54.999 €
București, Militari
2 camere
33 mp
Etaj 2
Apartament cu 2 camere semidecomandat în Militari
61.999 €
București, Militari
2 camere
38 mp
Etaj 5 / 6
Apartament cu 2 camere semidecomandat în Militari
63.000 €
București, Militari
2 camere
41 mp
Etaj 5 / 6
Apartament cu 2 camere semidecomandat în Militari
60.000 €
București, Militari
2 camere
40 mp
Etaj 1 / 7
Apartament cu 2 camere decomandat în Militari
56.000 €
București, Militari
2 camere
43 mp
Etaj 7 / 8
Apartament cu 2 camere decomandat în Militari
57.500 €
București, Militari
2 camere
46 mp
Demisol / 5

Abonează-te la newsletter să fii primul care primește cele mai noi recomandări de proprietăți și sfaturi de la experți.