Decomandat* bloc 1980*etaj 3/8* 7 minute metrou* Str. Azurului

109.000 €

Gorjului, Bucureşti

Nr. camere:
2
Suprafață utilă:
51 mp
Etaj:
3 / 8
An construcție:
1980
Nr. niveluri:
8

Descriere apartament

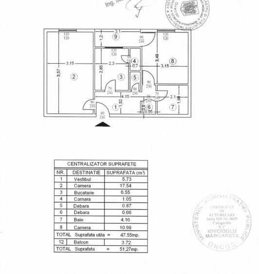
Va propunem spre achizitie un apartament cu 2 camere, decomandat, amplasat la etajul 3 din 8 al unui imobil solid, dat in folosinta in anul 1980, situat pe strada Azurului, intr-o zona echilibrata si bine conectata, la aproximativ 7 minute de mers pe jos de statia de metrou Gorjului si 10 minute de statia Lujerului. Apartamentul beneficiaza de orientare S–SV, lumina naturala pe tot parcursul zilei si o pozitionare retrasa fata de bulevard, care asigura un nivel ridicat de liniste. Suprafata utila totala depaseste 51 mp si este distribuita eficient intr-un living generos de aproape 18 mp, un dormitor de 11 mp, o bucatarie de 6,5 mp cu camara de aproximativ 1 mp, un hol cu doua debarale, baie si balcon. Proprietatea a fost modernizata in urma cu aproximativ 10 ani( montate termopane, schimbate caloriferele, trasee noi electrice, etc.), iar in prezent ofera un excelent potential de renovare si personalizare la standardele actuale. Se vinde mobilata si utilata, inclusiv cu aer conditionat, putand fi utilizata imediat daca se doreste. Locatia este un real avantaj, imobilul fiind pozitionat intre doua statii de metrou, in proximitatea Pietei Gorjului si a centrului comercial Carrefour Lujerului, cu acces rapid catre facilitati urbane, magazine, servicii si zone comerciale. Va invitam la vizionare pentru a descoperi potentialul real al acestui apartament si oportunitatea de a-l transforma intr-o locuinta pe masura asteptarilor dumneavoastra.
Citește mai mult Citește mai puțin
Confort 1 Decomandat Mobilat Complet Aer condiționat Termoficare Necesită renovare

Detalii apartament

ID anunț: 3456494 Actualizat în: 10 Februarie 2026
Nr. camere: 2
Suprafață utilă: 51 mp
Suprafață utilă totală: 51 mp
Compartimentare: Decomandat
Confort: 1
Etaj: Etaj 3 / 8
Nr. băi: 1
An construcție: 1980
Regim înălțime: P+8E

Istoric preț

Facilități

Pereți
Vopsea lavabilă
Podele
Parchet Gresie
Ușă intrare
Parchet Metal
Stare interior
Necesită renovare
Contorizare
Apometre
Bucătărie
Mobilată Utilată
Mobilat
Complet
Electrocasnice
Mașină de spălat rufe Frigider Aragaz
Dotări imobil
Lift
Utilități
Curent Apă Canalizare Gaze Mașină de spălat rufe Frigider Aragaz / Plită
Sistem încălzire
Termoficare
Climatizare
Aer condiționat
Amenajare străzi
Asfaltate

Puncte de interes

Mijloace transport
transport
statia RATB Răsăritului: 61, 62, 136, 236, 336
Mijloace transport aprox. 269 m
transport
Statia Rasaritului, linia 236, 336, 136, N115, 106,61,62
Mijloace transport aprox. 279 m
transport
statia RATB Răsăritului: 61, 62, 106, 136, 236, 336
Mijloace transport aprox. 319 m
transport
Metrorex. Statia Gorjului (M3). (en)
Mijloace transport aprox. 359 m
Școală
education
Scoala cu clasele 1-8 nr. 142
Învățământ aprox. 117 m
education
Scoala nr. 142
Învățământ aprox. 143 m
education
Scoala Nr. 309
Învățământ aprox. 461 m
education
Scoala Generala Nr.309
Învățământ aprox. 476 m
Recreere
shopping
Vase de portelan
Supermarket/Mall aprox. 136 m
shopping
Depozit En-Gros Connectreal
Supermarket/Mall aprox. 146 m
parks
Parc
Recreere aprox. 254 m
restaurants
Restaurant Casa Mino
Restaurante aprox. 379 m

Proprietăți similare

Apartament cu 2 camere semidecomandat în Gorjului
102.000 €
București, Gorjului
2 camere
51 mp
Etaj 8
Apartament cu 3 camere semidecomandat, mobilat în Gorjului
114.900 €
București, Gorjului
3 camere
75 mp
Etaj 4
Apartament cu 2 camere circular, mobilat în Gorjului
103.000 €
București, Gorjului
2 camere
48,65 mp
Etaj 6
Apartament cu 2 camere decomandat în Gorjului
103.000 €
București, Gorjului
2 camere
40 mp
Etaj 2
Apartament cu 2 camere decomandat în Gorjului
110.000 €
București, Gorjului
2 camere
58 mp
Etaj 9
Apartament cu 3 camere semidecomandat în Gorjului
115.000 €
București, Gorjului
3 camere
58,8 mp
Etaj 8
Apartament cu 2 camere decomandat în Gorjului
103.000 €
București, Gorjului
2 camere
56 mp
Etaj 6
Apartament cu 4 camere decomandat în Gorjului
116.500 €
București, Gorjului
4 camere
72 mp
Etaj 4 / 4
Apartament cu 2 camere decomandat în Gorjului
106.999 €
București, Gorjului
2 camere
53,57 mp
Etaj 10

Abonează-te la newsletter să fii primul care primește cele mai noi recomandări de proprietăți și sfaturi de la experți.