Complex Moghiorosi- Apartament 3 camere - bl nou - centrala termica - 85 mp

235.000 €

Drumul Taberei, Bucureşti

Nr. camere:
3
Suprafață utilă:
80 mp
Etaj:
1 / 10
An construcție:
2019
Nr. niveluri:
10

Descriere apartament

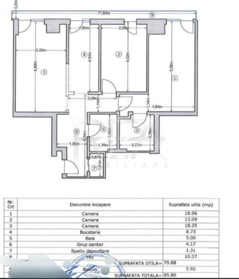
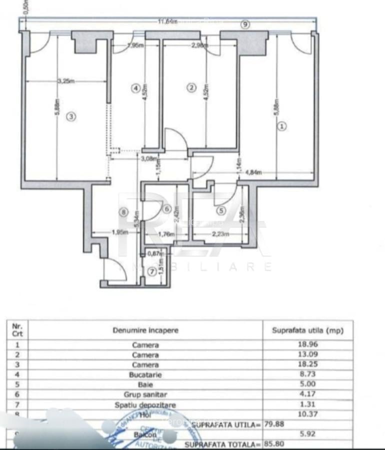
Metrou Parc Drumul Taberei 7 min - Auchan - Complex Rezidential Moghiorosi Park - Apartament 3 camere - persoana fizica fără tva, bloc nou - centrala termica - 85 mp - etaj 1/10, finisaje moderne, se vinde mobilat utilat ca in poze, 2 dormitoare spatioase, 2 grupuri sanitare, dressing spatios, balcon, bucatarie echipata complet cu electrocasnice de calitate, balcon. Loc de parcare( 10.000 euro) al apartamentului. Apartament 3 camere, decomandat, aflat în Complexul Moghioros Park Residence, strada Brasov, (an constructie 2019). Informatii apartament: Nr. Camere : 3 ( bucatarie, living, dormitor matromonial cu baie aferentă, dormitor, baie, camara, balcon) Suprafată: 85,80 mp din care 5,92 mp balcon( in al doilea rand de blocuri din complex ) Loc de parcare: 2 locuri de parcare (11mp fiecare) situate suprateran, la intrarea blocului. Stare: gata de utilizat Se vinde complet mobilat și dotat cu electrocasnice. Mobilierul este executat la comanda. Bucatarie – mobilier Ixina (executat si livrat din Germania); electrocasnice Bosch, LG, Elica; ghiuvetă Schock, plita inductie, cuptor electric, centrala termica, frigider, masina de spalat vase, dotare cu aparat de filtrare a apei ( mineralizata si alcalinizata) Living: mobilier executat la comanda; doua birouri; TV; aer conditionat, canapea Divanissimi (expensibila, saltea inclusa). Dormitor matrimonial - mobilier executat la comanda (dressing), pat Askona, aer conditionat, acces la baie cu cada Dormitor copil - mobilier Ikea. Hol – dressing dublu. Baie cu dus si masina de spalat rufe cu uscator integrat Camara – mobilata cu rafturi Toate camerele au acces la balcon. Dotare cu plase de tantari plisse. Acces internet: cablu TV, fibra optica, wireless
Citește mai mult Citește mai puțin
Confort 1 Decomandat Mobilat Aer condiționat Calorifere Centrală proprie Renovat

Detalii apartament

ID anunț: 1778806 Actualizat în: 21 Martie 2026
Nr. camere: 3
Suprafață utilă: 80 mp
Suprafață utilă totală: 80 mp
Compartimentare: Decomandat
Confort: 1
Etaj: Etaj 1 / 10
Nr. băi: 2
An construcție: 2019
Regim înălțime: P+10E

Istoric preț

Facilități

Pereți
Faianță Vopsea lavabilă
Podele
Gresie Mochetă Parchet
Rulouri/Obloane
PVC Lemn
Ușă intrare
Parchet PVC Metal Lemn
Uși interior
PVC Lemn
Stare interior
Renovat
Izolații termice
Exterior
Ferestre cu geam termopan
PVC Lemn
Contorizare
Contor gaz Apometre
Bucătărie
Mobilată Utilată
Mobilat
Mobilat
Electrocasnice
Frigider Cuptor microunde Aragaz Mașină spălat vase TV
Facilități imobil
Lift Interfon
Utilități
Gaze Canalizare Curent Apă Frigider Cuptor cu microunde Aragaz / Plită Mașină de spălat vase TV Supraveghere video Cablu
Sistem încălzire
Calorifere Centrală proprie
Internet
Fibră optică Wireless Cablu
Climatizare
Aer condiționat
Amenajare străzi
Asfaltate Betonate Iluminat stradal Mijloace de transport în comun
Servicii imobil
Administrare Supraveghere video

Puncte de interes

Mijloace transport
transport
Statia Piata Drumul Taberei, linia 168, 368, 221, 268, N116, N122, 668, 105
Mijloace transport aprox. 48 m
transport
Tricodava
Mijloace transport aprox. 70 m
transport
Statie RATB
Mijloace transport aprox. 101 m
transport
Statia Tricodava, linia 41
Mijloace transport aprox. 147 m
Școală
education
Grădiniţă copii nr 87 Spiridusii
Învățământ aprox. 177 m
education
Scoala nr. 205 Adrian Paunescu
Învățământ aprox. 331 m
education
Cladirea scolii
Învățământ aprox. 344 m
education
Scoala nr. 205
Învățământ aprox. 356 m
Recreere
restaurants
Jerry's Pizza - Drumu Taberei
Restaurante aprox. 30 m
shopping
Auchan
Supermarket/Mall aprox. 94 m
parks
Parc
Recreere aprox. 167 m
shopping
BILLA - Dr. Taberei
Supermarket/Mall aprox. 239 m

Proprietăți similare

Apartament cu 3 camere semidecomandat, mobilat în Drumul Taberei
228.000 €
București, Drumul Taberei
3 camere
70,85 mp
Parter
Apartament cu 3 camere semidecomandat în Drumul Taberei
246.000 €
București, Drumul Taberei
3 camere
72,6 mp
Etaj 1
Apartament cu 3 camere semidecomandat în Drumul Taberei
218.000 €
București, Drumul Taberei
3 camere
71 mp
Etaj 8
Apartament cu 3 camere decomandat în Drumul Taberei
235.000 €
București, Drumul Taberei
3 camere
136 mp
Etaj 4
Apartament cu 3 camere decomandat în Drumul Taberei
249.900 € + TVA
București, Drumul Taberei
3 camere
182 mp
Etaj 5
Apartament cu 3 camere decomandat, mobilat în Drumul Taberei
240.000 €
București, Drumul Taberei
3 camere
72,42 mp
Etaj 10
Apartament cu 3 camere decomandat, mobilat în Drumul Taberei
229.990 €
București, Drumul Taberei
3 camere
71 mp
Parter
Apartament cu 3 camere decomandat în Drumul Taberei
239.000 € + TVA
București, Drumul Taberei
3 camere
82 mp
Etaj 5
Apartament cu 3 camere decomandat, mobilat în Drumul Taberei
257.000 €
București, Drumul Taberei
3 camere
73 mp
Etaj 3

Abonează-te la newsletter să fii primul care primește cele mai noi recomandări de proprietăți și sfaturi de la experți.