Apartament 4 camere Rahova comision 0%

€ 99.000

Sebastian, Bucureşti

Nr. camere:
4
Suprafață utilă:
75 mp
Etaj:
3 / 4
An construcție:
1970
Nr. niveluri:
4

Descriere

Raportează anunț

Apartament 4 camere Rahova comision 0%

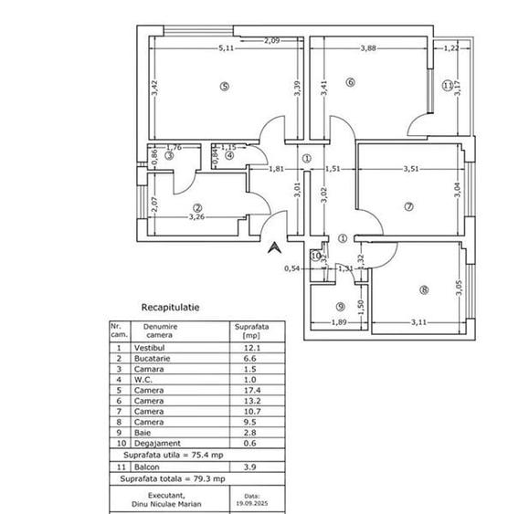
ID intern: 363291. Va propunem spre vanzare un apartament cu 4 camere, decomandat, confort 1, situat in zona Rahova, reper Piata Rahova, disponibil la etajul 3 din 4, cu o suprafata de 80 mp, 2 bai, 1 balcon, 3 dormitoare, living, bucatarie, hol, 2 debarale si o boxa la subsol. Este un bloc micuț cu 2 scari si vecini linistiti, unde se mentine curatenia si linisitea. Sunt doar 2 apartamente pe etaj ( cu 3 si 4 camere ). Se va elibera complet. Doar instalatiile sanitare la bai au fost schimbate, parchetul este in stare decenta, peretii sunt zugraviti recent. Are vedere pe 3 laturi Sud, Vest si Nord. Imobilul este situat la 3 minute de statia tramvaiului 32, care duce direct la Piata Unirii, statie STB, scoli, gradinita. COMISION 0% CUMPARATOR. OFERTA IN REPREZENTARE EXCLUSIVA IN CADRUL AGENTIEI CR IMOBILIARE.  Acordam indrumare in vederea acordarii unui credit bancar (BRD, FIRST BANK, ALPHA BANK, PATRIA BANK, BANCA TRANSILVANIA)
Citește mai mult Citește mai puțin
ID anunț: 2776923 Actualizat în: 10 Ianuarie 2026
Nr. camere: 4
Suprafață utilă: 75 mp
Suprafață utilă totală: 75 mp
Compartimentare: Decomandat
Confort: 1
Etaj: Etaj 3 / 4
Nr. băi: 2
An construcție: 1970
Regim înălțime: P+4E

Istoric preț

Utilități

Facilități
Balcon

Proprietăți similare

Apartament cu 2 camere decomandat în Sebastian
€ 107.000
București, Sebastian
2 camere
56,3 mp
Etaj 5
Apartament cu 3 camere decomandat în Sebastian
€ 93.900
București, Sebastian
3 camere
67 mp
Etaj 8 / 8
Apartament cu 3 camere decomandat în Sebastian
€ 92.900
București, Sebastian
3 camere
67 mp
Etaj 8 / 8
Apartament cu 2 camere decomandat în Sebastian
€ 108.000
București, Sebastian
2 camere
60 mp
Etaj 3
Apartament cu 2 camere decomandat în Sebastian
€ 93.000
București, Sebastian
2 camere
52 mp
Etaj 7
Apartament cu 2 camere decomandat în Sebastian
€ 94.800
București, Sebastian
2 camere
60 mp
Parter
Apartament cu 2 camere semidecomandat, mobilat în Sebastian
€ 108.500
București, Sebastian
2 camere
62,61 mp
Etaj 4 / 4
Apartament cu 2 camere decomandat în Sebastian
€ 105.000
București, Sebastian
2 camere
57 mp
Etaj 7 / 8
Apartament cu 2 camere decomandat în Sebastian
€ 94.600
București, Sebastian
2 camere
50 mp
Parter

Abonează-te la newsletter să fii primul care primește cele mai noi recomandări de proprietăți și sfaturi de la experți.