Apartament 2 Camere | Complex Ela Cotroceni - Metrou Academia Militara

154.617 € + TVA

Panduri, Bucureşti

Nr. camere:
2
Suprafață utilă:
58,47 mp
Etaj:
7 / 11
An construcție:
2025
Nr. niveluri:
11

Descriere apartament

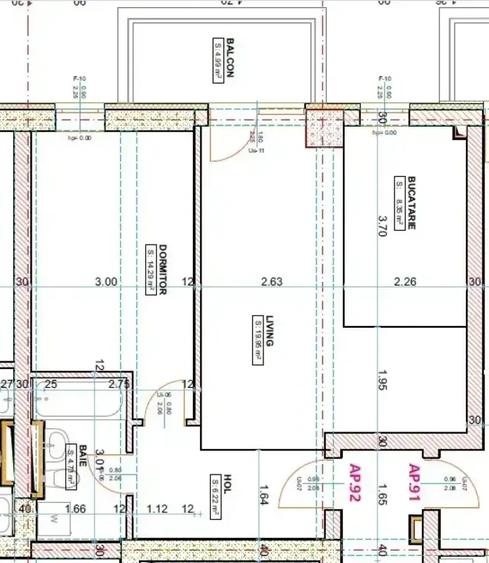
Vă propunem spre vânzare un apartament cu 2 camere, decomandat, spațios și luminos, situat la etajul 7 al unui imobil nou, cu regim de înălțime S+P+11 Triplex. Locuința are o suprafață generoasa de 58.47mp utili, dintre care 4.99mp balcon. Detalii constructie și finisaje: Imobilul este construit pe structură solidă din stâlpi și diafragme din beton armat de 40 cm, cu grinzi și planșee tot din beton armat. Fațada este parțial ventilată, realizată cu fibrociment Eqitone (gama Tectiva sau similar) și vopsea structurată, iar termoizolația se face cu vată minerală bazaltică, aplicată pe parter și parțial la etajele superioare. Dotări exterioare: - Tâmplărie PVC Salamander cu feronerie perimetrală și balamale ascunse; - Geamuri tripan pentru eficiență termică și fonică; - Ușă de acces în bloc din aluminiu, concepută pentru trafic intens; - Finisaje interioare de înaltă calitate: - Pereți de compartimentare din BCA Ytong de 12,5 cm, pereți exteriori și între apartamente din BCA Ytong de 30 cm - Tencuială mecanizată, două straturi de glet și vopsea lavabilă albă - Pardoseli pregătite cu încălzire în pardoseală, sape armate pe placă cu nuturi, pentru izolare termică și fonică superioară - Plafoane tencuite, gletuite complet și zugrăvite în alb Sistem de încălzire: Încălzirea se face prin sistem cu temperatură joasă – apă caldă distribuită prin țevi multistrat cu barieră de oxigen, montate în pardoseală. Agentul termic este furnizat de 4 centrale de bloc, asigurând un climat interior optim pe tot parcursul anului. Toate materialele folosite pentru construcție și finisaje sunt premium, asigurând durabilitate, confort și siguranță . Localizare și accesibilitate: Imobilul este situat într-o zonă liniștită, dar excelent conectată la rețeaua de transport public. În apropiere se regăsesc numeroase magazine, statii STB, Metrou, restaurante, școli, grădinițe și servicii, toate accesibile în câteva minute. Această proprietate este o alegere ideală pentru cei care doresc să trăiască într-un mediu confortabil și aerisit, fără a renunța la proximitatea față de centrul orașului și facilitățile acestuia. Pozele sunt cu titlu de prezentare. Apartamentul se preda la "ALB" (fara gresie, ceramica, sanitare, parchet si usi de interior), urmand ca finisajele (material + manopera) sa fie contractate separat, prin partenerii nostri Delta Studio la un pret preferential sau de la orice alta firma de finisaje interioare. Opțiuni de parcare: Loc suprateran tip Klaus (2 locuri): 22.000 euro + TVA Contact: Nicoleta Necula VAUNT ID: 110488
Citește mai mult Citește mai puțin
Decomandat Nemobilat Aer condiționat Centrală imobil Bine întreținut (Bună)

Detalii apartament

ID anunț: 3666512 Actualizat în: 16 Martie 2026
Nr. camere: 2
Suprafață utilă: 58,47 mp
Suprafață utilă totală: 58,47 mp
Compartimentare: Decomandat
Etaj: Etaj 7 / 11
Nr. băi: 1
An construcție: 2025
Regim înălțime: P+11E

Istoric preț

Facilități

Pereți
Vopsea lavabilă
Stare interior
Stare bună
Izolații termice
Exterior
Ferestre cu geam termopan
PVC Lemn
Contorizare
Apometre Contor căldură
Mobilat
Nemobilat
Diverse
Senzor de fum
Alte spații utile
Terasă
Facilități imobil
Videointerfon Interfon Lift
Utilități
Cablu Curent Apă Canalizare Supraveghere video
Sistem încălzire
Centrală imobil
Internet
Fibră optică Cablu
Climatizare
Aer condiționat
Amenajare străzi
Iluminat stradal Mijloace de transport în comun Asfaltate
Servicii imobil
Administrare Menaj Supraveghere video

Puncte de interes

Mijloace transport
transport
Aprodex
Mijloace transport aprox. 259 m
transport
Statia Sebastian, linia 173, 385, N121, N122, 226, 122, 47
Mijloace transport aprox. 293 m
transport
Statie RATB 122, 173, 226, 385
Mijloace transport aprox. 301 m
transport
Statie RATB 122, 226, 385
Mijloace transport aprox. 314 m
Școală
education
GRĂDINIŢA DE COPII NR. 75
Învățământ aprox. 277 m
education
aa
Învățământ aprox. 317 m
education
Gradinita nr. 75
Învățământ aprox. 341 m
education
Gradinita Adnan
Învățământ aprox. 393 m
Recreere
restaurants
Anturaj Caffe
Restaurante aprox. 29 m
parks
Parc
Recreere aprox. 146 m
shopping
Lidl
Supermarket/Mall aprox. 192 m
shopping
Mayo Next
Supermarket/Mall aprox. 200 m

Proprietăți similare

Apartament cu 3 camere semidecomandat, mobilat în Panduri
164.950 €
București, Panduri
3 camere
62,51 mp
Etaj 8
Apartament cu 2 camere decomandat în Panduri
160.000 €
București, Panduri
2 camere
49,34 mp
Etaj 6
Apartament cu 2 camere semidecomandat, mobilat în Panduri
139.900 €
București, Panduri
2 camere
56 mp
Etaj 4 / 8
Apartament cu 2 camere semidecomandat, mobilat în Panduri
140.000 €
București, Panduri
2 camere
51 mp
Etaj 4
Apartament cu 3 camere semidecomandat, mobilat în Panduri
149.800 €
București, Panduri
3 camere
65 mp
Etaj 8 / 8
Apartament cu 2 camere semidecomandat în Panduri
170.000 €
București, Panduri
2 camere
58 mp
Etaj 2
Apartament cu 2 camere semidecomandat în Panduri
157.500 €
București, Panduri
2 camere
53 mp
Parter
Apartament cu 2 camere decomandat, mobilat în 13 Septembrie
162.000 €
București, 13 Septembrie
2 camere
56 mp
Etaj 4
Apartament cu 2 camere semidecomandat, mobilat în Cotroceni
149.890 €
București, Cotroceni
2 camere
50 mp
Etaj 4 / 5

Abonează-te la newsletter să fii primul care primește cele mai noi recomandări de proprietăți și sfaturi de la experți.