Apartament 2 camere renovat 54mp - Sector 4 -Tineretului /Timpuri Noi

118.840 €

Tineretului, Bucureşti

Nr. camere:
2
Suprafață utilă:
54 mp
Etaj:
10 / 10
An construcție:
1978
Nr. niveluri:
10

Descriere apartament

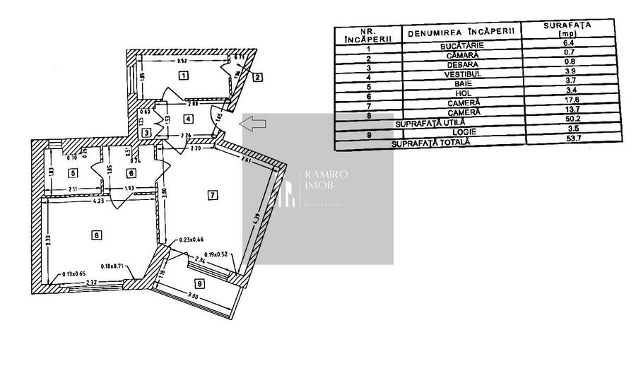
Va propunem spre vanzare un apartament de 2 camere, spatios si bine compartimentat, la cateva minute de mers pe jos Statia de metrou Timpuri Noi si Statia de metrou Tineretului. Blocul se afla langa Piata Norilor, in apropierea intersectiei dintre strada Tohani cu Strada Viorele, o zona este deosebit de frumoasa, zona centrala, zona istorica. Detalii apartament: • Suprafata 54 mp utili • Camere: 2 camere • Renovat recent, instalatii electrice si sanitare schimbate • Scara de bloc curata, vecini linistiti, civilizati • Etaj 10, bloc solid, din beton, construit 1978, urmeaza reabilitarea termica • Cateva minute de mers (500metri) de statiile de metrou Tineretului si Timpuri Noi • Linii de tramvai, de autobuz si de troleibuz în apropierea blocului • Acces in Parcul Tineretului la cateva minute de scara blocului, peste cateva strazi acces in Parcul Carol • Langa Piata Norilor • In apropiere Colegiul Sincai, Universitatea Titu Maiorescu, Universitatea Dimitrie Cantemir. • La cateva minute Palatul Copiilor cu activități si spectacole pentru copii de toate varstele. Apartamentul este situat într-o zona ultracentrala, moderna, bine dezvoltata, cu toate facilitatile la îndemana. O oferta excelenta pentru un apartament foarte frumos, renovat, la un pret foarte bun, care poate fi folosit si pentru uz comercial - spatiu birouri, sediu firma, inchiriere in regim hotelier. Pentru mai multe detalii - Cornel - - Se acceptă si achiziția prin credit bancar. Agentia Imobiliara – Ramiro Imob Comision Standard Oferim suport în relația cu banca, cu acces la cele mai bune oferte de finanțare, precum și asistență in relatia cu notariatul.
Citește mai mult Citește mai puțin
Confort 1 Semidecomandat Nemobilat Calorifere

Detalii apartament

ID anunț: 3745003 Actualizat în: 09 Aprilie 2026
Nr. camere: 2
Suprafață utilă: 54 mp
Suprafață utilă totală: 54 mp
Compartimentare: Semidecomandat
Confort: 1
Etaj: Etaj 10 / 10
Nr. băi: 1
An construcție: 1978
Regim înălțime: P+10E

Istoric preț

Facilități

Pereți
Faianță Vopsea lavabilă
Podele
Gresie Parchet
Ușă intrare
Parchet Metal Lemn
Uși interior
Lemn
Contorizare
Apometre
Mobilat
Nemobilat
Facilități imobil
Interfon Lift
Utilități
Curent Apă Canalizare Gaze Cablu
Sistem încălzire
Calorifere
Internet
Cablu
Amenajare străzi
Iluminat stradal Mijloace de transport în comun Asfaltate

Puncte de interes

Mijloace transport
transport
Tineretului (M2)
Mijloace transport aprox. 394 m
transport
Colegiul National Gheorghe Sincai
Mijloace transport aprox. 398 m
transport
Statia Metrou Tineretului(M2)Metrorex
Mijloace transport aprox. 452 m
transport
Statia Palatul Copiilor linii : 76,313,381.
Mijloace transport aprox. 512 m
Școală
education
Gradinita (progr. prelungit) Aleea Borcea - Str. Ruginoasa
Învățământ aprox. 413 m
education
Universitatea "Titu Maiorescu"
Învățământ aprox. 635 m
education
Universitatea Titu Maiorescu
Învățământ aprox. 635 m
education
Universitatea "Nicolae Titulescu" - Bucuresti
Învățământ aprox. 655 m
Recreere
parks
Parc
Recreere aprox. 71 m
restaurants
Forno d'oro
Restaurante aprox. 263 m
shopping
Mega Image
Supermarket/Mall aprox. 318 m
shopping
Mega Image
Supermarket/Mall aprox. 567 m

Proprietăți similare

Apartament cu 2 camere semidecomandat în Tineretului
118.900 €
București, Tineretului
2 camere
50 mp
Etaj 10
Apartament cu 2 camere decomandat în Tineretului
109.900 €
București, Tineretului
2 camere
46 mp
Etaj 10
Apartament cu 2 camere, mobilat în Tineretului
115.500 €
București, Tineretului
2 camere
55 mp
Etaj 4 / 4
Apartament cu 2 camere în Tineretului
129.600 €
București, Tineretului
2 camere
61 mp
Etaj 7
Apartament cu 2 camere semidecomandat în Tineretului
118.890 €
București, Tineretului
2 camere
54 mp
Etaj 10
Apartament cu 3 camere decomandat, mobilat în Tineretului
129.000 €
București, Tineretului
3 camere
60 mp
Etaj 10
Apartament cu 2 camere în Tineretului
115.000 €
București, Tineretului
2 camere
50 mp
1979
Apartament cu 2 camere decomandat în Tineretului
115.000 €
București, Tineretului
2 camere
50 mp
Etaj 4 / 4
Apartament cu 2 camere semidecomandat în Tineretului
120.000 €
București, Tineretului
2 camere
54 mp
Etaj 5 / 10

Abonează-te la newsletter să fii primul care primește cele mai noi recomandări de proprietăți și sfaturi de la experți.