1

Apartament 2 camere renovat 54mp Tineretului / Sincai / Timpuri Noi

118.970 €

Tineretului, Bucureşti

Nr. camere:
2
Suprafață utilă:
54 mp
Etaj:
10 / 10
An construcție:
1978
Nr. niveluri:
10

Descriere apartament

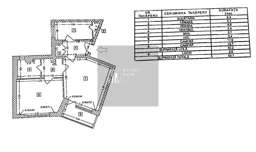
ID 2C118 Va propunem spre vanzare un apartament de 2 camere, 54mp utili, spatios si bine compartimentat, la cateva minute de mers pe jos Statia de metrou Timpuri Noi si Statia de metrou Tineretului' Apartamentul este renovat in luna ianuarie, s-au schimbat instalatiile electrice si sanitare. Blocul se afla in apropierea intersectiei dintre strada Tohani cu Strada Viorele, o zona este deosebit de frumoasa, zona selecta. Blocul din 1978, scara de bloc curata, vecini linistiti, civilizati. Acces in Parcul Tineretului la cateva minute de scara blocului, peste cateva strazi acces in Parcul Carol. In apropiere Colegiul Sincai, Universitatea Titu Maiorescu, Universitatea Dimitrie Cantemir. Gradinite si scoli in imediata apropiere, magazine si supermarketuri. La cateva minute Palatul Copiilor cu activități si spectacole pentru copii de toate varstele. Linii de tramvai, de autobuz si de troleibuz în apropierea blocului. Detalii apartament: • Suprafata 54 mp utili • Camere: 2 camere • Renovat acum 2026, instalatii electrice si sanitare schimbate • Etaj: 10 bloc solid, din beton, construit 1978 • Parcuri si zone verzi pentru relaxare în apropiere • Acces rapid la centre comerciale Locatia centrala il face potrivit si pentru uz comercial - spatiu birouri, sediu firma, inchiriere in regim hotelier. Nu ratati ocazia de a cumpara acest apartament unic într-o zona deosebita, cu toate facilitatile la îndemana ! Pentru mai multe detalii : Agentia Imobiliara – Ramiro Imob – - Cornel Ion Comision Standard
Citește mai mult Citește mai puțin
Confort 1 Semidecomandat Nemobilat Calorifere

Detalii apartament

ID anunț: 2361384 Actualizat în: 22 Februarie 2026
Nr. camere: 2
Suprafață utilă: 54 mp
Suprafață utilă totală: 54 mp
Compartimentare: Semidecomandat
Confort: 1
Etaj: Etaj 10 / 10
Nr. băi: 1
An construcție: 1978
Regim înălțime: P+10E

Istoric preț

Facilități

Pereți
Faianță Vopsea lavabilă
Podele
Gresie Parchet
Ușă intrare
Parchet Metal Lemn
Uși interior
Lemn
Contorizare
Apometre
Mobilat
Nemobilat
Facilități imobil
Interfon Lift
Utilități
Curent Apă Canalizare Gaze Cablu
Sistem încălzire
Calorifere
Internet
Cablu
Amenajare străzi
Iluminat stradal Mijloace de transport în comun Asfaltate

Puncte de interes

Mijloace transport
transport
Tineretului (M2)
Mijloace transport aprox. 437 m
transport
Colegiul National Gheorghe Sincai
Mijloace transport aprox. 442 m
transport
Statia Palatul Copiilor linii : 76,313,381.
Mijloace transport aprox. 478 m
transport
Statia Metrou Tineretului(M2)Metrorex
Mijloace transport aprox. 496 m
Școală
education
Gradinita (progr. prelungit) Aleea Borcea - Str. Ruginoasa
Învățământ aprox. 444 m
education
Universitatea "Titu Maiorescu"
Învățământ aprox. 637 m
education
Universitatea Titu Maiorescu
Învățământ aprox. 637 m
education
Universitatea "Nicolae Titulescu" - Bucuresti
Învățământ aprox. 661 m
Recreere
parks
Parc
Recreere aprox. 54 m
restaurants
Forno d'oro
Restaurante aprox. 305 m
shopping
Mega Image
Supermarket/Mall aprox. 361 m
shopping
Mega Image
Supermarket/Mall aprox. 560 m

Proprietăți similare

Apartament cu 2 camere semidecomandat, mobilat în Tineretului
120.000 €
București, Tineretului
2 camere
49 mp
Etaj 10
Apartament cu 2 camere decomandat în Tineretului
125.000 €
București, Tineretului
2 camere
55 mp
Etaj 7
Apartament cu 2 camere semidecomandat în Tineretului
124.900 €
București, Tineretului
2 camere
56 mp
Etaj 3
Apartament cu 2 camere decomandat în Tineretului
126.500 €
București, Tineretului
2 camere
56 mp
Etaj 4
Apartament cu 2 camere nedecomandat în Tineretului
120.000 €
București, Tineretului
2 camere
64 mp
Etaj 6
Apartament cu 2 camere, mobilat în Tineretului
129.800 €
București, Tineretului
2 camere
61 mp
Etaj 7 / 8
Apartament cu 2 camere decomandat în Tineretului
107.500 €
București, Tineretului
2 camere
46 mp
Etaj 1 / 7
Apartament cu 2 camere decomandat, mobilat în Tineretului
125.000 €
București, Tineretului
2 camere
50 mp
Etaj 6
Apartament cu 2 camere semidecomandat în Tineretului
118.989 €
București, Tineretului
2 camere
54 mp
Etaj 10

Abonează-te la newsletter să fii primul care primește cele mai noi recomandări de proprietăți și sfaturi de la experți.