Serban Voda - Carol - Tineretului - 2 camere cu terasa

255.254 €

Şerban Vodă, Bucureşti

Nr. camere:
2
Suprafață utilă:
82 mp
Etaj:
3

Descriere apartament

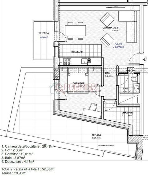
Serban Voda - Parcul Carol - Parcul Tineretului - 2 camere cu 25mp terasa Proprietate in exclusivitate Premier Imobiliare Va prezentam spre achizitie in apartament de 2 camere, in suprafata totala utila de 82mp avand in componenta un balcon de 5mp si o terasa de 25 mp, special gandita pentru a fi spatiul de relaxare, fie ca doriti sa beti cafeaua cu prietenii sau sa cititi cartea preferata. Atentia executarii finisajelor va crea caminul mult dorit de dumneavoastra. Locatia? Calea Serban Voda, Parcul Carol la 250m, Parcul Tineretului la 100m, Metrou Tineretului la 900m, Unirii si Casa Poporului la 5 minute cu masina! Reprezinta cu succes locul intim al unui cuplu la inceput de drum sau, de ce nu, o investitie, fiind IDEALA pentru inchiriere in regim hotelier, AirBnB. Pret fara TVA! Suna-ma sa discutam detalii! George Multumim pentru atentia acordata anunturilor noastre!
Citește mai mult Citește mai puțin

Detalii apartament

ID anunț: 2419912 Actualizat în: 20 Martie 2026
Nr. camere: 2
Suprafață utilă: 82 mp
Suprafață utilă totală: 82 mp
Etaj: Etaj 3

Istoric preț

Puncte de interes

Mijloace transport
transport
Adesgo
Mijloace transport aprox. 65 m
transport
Cutitul de Argint
Mijloace transport aprox. 323 m
transport
Tineretului (M2)
Mijloace transport aprox. 527 m
transport
Colegiul National Gheorghe Sincai
Mijloace transport aprox. 565 m
Școală
education
Gradinita cu program prelungit Copiii Soarelui
Învățământ aprox. 498 m
education
Gradinita Pisicel
Învățământ aprox. 513 m
education
GRĂDINIŢA DE COPII NR. 168
Învățământ aprox. 656 m
education
Gradinita cu orar prelungit nr. 168
Învățământ aprox. 656 m
Recreere
parks
Teren sportiv
Recreere aprox. 146 m
restaurants
El Conquistador
Restaurante aprox. 383 m
shopping
Issa Supermarket Non-Stop
Supermarket/Mall aprox. 415 m
shopping
Mega Image
Supermarket/Mall aprox. 561 m

Proprietăți similare

Apartament cu 2 camere decomandat în Șerban Vodă
270.160 € + TVA
București, Șerban Vodă
2 camere
62 mp
Etaj 3 / 4
Apartament cu 2 camere în Șerban Vodă
238.855 €
București, Șerban Vodă
2 camere
77 mp
Parter
Apartament cu 4 camere decomandat în Șerban Vodă
230.000 €
București, Șerban Vodă
4 camere
115,84 mp
Etaj 2 / 4
Apartament cu 3 camere decomandat, mobilat în Parcul Carol
249.875 €
București, Parcul Carol
3 camere
116 mp
Etaj 3
Apartament cu 4 camere decomandat, mobilat în Metalurgiei
240.000 €
București, Metalurgiei
4 camere
92,2 mp
Parter / 8
Apartament cu 4 camere decomandat în Metalurgiei
266.545 € + TVA
București, Metalurgiei
4 camere
133,4 mp
Etaj 4 / 4
Apartament cu 4 camere decomandat în Brâncoveanu
259.000 €
București, Brâncoveanu
4 camere
116 mp
Etaj 1 / 5
Apartament cu 4 camere decomandat în Tineretului
239.000 €
București, Tineretului
4 camere
88 mp
Etaj 2 / 8
Apartament cu 4 camere decomandat, mobilat în Eroii Revoluției
255.000 €
București, Eroii Revoluției
4 camere
92 mp
Parter / 8

Abonează-te la newsletter să fii primul care primește cele mai noi recomandări de proprietăți și sfaturi de la experți.