Soseaua Giurgiului - Aleea Uioara - 2 camere

63.000 €

Giurgiului, Bucureşti

Nr. camere:
2
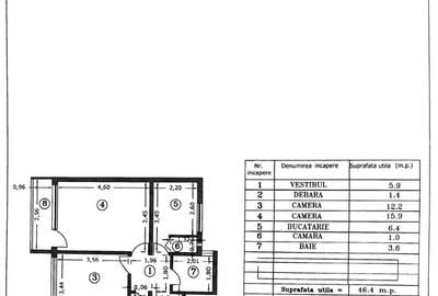
Suprafață utilă:
36 mp
Etaj:
Parter / 4
An construcție:
1974
Nr. niveluri:
4

Descriere apartament

Apartament 2 camere, 36 mp oportunitate excelenta de investitie! Va propunem spre vanzare un apartament cu 2 camere, avand o suprafata de 36 mp, ideal atat pentru locuit, cat si pentru investitie. Locuinta necesita renovare completa, oferindu-va libertatea de a o amenaja exact dupa propriul stil si preferinte. Compartimentarea este practica, iar spatiul poate fi optimizat pentru a crea un ambient modern si functional. Apartamentul beneficiaza de lumina naturala si are un potential foarte bun de transformare intr-un camin confortabil sau intr-o proprietate usor de inchiriat. Pentru a va ajuta sa vizualizati rezultatul final, am atasat fotografii cu un apartament renovat modern, care arata cum poate fi amenajat acest spatiu. Cu o investitie potrivita, locuinta poate deveni un apartament elegant, aerisit si primitor. Pret atractiv, ideal pentru cei care cauta un proiect personal sau o oportunitate de investitie! Serviciul nou oferit de PREMIER Imobiliare! Solicita acum VIZIONARE ONLINE pentru aceasta proprietate! COMISION 0% Aceasta proprietate se poate achizitiona prin orice tip de credit bancar. Departamentul nostru financiar Premier Credit Hub va sta la dispozitie GRATUIT (comision 0%) pentru: - identificarea celei mai bune solutii de finantare; - intocmirea dosarului bancar complet; - obtinerea rapida a creditului necesar achizitiei. Beneficiati de un serviciu ALL IN ONE, cu acces direct la ofertele tuturor bancilor comerciale din Romania. Se accepta inclusiv venituri din strainatate, astfel incat fiecare client sa poata cumpara in cele mai avantajoase conditii. Solicitati acum o simulare de credit direct din anunt sau cereti detalii consultantului Premier Imobiliare! Confort: 1 Tip imobil: Bloc de apartamente Numar Bai: 1 Posibilitate parcare: Nu
Citește mai mult Citește mai puțin
Semidecomandat

Detalii apartament

ID anunț: 3946314 Actualizat în: 24 Martie 2026
Nr. camere: 2
Suprafață utilă: 36 mp
Suprafață utilă totală: 36 mp
Compartimentare: Semidecomandat
Etaj: Parter / 4
An construcție: 1974
Regim înălțime: P+4E

Istoric preț

Puncte de interes

Mijloace transport
transport
Statie tramvai 34,46 - Roma
Mijloace transport aprox. 218 m
transport
Roma
Mijloace transport aprox. 223 m
transport
Calea Dorobantilor
Mijloace transport aprox. 303 m
transport
Statia Liceul Ion Luca Caragiale, linia 131, 182, 330, 331, 335, N113, 301
Mijloace transport aprox. 320 m
Școală
education
Liceul Nicolae Tonitza
Învățământ aprox. 300 m
education
Badulescu Aurelia (en)
Învățământ aprox. 323 m
education
Colegiul National "Ion Luca Caragiale"
Învățământ aprox. 385 m
education
Liceul Alexandru Vlahuta + Scoala 15 (en)
Învățământ aprox. 388 m
Recreere
restaurants
Restaurant "La Templu" (coa) (calea Dorobantilor 127-129)
Restaurante aprox. 165 m
parks
Parc
Recreere aprox. 207 m
shopping
"METROPLIS CENTER"
Supermarket/Mall aprox. 310 m
shopping
Mega Image - IANCU DE HUNEDOARA
Supermarket/Mall aprox. 320 m

Proprietăți similare

Apartament decomandat în Giurgiului
64.000 €
București, Giurgiului
50 mp
Etaj 5
1964
Apartament cu 2 camere decomandat în Giurgiului
65.500 €
București, Giurgiului
2 camere
58 mp
Demisol
Apartament cu 2 camere semidecomandat în Giurgiului
58.000 €
București, Giurgiului
2 camere
40 mp
Etaj 5 / 10
Apartament cu 2 camere semidecomandat în Giurgiului
65.000 €
București, Giurgiului
2 camere
58 mp
Parter
Apartament cu 2 camere semidecomandat în Giurgiului
58.000 €
București, Giurgiului
2 camere
49 mp
Etaj 7
Apartament cu 2 camere decomandat în Giurgiului
65.000 €
București, Giurgiului
2 camere
50 mp
1977
Apartament cu 2 camere semidecomandat în Giurgiului
57.500 €
București, Giurgiului
2 camere
Etaj 1
1969
Apartament cu 2 camere semidecomandat în Giurgiului
57.000 € + TVA
București, Giurgiului
2 camere
53 mp
Etaj 2
Apartament cu 2 camere semidecomandat, mobilat în Giurgiului
62.000 €
București, Giurgiului
2 camere
48 mp
Etaj 2

Abonează-te la newsletter să fii primul care primește cele mai noi recomandări de proprietăți și sfaturi de la experți.