Giurgiului, Progresu

65.000 €

Giurgiului, Bucureşti

Nr. camere:
2
Suprafață utilă:
50 mp
Etaj:
7 / 7
An construcție:
1978
Nr. niveluri:
7

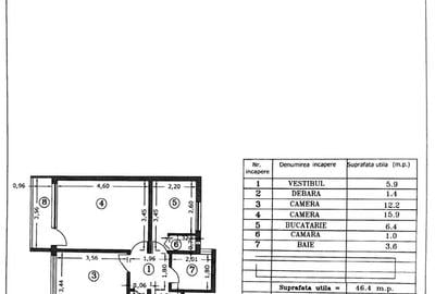
Descriere apartament

Pretul este discutabil. Apartamentul se afla pe strada Vigoniei, din Sos. Giurgiului, intr-un bloc civilizat, zona civilizata, et. 7 din 7 niveluri, decomandat. Baia arata rezonabil, ferestrele sunt din termopan, insa restul apartamentului necesita renovat. Pe tavan, nu exista semne de infiltratii. Apartamentul este disponibil imediat, mobilat, asa cum se vede in imagini. Exclusivitate AMA Imobiliare.
Citește mai mult Citește mai puțin
Confort 1 Decomandat

Detalii apartament

ID anunț: 2827289 Actualizat în: 19 Martie 2026
Nr. camere: 2
Suprafață utilă: 50 mp
Suprafață utilă totală: 50 mp
Compartimentare: Decomandat
Confort: 1
Etaj: Etaj 7 / 7
Nr. băi: 1
An construcție: 1978
Regim înălțime: P+7E

Istoric preț

Proprietăți similare

Apartament cu 2 camere decomandat în Giurgiului
65.000 €
București, Giurgiului
2 camere
45 mp
Parter
Apartament cu 2 camere semidecomandat în Giurgiului
60.000 €
București, Giurgiului
2 camere
46 mp
Etaj 4 / 4
Apartament cu 3 camere decomandat în Giurgiului
69.500 €
București, Giurgiului
3 camere
49 mp
Etaj 4 / 10
Apartament decomandat în Giurgiului
64.000 €
București, Giurgiului
50 mp
Etaj 5
1964
Apartament cu 2 camere semidecomandat în Giurgiului
63.000 €
București, Giurgiului
2 camere
35 mp
Etaj 3 / 10
Apartament cu 2 camere decomandat, mobilat în Giurgiului
64.900 €
București, Giurgiului
2 camere
50 mp
Etaj 4
Apartament cu 2 camere semidecomandat în Giurgiului
67.897 €
București, Giurgiului
2 camere
49 mp
Etaj 7
Apartament cu 2 camere în Giurgiului
70.000 €
București, Giurgiului
2 camere
55 mp
1977
Apartament cu 2 camere semidecomandat în Giurgiului
65.000 €
București, Giurgiului
2 camere
58 mp
Parter

Abonează-te la newsletter să fii primul care primește cele mai noi recomandări de proprietăți și sfaturi de la experți.