Vanzare apartament 2 camere Lux Unirii-Basarab-Parcare

243.000 €

Unirii, Bucureşti

Nr. camere:
2
Suprafață utilă:
45 mp
Etaj:
1 / 5
An construcție:
2019
Nr. niveluri:
5

Descriere apartament

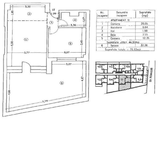
ID intern: 365766 Va propunem spre vanzare un apartament cu 2 camere, semidecomandat, confort lux, situat in zona Unirii, reper Romulus, intr-un imobil construit in anul 2019, disponibil la etajul 1 din 5, cu o suprafata de 77 mp, baie, balcon, bucatarie. Imobilul este situat in apropiere de piata, statie STB, scoli, gradinita. Acordam indrumare in vederea acordarii unui credit bancar (BRD, FIRST BANK, ALPHA BANK, BANCA TRANSILVANIA)
Citește mai mult Citește mai puțin
Semidecomandat Mobilat Lux Aer condiționat Centrală proprie

Detalii apartament

ID anunț: 3715771 Actualizat în: 04 Martie 2026
Nr. camere: 2
Suprafață utilă: 45 mp
Suprafață utilă totală: 45 mp
Compartimentare: Semidecomandat
Etaj: Etaj 1 / 5
Nr. băi: 1
An construcție: 2019
Regim înălțime: P+5E

Istoric preț

Facilități

Sistem încălzire
Centrală proprie
Climatizare
Aer condiționat
Mobilat
Lux
Electrocasnice
Aragaz Hotă Frigider Cuptor microunde TV
Facilități imobil
Lift

Puncte de interes

Mijloace transport
transport
Hristo Botev
Mijloace transport aprox. 178 m
transport
Bd. Hristo Botev
Mijloace transport aprox. 207 m
transport
Statia Armeneasca / Bd. Carol I, linia 5,16
Mijloace transport aprox. 207 m
transport
Bd. Carol I
Mijloace transport aprox. 214 m
Școală
education
Scoala Superioara Comerciala Nicolae Kretzulescu
Învățământ aprox. 183 m
education
Grupul Scolar Industrial Unirea
Învățământ aprox. 189 m
education
Grupul Scolar Industrial Unirea (en)
Învățământ aprox. 199 m
education
Centrul Educational IBSEN
Învățământ aprox. 305 m
Recreere
restaurants
Macaz Bar Teatru Coop
Restaurante aprox. 124 m
shopping
Mega Image Paleologu
Supermarket/Mall aprox. 198 m
parks
Parc
Recreere aprox. 296 m
shopping
Cocor
Supermarket/Mall aprox. 662 m

Proprietăți similare

Apartament cu 3 camere semidecomandat în Unirii
249.000 €
București, Unirii
3 camere
65,5 mp
Parter
Apartament cu 2 camere decomandat în Unirii
245.000 € + TVA
București, Unirii
2 camere
68 mp
Etaj 2
Apartament cu 2 camere decomandat, mobilat în Unirii
239.000 €
București, Unirii
2 camere
64 mp
Etaj 1
Apartament cu 4 camere semidecomandat în Unirii
260.000 €
București, Unirii
4 camere
116 mp
Etaj 2 / 4
Apartament cu 3 camere decomandat, mobilat în Unirii
239.000 €
București, Unirii
3 camere
77 mp
Etaj 2
Apartament cu 2 camere semidecomandat în Unirii
265.500 €
București, Unirii
2 camere
72 mp
Etaj 2
Apartament cu 3 camere în Unirii
239.000 €
București, Unirii
3 camere
75 mp
Etaj 1
Apartament cu 2 camere decomandat, mobilat în Unirii
260.000 €
București, Unirii
2 camere
60,5 mp
Etaj 2
Apartament cu 3 camere decomandat în Unirii
260.000 €
București, Unirii
3 camere
78 mp
Etaj 2

Abonează-te la newsletter să fii primul care primește cele mai noi recomandări de proprietăți și sfaturi de la experți.