Vanzare Apartament 4 Camere Unirii Parlament

364.000 €

Unirii, Bucureşti

Nr. camere:
4
Suprafață utilă:
88 mp
Etaj:
6 / 7
An construcție:
1993
Nr. niveluri:
7

Descriere apartament

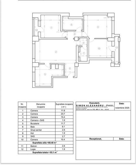
ID intern: 367072 Va propunem spre vanzare un apartament cu 4 camere, decomandat, confort 1, situat in zona Unirii, reper Parlament, intr-un imobil construit in anul 1993, disponibil la etajul 6 din 8, cu o suprafata de 93 mp, baie, balcon, bucatarie. Imobilul este situat in apropiere de piata, statie STB, scoli, gradinita. Vizionarea acestui imobil se face doar in baza semnării unui acord de vizionare conform codului civil, art 2.096-2.102 . Acordam indrumare in vederea acordarii unui credit bancar (BRD, FIRST BANK, ALPHA BANK, PATRIA BANK, BANCA TRANSILVANIA) Se percepe comision 2%. Politica agentiei este de a optimiza negocierea pretului in raport cu comisionul.
Citește mai mult Citește mai puțin
Confort 1 Decomandat Aer condiționat Termoficare

Detalii apartament

ID anunț: 4064878 Actualizat în: 03 Aprilie 2026
Nr. camere: 4
Suprafață utilă: 88 mp
Suprafață utilă totală: 88 mp
Compartimentare: Decomandat
Confort: 1
Etaj: Etaj 6 / 7
Nr. băi: 2
An construcție: 1993
Regim înălțime: P+7E

Istoric preț

Facilități

Pereți
Faianță Vopsea lavabilă
Podele
Parchet Gresie
Ușă intrare
Metal Parchet
Ferestre cu geam termopan
Aluminiu
Utilități
Apă Curent Gaze
Sistem încălzire
Termoficare
Internet
Fibră optică Wireless
Climatizare
Aer condiționat
Bucătărie
Utilată Mobilată
Facilități imobil
Lift

Puncte de interes

Mijloace transport
transport
11 Iunie
Mijloace transport aprox. 209 m
transport
Patriarhia Romana
Mijloace transport aprox. 248 m
transport
Piata Unirii
Mijloace transport aprox. 252 m
transport
Capat Piata Unirii 2 linii : 783 (express).
Mijloace transport aprox. 383 m
Școală
education
Gradinita nr.192, "Pisicile Aristocrate"
Învățământ aprox. 69 m
education
Gradinita nr. 192 (Pisicile aristocrate)
Învățământ aprox. 77 m
education
Gradinita Prikindel
Învățământ aprox. 111 m
education
Elohim Academi
Învățământ aprox. 194 m
Recreere
parks
Parc
Recreere aprox. 29 m
shopping
Mega Image
Supermarket/Mall aprox. 46 m
restaurants
Angel Cafe
Restaurante aprox. 163 m
shopping
Carrefour Express
Supermarket/Mall aprox. 265 m

Proprietăți similare

Apartament cu 4 camere în Unirii
335.000 €
București, Unirii
4 camere
98 mp
Etaj 2
Apartament cu 4 camere decomandat în Unirii
330.000 €
București, Unirii
4 camere
105 mp
Etaj 1
Apartament cu 4 camere decomandat în Unirii
350.000 € + TVA
București, Unirii
4 camere
113 mp
Etaj 2 / 5
Apartament cu 4 camere decomandat în Unirii
337.000 €
București, Unirii
4 camere
97 mp
Etaj 2 / 9
Apartament cu 3 camere decomandat, mobilat în Unirii
335.000 €
București, Unirii
3 camere
78 mp
Etaj 4
Apartament cu 4 camere în Unirii
380.000 €
București, Unirii
4 camere
95 mp
Etaj 4
Apartament cu 3 camere semidecomandat în Unirii
356.950 €
București, Unirii
3 camere
75 mp
Etaj 1 / 3
Apartament cu 3 camere decomandat în Unirii
395.214 € + TVA
București, Unirii
3 camere
82 mp
Parter / 3
Apartament cu 4 camere decomandat în Unirii
364.000 €
București, Unirii
4 camere
88 mp
Etaj 6 / 8

Abonează-te la newsletter să fii primul care primește cele mai noi recomandări de proprietăți și sfaturi de la experți.