Apartament 2 camere Soho Unirii, parter înalt, parcare subterana inclusa

215.000 €

Unirii, Bucureşti

Nr. camere:
2
Suprafață utilă:
59 mp
Etaj:
Parter / 6
An construcție:
2019
Nr. niveluri:
6

Descriere apartament

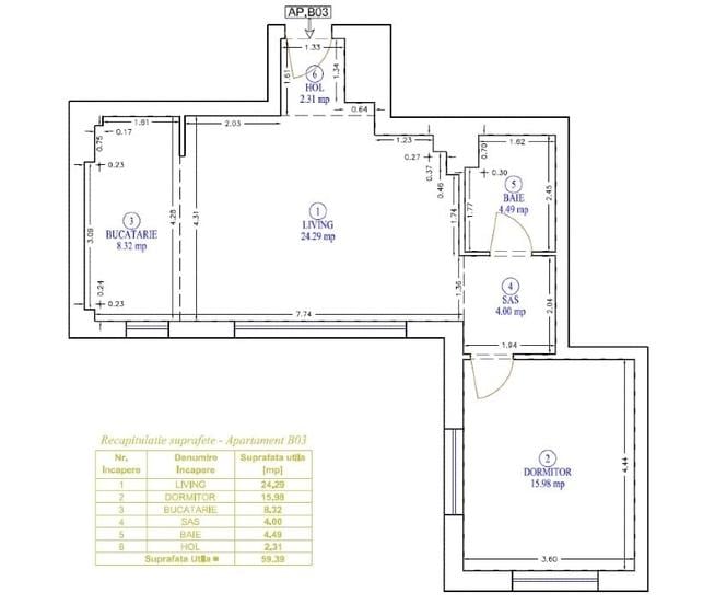
Apartament modern cu 2 camere în complexul Soho Unirii, potrivit atât pentru locuire, cât și pentru investiție. Acces facil, intimitate sporită, parter înalt. Loc de parcare dublu, cu mecanism Klauss inclus, în subteran la -1 . Se vinde mobilat si utilat, cum se vede in prezentare. Suprafata utilă este de 59,39 mp, zona de living + bucătărie deschisă are 33 mp, iar dormitorul are 16 mp. Pentru detalii, puteți consulta releveul atașat. Mentionez ca nu exista balcon/terasa. Incalzirea se face prin pardoseala, cu centrala de bloc. Ansamblul este format din 3 blocuri cu o curte interioară generoasă. Toate intrările sunt gated. Accesul se face doar pe baza de cartelă. În incinta este prezent întotdeauna un paznic. Parterul este mai înalt decât restul etajelor, înălțimea camerelor fiind de 2,75 cm. Localizarea este centrală; se ajunge în centrul vechi în 15 min pe jos. In 10 minute la metroul de la Unirea, in 6 min la metroul Tineretului si aprox 8 min pana la metroul Timpuri Noi. Zona e foarte liniștită și ferită de zgomotul orașului. În momentul de față, apartamentul este închiriat, dar se pot face vizionari și va fi eliberat în timp util în cazul vânzării.
Citește mai mult Citește mai puțin
Confort 1 Semidecomandat

Detalii apartament

ID anunț: 3420308 Actualizat în: 10 Februarie 2026
Nr. camere: 2
Suprafață utilă: 59 mp
Suprafață utilă totală: 59 mp
Compartimentare: Semidecomandat
Confort: 1
Etaj: Parter / 6
Nr. băi: 1
An construcție: 2019
Regim înălțime: P+6E

Istoric preț

Puncte de interes

Mijloace transport
transport
Statia Pasaj Marasesti linii 23,27
Mijloace transport aprox. 220 m
transport
Pasaj Marasesti
Mijloace transport aprox. 242 m
transport
Bd. Dimitrie Cantemir / Bd. Marasesti, Liniile 312, 313, 381, N105, N106, N112, 116, 23, 27
Mijloace transport aprox. 254 m
transport
Bd. Dimitrie Cantemir
Mijloace transport aprox. 262 m
Școală
education
Colegiul National "Ion Creanga"
Învățământ aprox. 213 m
education
Scoala nr.79 "Academician Nicolae Teodorescu"
Învățământ aprox. 236 m
education
Scoala de Arta
Învățământ aprox. 253 m
education
scoala populara de arta
Învățământ aprox. 262 m
Recreere
parks
Piata Bucur
Recreere aprox. 82 m
restaurants
Thang Long
Restaurante aprox. 93 m
shopping
ClicMarket
Supermarket/Mall aprox. 245 m
shopping
Mega Image (en)
Supermarket/Mall aprox. 353 m

Proprietăți similare

Apartament cu 2 camere semidecomandat, mobilat în Unirii
220.000 €
București, Unirii
2 camere
90 mp
Etaj 4 / 4
Apartament cu 2 camere decomandat, mobilat în Unirii
205.000 €
București, Unirii
2 camere
60 mp
Etaj 8 / 10
Apartament cu 3 camere decomandat în Unirii
199.999 €
București, Unirii
3 camere
58 mp
Etaj 7 / 7
Apartament cu 2 camere decomandat, mobilat în Unirii
197.000 €
București, Unirii
2 camere
59 mp
Etaj 7 / 8
Apartament cu 2 camere decomandat în Unirii
234.900 €
București, Unirii
2 camere
65 mp
Etaj 2 / 7
Apartament cu 3 camere, mobilat în Unirii
214.500 €
București, Unirii
3 camere
84 mp
Etaj 1 / 7
Apartament cu 2 camere, mobilat în Unirii
205.000 €
București, Unirii
2 camere
67 mp
Etaj 8 / 10
Apartament cu 3 camere decomandat, mobilat în Unirii
198.000 €
București, Unirii
3 camere
74 mp
Etaj 7 / 7
Apartament cu 3 camere decomandat, mobilat în Unirii
219.000 €
București, Unirii
3 camere
80 mp
Etaj 5 / 8

Abonează-te la newsletter să fii primul care primește cele mai noi recomandări de proprietăți și sfaturi de la experți.