AP 3 CAMERE // BLOC P+3 IN CURS DE FINALIZARE// PALLADY // COMISION 0!

117.081 € + TVA

Theodor Pallady, Bucureşti

Nr. camere:
3
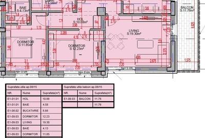
Suprafață utilă:
83,63 mp
Etaj:
1 / 3
An construcție:
2026
Nr. niveluri:
3

Descriere apartament

Comision 0% Modalitati de achizitie : - avans 90% - 141.669 euro tva inclus - avans 50% - 146.729 euro tva inclus - avans 15% - 151.788 euro tva inclus Complex rezidențial de elită – bloc mic și intim, confort și finisaje de înaltă calitate Vă invităm să descoperiți un ansamblu de apartamente de excepție, situat într-un imobil cu structură solidă, format dintr-un bloc mic, cu doar 3 etaje și o singură scară, dedicat celor care apreciază intimitatea, confortul și un stil de viață modern. Acest complex răspunde celor mai exigente cerințe, oferind soluții de locuire adaptate diverselor nevoi. Caracteristici și beneficii: Design și finisaje de top: Toate apartamentele sunt finisate cu materiale atent selecționate, dintr-o gamă diversificată, pentru a crea un interior elegant, durabil și personalizabil – gresie, faianță, parchet și uși, alese cu grijă pentru a reflecta rafinament și bun gust. Luminozitate naturală maximă: Fiecare apartament dispune de ferestre mari, de sus până jos, pentru o iluminare excelentă, îmbogățind atmosfera cu energie și vitalitate. Confort termic și economic: Încălzire în pardoseală și centrală proprie, pentru control total asupra temperaturii, asigurând un ambient cald și plăcut pe tot parcursul anului. Astfel, locuințele sunt eficiente energetic și economice. Predare la cheie: Apartamentele se predau complet finisate și racordate la toate utilitățile (apă, gaz, canalizare și electricitate), gata pentru mutare, fără eforturi suplimentare sau lucrări de finalizare. Design modern și funcțional: Interiorul este configurat pentru a răspunde celor mai rafinate gusturi: apartamentele tip studio, 2 și 3 camere, precum și garsonierele, sunt proiectate pentru a oferi un confort de excepție într-un mediu sigur și liniștit. Poziție strategică și facilități în apropiere: Localizarea acestui complex asigură acces rapid la principalele puncte de interes ale zonei, într-un mediu sigur și plin de facilități urbane. În vecinătate găsiți centre comerciale, școli, grădinițe, servicii și zone de relaxare, toate la îndemână pentru confortul dumneavoastră zilnic. Această oportunitate reprezintă alegerea ideală pentru familii, tineri profesioniști sau investitori, care doresc o locuință modernă, personalizabilă, gata de mutare și situată într-un ansamblu exclusivist. Contactați-ne pentru mai multe detalii sau pentru a programa o vizionare – investiția în confort și stil de viață de lux începe aici! Poze cu caracter orientativ!
Citește mai mult Citește mai puțin
Confort 1 Decomandat

Detalii apartament

ID anunț: 3989614 Actualizat în: 27 Martie 2026
Nr. camere: 3
Suprafață utilă: 83,63 mp
Suprafață utilă totală: 83,63 mp
Compartimentare: Decomandat
Confort: 1
Etaj: Etaj 1 / 3
Nr. băi: 2
An construcție: 2026
Regim înălțime: P+3E

Istoric preț

Facilități

Utilități
Curent Apă Canalizare Gaze Cablu
Internet
Cablu
Amenajare străzi
Iluminat stradal Mijloace de transport în comun Asfaltate
Izolații termice
Exterior
Facilități imobil
Lift

Puncte de interes

Mijloace transport
transport
Statia Chimopar, N111, 23, 27, 40
Mijloace transport aprox. 307 m
transport
Chimopar
Mijloace transport aprox. 309 m
transport
Statia Nicolae Teclu, Linia M3
Mijloace transport aprox. 364 m
transport
Metrorex.Staţia Nicolae Teclu (M3)(2008)
Mijloace transport aprox. 377 m
Școală
education
Spectrum Liceul Teoretic International de Informatica
Învățământ aprox. 1044 m
education
Gradinita nr. 68
Învățământ aprox. 1204 m
education
Gradinita Nr. 160
Învățământ aprox. 1401 m
education
Gradinita Nr. 160 - "soarelui"
Învățământ aprox. 1402 m
Recreere
shopping
Decathlon
Supermarket/Mall aprox. 222 m
shopping
Metro
Supermarket/Mall aprox. 256 m
parks
Parc
Recreere aprox. 315 m
restaurants
Restaurant Luminita
Restaurante aprox. 1166 m

Proprietăți similare

Apartament cu 3 camere decomandat în Theodor Pallady
117.724 € + TVA
București, Theodor Pallady
3 camere
74,57 mp
Etaj 1
Apartament cu 3 camere decomandat în Theodor Pallady
113.025 € + TVA
București, Theodor Pallady
3 camere
75,55 mp
Etaj 2
Apartament cu 3 camere decomandat în Theodor Pallady
118.755 € + TVA
București, Theodor Pallady
3 camere
85,77 mp
Etaj 1
Apartament cu 3 camere decomandat în Theodor Pallady
122.000 €
București, Theodor Pallady
3 camere
78 mp
Etaj 1
Apartament cu 3 camere decomandat în Theodor Pallady
117.081 € + TVA
București, Theodor Pallady
3 camere
83,63 mp
Etaj 1
Apartament cu 2 camere decomandat, mobilat în Theodor Pallady
127.500 €
București, Theodor Pallady
2 camere
60 mp
Etaj 3
Apartament cu 3 camere decomandat în Theodor Pallady
116.900 € + TVA
București, Theodor Pallady
3 camere
75,55 mp
Etaj 1
Apartament cu 3 camere decomandat în Theodor Pallady
114.500 € + TVA
București, Theodor Pallady
3 camere
76 mp
Etaj 1
Apartament cu 3 camere decomandat în Theodor Pallady
117.081 € + TVA
București, Theodor Pallady
3 camere
83,63 mp
Etaj 1

Abonează-te la newsletter să fii primul care primește cele mai noi recomandări de proprietăți și sfaturi de la experți.