3 Camere Ideal Familie -Zona Linistita

110.611 €

Theodor Pallady, Bucureşti

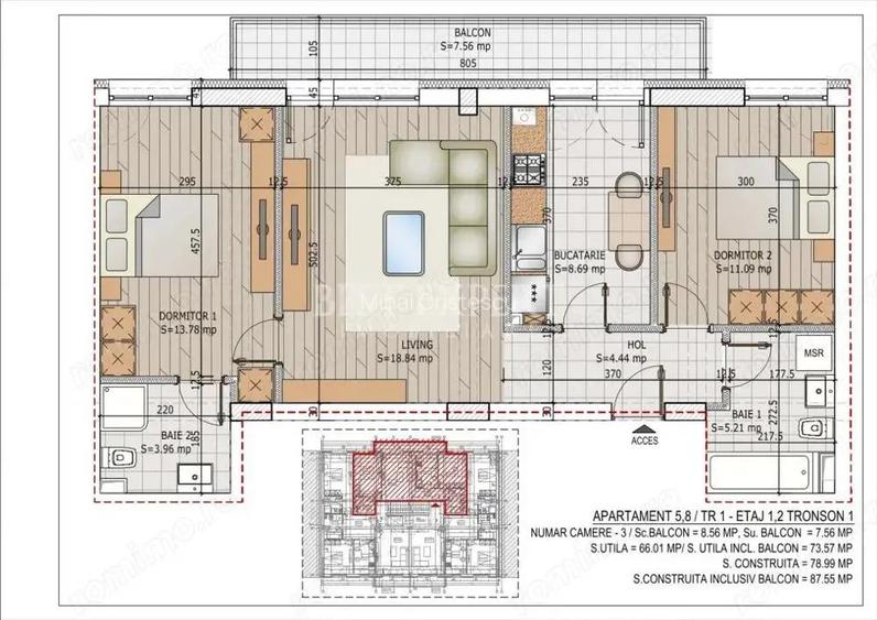
Nr. camere:
3
Suprafață utilă:
74 mp
Etaj:
1 / 3
An construcție:
2026
Nr. niveluri:
3

Descriere

3 Camere Ideal Familie -Zona Linistita

Oferta noastra completa o gasiti pe site-ul Best Expert Imobiliare Birou vanzari dezvoltator Titan-Pallady Comision 0% Sediu: Drumul Gura Crivatului, nr. 4-22, Sector 3 Waze: Best Expert Imobiliare Telefon Programari:
0741.**** Vezi tot numărul
Program vizionari: L-V 10:00-18:00 / S: 10:00-14:00 Facebook: Best Expert Imobiliare - 110.611 Euro +TVA pentru un avans de 80% la antecontract - 114.033 Euro + TVA pentru un avans de 15% la antecontract Descopera noile apartamente situate intr-un ansamblu reziden?ial modern, construit de unul dintre cei mai experimenta?i dezvoltatori din zona, cu peste 14 blocuri finalizate cu succes in Sectorul 3. Imobilul este amplasat intr-o zona reziden?iala lini?tita, ideala pentru cei care cauta confort ?i intimitate, dar in acela?i timp doresc sa ramana aproape de ora?. Loca?ia ofera acces rapid catre centrul Bucure?tiului ?i autostrada A2, fiind la doar 1214 minute de mers pe jos pana la sta?ia de metrou Nicolae Teclu. In apropiere se regasesc cele mai importante puncte de interes din partea de est a ora?ului: IKEA, Auchan, Lidl, Metro, Decathlon, JYSK, Mega Image, Dedeman, Leroy Merlin, Jumbo ?i multe altele. Caracteristici ale apartamentelor: Se predau la cheie, complet racordate la toate utilita?ile publice: apa, gaz, electricitate ?i canalizare; Dispun de centrala termica proprie in condensare, pentru eficien?a energetica ?i controlul temperaturii; Finisaje incluse, la alegere: parchet, u?i de interior, gresie ?i faian?a; U?a metalica de acces ?i bai complet utilate, gata de folosire; Complexul beneficiaza de acces privat, cu poarta electrica ac?ionata prin telecomanda, oferind un plus de siguran?a ?i intimitate. Ansamblul este situat intr-un cartier 100% reziden?ial, ideal pentru familii, tineri profesioni?ti sau oricine i?i dore?te un camin modern intr-o zona verde ?i lini?tita, dar bine conectata la via?a urbana. Contacteaza-ne pentru mai multe detalii sau pentru a programa o vizionare! ID anun? : 1768213456
Citește mai mult Citește mai puțin
ID anunț: 3136015 Actualizat în: 14 Ianuarie 2026
Nr. camere: 3
Suprafață utilă: 74 mp
Suprafață utilă totală: 74 mp
Compartimentare: Decomandat
Etaj: Etaj 1 / 3
Nr. băi: 2
An construcție: 2026
Regim înălțime: P+3E

Istoric preț

Utilități

Utilități
Apă

Proprietăți similare

Apartament cu 2 camere decomandat în Theodor Pallady
100.000 € + TVA
București, Theodor Pallady
2 camere
65,1 mp
Parter / 4
Apartament cu 2 camere semidecomandat în Theodor Pallady
110.000 €
București, Theodor Pallady
2 camere
43,78 mp
Etaj 5 / 11
Apartament cu 3 camere decomandat în Theodor Pallady
121.365 € + TVA
București, Theodor Pallady
3 camere
78,3 mp
Etaj 2 / 3
Apartament cu 3 camere decomandat în Theodor Pallady
115.702 € + TVA
București, Theodor Pallady
3 camere
74,46 mp
Etaj 3 / 3
Apartament cu 2 camere decomandat în Theodor Pallady
104.132 € + TVA
București, Theodor Pallady
2 camere
61,37 mp
Etaj 1
Apartament cu 2 camere decomandat în Theodor Pallady
113.256 €
București, Theodor Pallady
2 camere
56 mp
Etaj 3
Apartament cu 3 camere decomandat în Theodor Pallady
110.611 € + TVA
București, Theodor Pallady
3 camere
73,57 mp
Etaj 1 / 3
Apartament cu 3 camere decomandat în Theodor Pallady
112.112 € + TVA
București, Theodor Pallady
3 camere
85,24 mp
Etaj 2
Apartament cu 3 camere semidecomandat în Theodor Pallady
115.500 € + TVA
București, Theodor Pallady
3 camere
87,98 mp
Etaj 10

Abonează-te la newsletter să fii primul care primește cele mai noi recomandări de proprietăți și sfaturi de la experți.