2 Camere Zona Linistita -Acces rapid STB

80.798 €

Theodor Pallady, Bucureşti

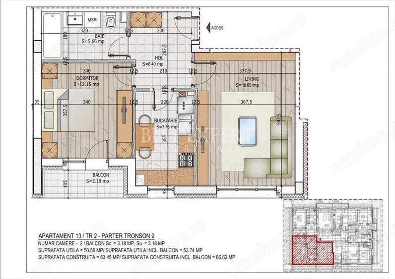
Nr. camere:
2
Suprafață utilă:
51 mp
Etaj:
Parter / 3
An construcție:
2026
Nr. niveluri:
3

Descriere apartament

Oferta noastra completa o gasiti pe site-ul Best Expert Imobiliare Birou vanzari dezvoltator Titan-Pallady Comision 0% Sediu: Drumul Gura Crivatului, nr. 4-22, Sector 3 Waze: Best Expert Imobiliare Telefon Programari: Program vizionari: L-V 10:00-18:00 / S: 10:00-14:00 Facebook: Best Expert Imobiliare - 80.798 Euro +TVA pentru un avans de 80% la antecontract - 83.297 Euro + TVA pentru un avans de 15% la antecontract Descopera noile apartamente situate intr-un ansamblu reziden?ial modern, construit de unul dintre cei mai experimenta?i dezvoltatori din zona, cu peste 14 blocuri finalizate cu succes in Sectorul 3. Imobilul este amplasat intr-o zona reziden?iala lini?tita, ideala pentru cei care cauta confort ?i intimitate, dar in acela?i timp doresc sa ramana aproape de ora?. Loca?ia ofera acces rapid catre centrul Bucure?tiului ?i autostrada A2, fiind la doar 1214 minute de mers pe jos pana la sta?ia de metrou Nicolae Teclu. In apropiere se regasesc cele mai importante puncte de interes din partea de est a ora?ului: IKEA, Auchan, Lidl, Metro, Decathlon, JYSK, Mega Image, Dedeman, Leroy Merlin, Jumbo ?i multe altele. Caracteristici ale apartamentelor: Se predau la cheie, complet racordate la toate utilita?ile publice: apa, gaz, electricitate ?i canalizare; Dispun de centrala termica proprie in condensare, pentru eficien?a energetica ?i controlul temperaturii; Finisaje incluse, la alegere: parchet, u?i de interior, gresie ?i faian?a; U?a metalica de acces ?i bai complet utilate, gata de folosire; Complexul beneficiaza de acces privat, cu poarta electrica ac?ionata prin telecomanda, oferind un plus de siguran?a ?i intimitate. Ansamblul este situat intr-un cartier 100% reziden?ial, ideal pentru familii, tineri profesioni?ti sau oricine i?i dore?te un camin modern intr-o zona verde ?i lini?tita, dar bine conectata la via?a urbana. Contacteaza-ne pentru mai multe detalii sau pentru a programa o vizionare! Termen finalizare FEBRUARIE 2026! ID anun? : 1773391613
Citește mai mult Citește mai puțin
Decomandat

Detalii apartament

ID anunț: 3935194 Actualizat în: 23 Martie 2026
Nr. camere: 2
Suprafață utilă: 51 mp
Suprafață utilă totală: 51 mp
Compartimentare: Decomandat
Etaj: Parter / 3
Nr. băi: 1
An construcție: 2026
Regim înălțime: P+3E

Istoric preț

Facilități

Utilități
Apă

Proprietăți similare

Apartament cu 2 camere decomandat în Theodor Pallady
84.000 € + TVA
București, Theodor Pallady
2 camere
46 mp
Etaj 4
Apartament cu 2 camere semidecomandat în Theodor Pallady
81.000 € + TVA
București, Theodor Pallady
2 camere
48 mp
Etaj 3 / 11
Apartament cu 2 camere semidecomandat în Theodor Pallady
79.000 € + TVA
București, Theodor Pallady
2 camere
36 mp
Etaj 2
Apartament cu 2 camere semidecomandat, mobilat în Theodor Pallady
73.500 € + TVA
București, Theodor Pallady
2 camere
45 mp
Etaj 6
Apartament cu 2 camere decomandat în Theodor Pallady
81.389 € + TVA
București, Theodor Pallady
2 camere
56,13 mp
Etaj 1
Apartament cu 2 camere decomandat în Theodor Pallady
87.143 € + TVA
București, Theodor Pallady
2 camere
60,1 mp
Etaj 1 / 3
Apartament cu 2 camere decomandat în Theodor Pallady
85.600 € + TVA
București, Theodor Pallady
2 camere
49 mp
Parter
Apartament cu 2 camere decomandat în Theodor Pallady
83.650 € + TVA
București, Theodor Pallady
2 camere
59,75 mp
Parter
Apartament cu 2 camere decomandat în Theodor Pallady
83.887 € + TVA
București, Theodor Pallady
2 camere
64,53 mp
Parter

Abonează-te la newsletter să fii primul care primește cele mai noi recomandări de proprietăți și sfaturi de la experți.