Titan Pallady Metrou 2 Camere Decomandat spatios cu terasa si gradina

101.450 € + TVA

Theodor Pallady, Bucureşti

Nr. camere:
2
Suprafață utilă:
62,9 mp
Etaj:
Parter / 4
An construcție:
2026
Nr. niveluri:
4

Descriere apartament

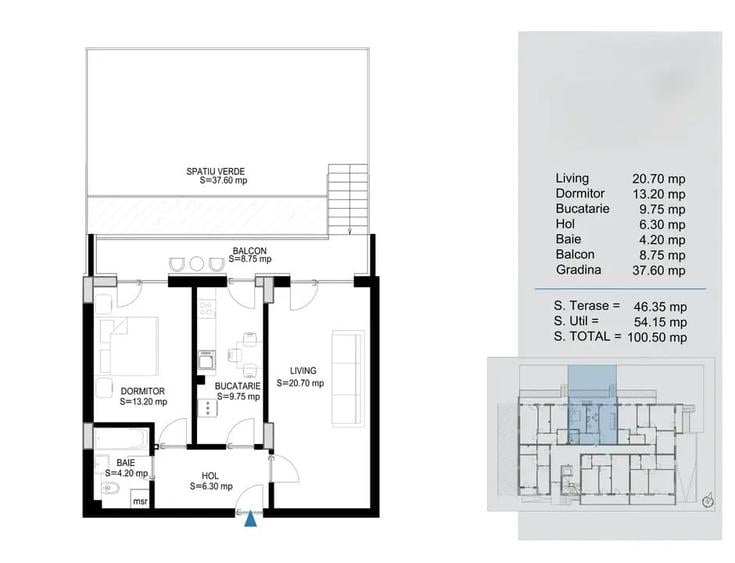
Iti place sa petreci timp in aer liber si esti in cautarea unui apartament modern cu gradina generoasa? Si cu finisaje de calitate? Si aproape de metrou? Apartament cu 2 camere decomandat cu terasa si gradina, avand o suprafata utila totala de aprox 62.9 mp, un balcon de 8.8 mp si o gradina generoasa de aprox 38 mp, la un pret excelent. Situat intr-un ansamblu rezidential cu regim redus de inaltime Ds+P+4E dotat cu un lift modern si silentios, parcare subterana si spatii verzi amenajate. Imobil realizat din beton armat cu inchideri exterioare si intre apartamente din caramida Porotherm de 30 cm, inchideri interioare de 11.5 cm, si izolatie din Polistiren EPS80. Eficienta energetica a apartamentului este data de: - Incalzire in pardoseala. - Spatiile vitrate mari care asigura o iluminare naturala deosebita in toate camerele - Tamplarie PVC marca Salamander cu geam tripan. - Centrala termica proprie ce permite contorizarea individuala. Apartamentul se preda gata de mutare cu posibilitatea de a personaliza locuinta dupa preferintele tale, cu finisaje la alegere: - Gresie si faianta la alegere dintr-un paletar extins, de exemplu cu aspect marmura/granit, stejar, etc - Parchet laminat, usi interioare din lemn albe - Usa de intrare antiefractie - Obiecte sanitare moderne, inclusiv WC suspendat si rezervor WC incastrat. Locatie Excelenta: Supermarket, cafenea, restaurant, coafor, petshop si multe altele in imediata apropiere Gradinita si scoala gimnaziala de stat la numai 5 minute de mers pe jos. Statia de metrou este situata la 15 minute de mers pe jos. Pretul afisat este valabil pentru un avans de 90% din surse proprii si nu include TVA. Pentru avans 15% prin credit bancar pretul este de 107720 EUR, plus TVA. Poze cu tiltu de prezentare. Direct Dezvoltator Zero Comision. Hai sa gasim apartamentul potrivit pentru tine si familita ta! VAUNT ID: 105757
Citește mai mult Citește mai puțin
Confort 1 Decomandat Curte comună Centrală proprie Bine întreținut (Bună)

Detalii apartament

ID anunț: 2527360 Actualizat în: 22 Ianuarie 2026
Nr. camere: 2
Suprafață utilă: 62,9 mp
Suprafață utilă totală: 62,9 mp
Compartimentare: Decomandat
Confort: 1
Etaj: Parter / 4
Nr. băi: 1
An construcție: 2026
Regim înălțime: P+4E

Istoric preț

Facilități

Pereți
Vopsea lavabilă Faianță
Podele
Gresie Parchet
Ușă intrare
Parchet Metal PVC Lemn
Stare interior
Stare bună
Izolații termice
Interior Exterior
Ferestre cu geam termopan
PVC Lemn
Contorizare
Apometre Contor căldură Contor gaz
Facilități imobil
Videointerfon Curte comună Lift
Utilități
Gaze Curent Apă Canalizare Cablu
Sistem încălzire
Centrală proprie
Internet
Fibră optică Cablu Wireless
Amenajare străzi
Iluminat stradal Mijloace de transport în comun Asfaltate
Servicii imobil
Administrare

Puncte de interes

Mijloace transport
transport
Chimopar
Mijloace transport aprox. 540 m
transport
Statia Chimopar, N111, 23, 27, 40
Mijloace transport aprox. 546 m
transport
Complex RATB Titan
Mijloace transport aprox. 560 m
transport
RATB Titan, Linia 246, N111, 23, 27, 40
Mijloace transport aprox. 579 m
Școală
education
Spectrum Liceul Teoretic International de Informatica
Învățământ aprox. 862 m
education
Gradinita nr. 68
Învățământ aprox. 1321 m
education
Gradinita Nr. 160
Învățământ aprox. 1622 m
education
Gradinita Nr. 160 - "soarelui"
Învățământ aprox. 1622 m
Recreere
parks
Parc
Recreere aprox. 199 m
shopping
Metro
Supermarket/Mall aprox. 260 m
shopping
Metro Pallady
Supermarket/Mall aprox. 260 m
restaurants
Best Western Plus Mari Vila Bucharest Hotel
Restaurante aprox. 1214 m

Proprietăți similare

Apartament cu 2 camere decomandat în Theodor Pallady
108.990 €
București, Theodor Pallady
2 camere
61,43 mp
Etaj 2
Apartament cu 2 camere decomandat în Theodor Pallady
93.000 € + TVA
București, Theodor Pallady
2 camere
62,57 mp
Etaj 2
Apartament cu 2 camere decomandat în Theodor Pallady
105.500 € + TVA
București, Theodor Pallady
2 camere
65,33 mp
Etaj 1
Apartament cu 3 camere decomandat în Theodor Pallady
105.838 € + TVA
București, Theodor Pallady
3 camere
75,6 mp
Etaj 1 / 4
Apartament cu 2 camere decomandat în Theodor Pallady
92.975 € + TVA
București, Theodor Pallady
2 camere
62,57 mp
Etaj 1
Apartament cu 2 camere decomandat în Theodor Pallady
102.000 € + TVA
București, Theodor Pallady
2 camere
62,95 mp
Etaj 1
Apartament cu 2 camere decomandat în Theodor Pallady
102.000 € + TVA
București, Theodor Pallady
2 camere
55 mp
Etaj 2
Apartament cu 2 camere decomandat în Theodor Pallady
94.000 € + TVA
București, Theodor Pallady
2 camere
52,96 mp
Etaj 1
Apartament cu 2 camere decomandat în Theodor Pallady
91.425 € + TVA
București, Theodor Pallady
2 camere
61,5 mp
Etaj 3

Abonează-te la newsletter să fii primul care primește cele mai noi recomandări de proprietăți și sfaturi de la experți.