Apartament duplex | 3 camere | 3 bai | 133 mp totali

€ 399.500

Dristor, Bucureşti

Nr. camere:
3
Suprafață utilă:
133,5 mp
Etaj:
11 / 11
An construcție:
2024
Nr. niveluri:
11

Descriere

Raportează anunț

Apartament duplex | 3 camere | 3 bai | 133 mp totali

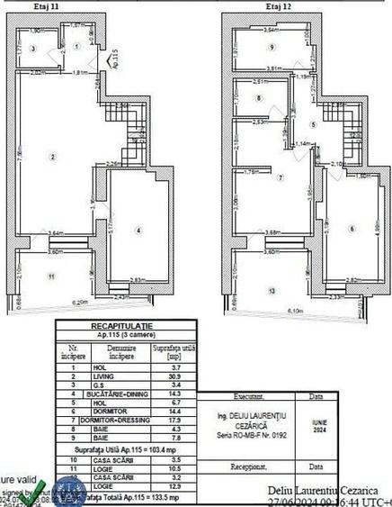
Impact Real Estate Advisors va propune spre vanzare un apartament cu trei camere in proiectul Select Residences dezvoltat de Anchor Grup, unul dintre cei mai importanți dezvoltatori din România. LOCALIZARE: Apartamentul este situat in sectorul 3 (trei) al capitalei, in imediata apropiere a: - Metrou Dristor; - Piata Alba Iulia; - Mall Vitan; - Numeroase centre de invatamant. COMPARTIMENTARE : Locuinta este dispusa pe doua etaje (etajele 11 si 12), compartimentata astfel: Parter (etajul 11) : - Zona de zi (Living-ul) are o suprafata de 30.9mp, aceasta avand acces catre prima terasa de 10.5mp; - Bucataria inchisa cu o suprafata de 14.3mp, este dotata cu mobilier din MDF, blatul bucatariei fiind din granit. Tot din aceasta incapere avem acces catre terasa; - Baie;; - Hol. Etaj 1 (etajul 12) : - Dormitorul matrimonial are o suprafata totala de 17.9mp cu dressing spatios inclus in aceasta suprafata; - Baia matrimoniala cu acces doar din dormitorul matrimonial - Dormitor secundar cu suprafata de 14.4mp; - Baia secundara de 7.8mp cu spatiu pentru masina de spalat rufe si pentru uscator. Se poate achiziționa un loc de parcare separat. Complexul dispune de doua lifturi spatioase, paza 24/7, sala fitness World Class, Shop&GO, spatii verzi, loc de joaca pentru copii, Pentru detalii suplimentare sau pentru a organiza vizionari, va rugam sa ne contactati.
Citește mai mult Citește mai puțin
ID anunț: 358989 Actualizat în: 19 Ianuarie 2026
Nr. camere: 3
Suprafață utilă: 133,5 mp
Suprafață utilă totală: 133,5 mp
Compartimentare: Decomandat
Etaj: Etaj 11 / 11
Nr. băi: 3
An construcție: 2024
Regim înălțime: P+11E

Istoric preț

Utilități

Utilități
Apă Gaze Climă Canalizare Mașină de spălat vase Mașină de spălat rufe Frigider Aragaz / Plită TV
Facilități
Mobilat Lift

Proprietăți similare

Apartament cu 3 camere decomandat, mobilat în Calea Călărașilor
€ 359.900
București, Calea Călărașilor
3 camere
80 mp
Etaj 1 / 6
Apartament cu 4 camere decomandat, mobilat în P-ța Unirii
€ 360.000
București, P-ța Unirii
4 camere
96 mp
Etaj 1 / 8
Apartament cu 3 camere în Unirii
€ 409.900 + TVA
București, Unirii
3 camere
162 mp
Etaj 1
Apartament cu 5 camere semidecomandat în Calea Călărașilor
€ 380.000
București, Calea Călărașilor
5 camere
170 mp
Etaj 1
Apartament cu 4 camere decomandat, mobilat în Unirii
€ 400.000
București, Unirii
4 camere
165 mp
Etaj 2 / 2
Apartament cu 4 camere semidecomandat, mobilat în Unirii
€ 389.900
București, Unirii
4 camere
105 mp
Etaj 1
Apartament cu 4 camere semidecomandat în Mihai Bravu
€ 399.000
București, Mihai Bravu
4 camere
135 mp
Etaj 5
Apartament cu 3 camere decomandat, mobilat în Splaiul Unirii
€ 420.000
București, Splaiul Unirii
3 camere
106 mp
Etaj 5 / 6
Apartament cu 4 camere semidecomandat în Mihai Bravu
€ 374.900 + TVA
București, Mihai Bravu
4 camere
127 mp
Etaj 13 / 16

Abonează-te la newsletter să fii primul care primește cele mai noi recomandări de proprietăți și sfaturi de la experți.