APARTAMENT CU 4 CAMERE AFLAT PE BD DECEBAL APROAPE DE PTA ALBA IULIA - UNIRII

294.000 €

Decebal, Bucureşti

Nr. camere:
4
Suprafață utilă:
100,6 mp
Etaj:
6 / 8
An construcție:
1990
Nr. niveluri:
8

Descriere apartament

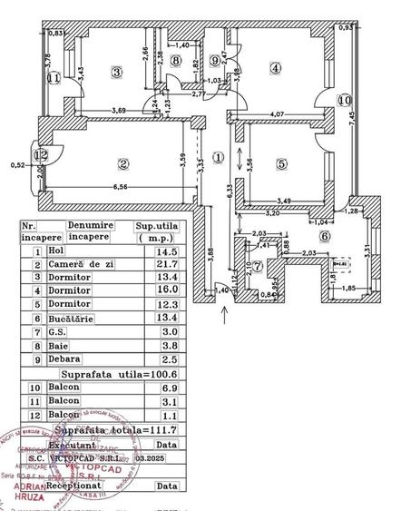
VANZARE Apartamentul cu 4 camere plus dependințe este situat într-un imobil solid, de tip monolit, finalizat în 1990, localizat pe Bulevardul Decebal, aflat aproape de Piață Alba Iulia, respectiv Bulevardul Unirii. Imobilul cu structura pe stâlpi, grinzi și planșee din beton armat, este dispus pe subsol, parter și 8 etaje. Este este un imobil îngrijit, locuit de oameni de buna factura. Apartamentul este unul versatil, din punct de vedere al compartimentării (atașat plan cadastral), acesta putând sa acomodeze cu ușurință o familie compusă din 4 membri, cu un nivel de comfort ideal. Ofera spații mari, aerisite și bine iluminate natural, precum și spații pentru depozitare de tip dressing și debara. Pe lângă cei 100.6 mp utili, apartamentul dispune de 3 balcoane, dintre care doua foarte spațioase, închise cu tâmplărie din PVC cu geam termopan. Dipune de centrala termica proprie, pe gaz, noua. Se vinde parțial mobilat si utilat, așa cum este prezentat în fotografii. Apartamentul nu prezintă modificări de compartimentare și poate fi achiziționat și prin credit ipotecar. Atât pentru mai multe informații, detalii tehnice, etc. cât și pentru stabilirea unei vizionari, așteptăm sa ne contactați, fiind pregătiți sa va oferim asistenta necesară în tot procesul de cumpărare.
Citește mai mult Citește mai puțin
Decomandat Parțial mobilat Aer condiționat Calorifere Centrală proprie

Detalii apartament

ID anunț: 229176 Actualizat în: 20 Martie 2026
Nr. camere: 4
Suprafață utilă: 100,6 mp
Suprafață utilă totală: 100,6 mp
Compartimentare: Decomandat
Etaj: Etaj 6 / 8
Nr. băi: 2
An construcție: 1990
Regim înălțime: P+8E

Istoric preț

Facilități

Pereți
Faianță Vopsea lavabilă
Podele
Gresie Parchet
Ușă intrare
Parchet Metal
Contorizare
Apometre Contor gaz
Bucătărie
Mobilată Utilată
Mobilat
Parțial mobilat
Electrocasnice
Aragaz Frigider Hotă Mașină de spălat
Diverse
Jacuzzi Senzor de fum
Facilități imobil
Interfon
Utilități
Curent Apă Canalizare Gaze Aragaz / Plită Frigider Mașină de spălat rufe Cablu Supraveghere video
Sistem încălzire
Calorifere Centrală proprie
Internet
Cablu Wireless
Climatizare
Aer condiționat
Amenajare străzi
Iluminat stradal Mijloace de transport în comun Asfaltate
Servicii imobil
Supraveghere video

Puncte de interes

Mijloace transport
transport
Statia Bd. Decebal / Dristorului linia N104, 104,70, 79, 92
Mijloace transport aprox. 129 m
transport
Statia Piata Alba Iulia linia N104, 104
Mijloace transport aprox. 144 m
transport
Statia Amazoanei linia N104,70, 79, 92
Mijloace transport aprox. 392 m
transport
Statia Calea Calarasilor / Delea Veche; Linia:N109, 70, 79, 92
Mijloace transport aprox. 486 m
Școală
education
Gradinita Era
Învățământ aprox. 332 m
education
Scoala cu clasele I-VIII, Nr. 70
Învățământ aprox. 469 m
education
Scoala nr. 70
Învățământ aprox. 477 m
education
Grupul Şcolar Industrial Timpuri Noi
Învățământ aprox. 522 m
Recreere
restaurants
Momentto Cafe
Restaurante aprox. 27 m
shopping
Spring Trest - Magazin non-stop (en)
Supermarket/Mall aprox. 119 m
parks
Parc/loc de joaca ptr copii
Recreere aprox. 171 m
shopping
Mega Image
Supermarket/Mall aprox. 239 m

Proprietăți similare

Apartament cu 3 camere în Decebal
285.000 €
București, Decebal
3 camere
97 mp
Etaj 5
Apartament cu 2 camere decomandat în Decebal
265.000 €
București, Decebal
2 camere
76 mp
Etaj 1
Apartament cu 4 camere decomandat în Decebal
319.000 €
București, Decebal
4 camere
115 mp
Etaj 6 / 8
Apartament cu 3 camere decomandat în Decebal
267.000 € + TVA
București, Decebal
3 camere
76,5 mp
Etaj 1 / 6
Apartament cu 3 camere decomandat în Decebal
295.000 €
București, Decebal
3 camere
97 mp
Etaj 3 / 8
Apartament cu 3 camere semidecomandat, mobilat în Decebal
264.900 €
București, Decebal
3 camere
70 mp
Etaj 5 / 9
Apartament cu 4 camere decomandat în Decebal
289.000 €
București, Decebal
4 camere
93 mp
Etaj 2
Apartament cu 3 camere decomandat în Decebal
265.000 €
București, Decebal
3 camere
83 mp
Etaj 4
Apartament cu 3 camere semidecomandat, mobilat în Decebal
274.900 €
București, Decebal
3 camere
63 mp
Etaj 5 / 9

Abonează-te la newsletter să fii primul care primește cele mai noi recomandări de proprietăți și sfaturi de la experți.