Piata Alba Iulia - Decebal - Bloc nou, modern, S+P+4 Etaje, lift

264.000 €

Decebal, Bucureşti

Nr. camere:
3
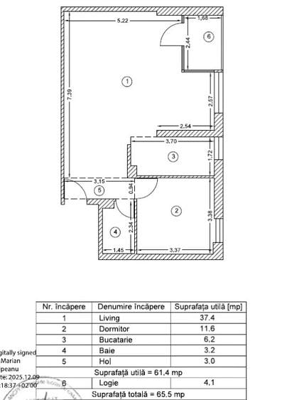
Suprafață utilă:
87 mp
Etaj:
3 / 4
An construcție:
2025 (Finalizată)
Nr. niveluri:
4

Descriere apartament

Imobilul este situat în sectorul 3, în proximitatea unor zone strategice și elemente cheie ale municipiului București, respectiv zona centrală, axe majore de circulație (Bulevardul Unirii si Bulevardul Decebal), elemente majore de cadru natural (Râul Dâmbovița, Parcul Național Lia Manoliu, Parcul I.O.R.), noduri de circulație reprezentative la nivelul întregului oraș (Piața Alba Iulia, Piața Muncii și Piața Unirii). Zona verde si liniștită, pe strada cu vile unde este amplasat imobilul, este rezidențială cu predominanta locuirii de tip individual în apropierea unor instituții publice sau de agrement. Ansamblul de imobile S+P+4E, având funcțiunea de locuințe colective si parcare subterană, cu acces din str. Gh. Dem Teodorescu nr. 29. Imobilul cuprinde garsoniere, apartamente de doua si trei camere luminoase cu spații vitrate, iar la parter se găsesc câteva unități care dispun de curte proprie. Structura de rezistenta este alcătuită din cadre de beton armat (stâlpi, grinzi si planșee) cu pereți din cărămidă, astfel soluția constructiva permite anumite modificări de compartimentare, eventual alipirea a două sau a mai multor apartamente situate pe același palier. Sistemul termoizolant performant va asigura clădirii o clasificare energetică clasa A. Apartamentele sunt predate la stadiul de ”alb”, astfel având posibilitatea de a personaliza locuință la standardele dorite de dumneavoastră. Apartamentele se vor vinde cu următoarele finisaje: - pereții finisați cu vopsea lavabilă albă; - contorizare individuală; - centrală individuală de 24 KW; - instalație electrică completă; - instalație sanitară; - instalație termică; - tâmplărie de aluminiu cu geam tripan; - ușă intrare; - interfon. Apartamentele nu vor avea montate gresia, faianta, parchetul, uși interioare, obiecte sanitare, prize și întrerupătoare. La cerere putem asigura amenajarea apartamentului cu finisajele solicitate de viitorul beneficiar. Opțional parcare subterană, preț 20.000E +21%TVA. Flexibilitate în stabilirea prețului brut. Locul de parcare este subteran si se vinde separat. Detalii tehnice : ➢ Structura de rezistentă este realizată din cadre de beton armat (stalpi, grinzi si plansee); ➢ Pereții sunt realizati din zidarie de cărămidă; ➢ Tamplaria este executată cu geam tripan, dublu izolator, profil aluminiu cu 5 camere, feronerie ROTO (Germania) si accesorii HOPP SECURIT (Elveția) antiefractie; ➢ Termosistem realizat din 10cm polistiren ignifug, protejat cu vopsea decorativa, granulatie 0,2mm; ➢ Hidroizolatia pe balcoane se realizeaza cu MAPEI (Germania), si placare cu granit; ➢ Hidroizolatia pe terase se realizeaza cu membrane triplustrat BAUDER (Germania), termoizolatie de minim 30 cm,cu garanție de 25 ani ; ➢ Fiecare apartament va fi dotat cu centrala termica Buderus pe gaz cu o putere de 24kW, ➢ Usa metalica Pinum la intrarea în apartament; ➢ Ușa de acces în bloc HORMANN (Germania); ➢ Fonoizolatii cu vata mineral bazaltica între pereții apartamentelor; ➢ Ascensoare de persoane Schindler; ➢ Interfon; ➢ Casa scării placata cu granit; ➢ Fațada ventilată. Pret 3.000E/mp.util+tva, discutabil. Prețul se calculează pe suprafata utila + balcon. Societate Comercială specializată în dezvoltarea proiectelor de construcții, pentru clădiri rezidențiale si nerezidențiale, prin reunirea mijloacelor financiare, tehnice si fizice pentru realizarea proiectelor de construcții în vederea vânzării ulterioare. Suntem prezenți pe piața imobiliara din anul 1992, având la activ numeroase imobile Premium, special în zona centrala a Bucurestiului ( Universitate, Cotroceni, Unirii, Decebal, Timpuri Noi, Mihai Bravu) dar nu numai ( ex: în construcție bloc de 4 etaje în sectorul 3, zona Ozana ). Va rog fara intermediari, direct dezvoltator! Va mulțumesc pentru interesul acordat si nu ezitați sa mă contactați telefonic pentru detalii suplimentare sau vizionarea imobilului! Contact: Tel.: Email: Cu stimă, Aurel Burlan
Citește mai mult Citește mai puțin
Confort lux Semidecomandat

Detalii apartament

ID anunț: Actualizat în: 31 Martie 2026
Nr. camere: 3
Suprafață utilă: 87 mp
Compartimentare: Semidecomandat
Sistem încălzire: Centrală proprie
Confort: Lux
Etaj: Etaj 3 / 4
Nr. băi: 2
An construcție: 2025 (Finalizată)
Regim înălțime: P+4E

Facilități

Utilități
Gaze Apă Internet Supraveghere video Aer condiționat
Facilități
Balcon Lift Curte Parcare
Comision
0%

Puncte de interes

Mijloace transport
transport
Statia Piata Alba Iulia linia N104, 104
Mijloace transport aprox. 281 m
transport
Statia Calea Calarasilor / Delea Veche; Linia:N109, 70, 79, 92
Mijloace transport aprox. 301 m
transport
Statia Calea Calarasilor / Delea Veche; Linia: 40, 56
Mijloace transport aprox. 312 m
transport
Delea Veche
Mijloace transport aprox. 314 m
Școală
education
Şcoala Specială nr. 5
Învățământ aprox. 438 m
education
Scoala Speciala nr. 5
Învățământ aprox. 438 m
education
Universitatea Hyperion
Învățământ aprox. 482 m
education
Universitatea Hyperion (en)
Învățământ aprox. 486 m
Recreere
parks
Parc
Recreere aprox. 100 m
restaurants
Delea Noua
Restaurante aprox. 153 m
shopping
Mega Image
Supermarket/Mall aprox. 180 m
shopping
Spring Trest - Magazin non-stop (en)
Supermarket/Mall aprox. 284 m

Proprietăți similare

Apartament cu 4 camere circular în Decebal
239.900 €
București, Decebal
4 camere
105 mp
Etaj 1 / 2
Apartament cu 3 camere decomandat în Decebal
260.000 €
București, Decebal
3 camere
84 mp
Etaj 1
Apartament cu 3 camere semidecomandat, mobilat în Decebal
247.000 €
București, Decebal
3 camere
64 mp
Etaj 1
Apartament cu 3 camere decomandat, mobilat în Decebal
263.000 €
București, Decebal
3 camere
82 mp
Etaj 3 / 8
Apartament cu 3 camere decomandat în Decebal
248.900 €
București, Decebal
3 camere
76 mp
Etaj 1 / 8
Apartament cu 3 camere decomandat, mobilat în Decebal
239.900 €
București, Decebal
3 camere
86 mp
Etaj 1 / 8
Apartament cu 3 camere semidecomandat în Decebal
255.000 €
București, Decebal
3 camere
88 mp
Etaj 2 / 8
Apartament cu 3 camere semidecomandat, mobilat în Decebal
250.000 €
București, Decebal
3 camere
67 mp
Etaj 6
Apartament cu 4 camere decomandat în Decebal
239.000 €
București, Decebal
4 camere
96 mp
Parter

Abonează-te la newsletter să fii primul care primește cele mai noi recomandări de proprietăți și sfaturi de la experți.