Particular, baba novac residence, parcare inclusa

319.999 €

Baba Novac, Bucureşti

Nr. camere:
3
Suprafață utilă:
78 mp
Etaj:
3
An construcție:
2019

Descriere

Particular, baba novac residence, parcare inclusa

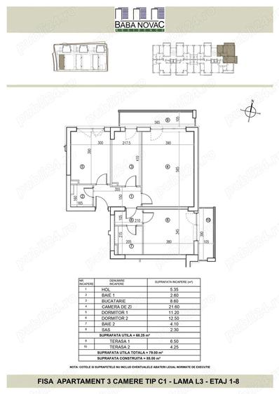
Particular, ap nou 3 cam BABA NOVAC RESIDENCE. loc de parcare suprateran este inclus in pret. (Exista posibilitatea si de loc de parcare subteran, inca la vanzare in complex) Ap. este la 7 minute de mers de Metrou Dristor. Ansamblul dispune de toate facilitatile specifice imobilelor noi: paza permanenta, supraveghere video 24 7, spatii verzi,locuri de joaca pentru copii, parcari subterane si supraterane. Apartamentul este construit in prima faza a proiectului, este situat la etajul 3 al unuia dintre imobilele cu 8 etaje din complex. Ap.este decomnadat, dispune de o suprafata utila de 77,7 mp, care include si doua balcone in suprafata totala de 10 mp. Din holul de intrare, se acceseaza toate camerele. Bucataria este inchisa. Apartamentul este mobilat si utilat si se vinde la cheie. Din living se acceseaza si balconul cu vedere libera, care te invita sa petreci cat mai mult timp pe el. Daca nu vrei sa stai pe balcon, atunci: - Parcul IOR este la 8 minute de mers (600 metri) - Park Lake se afla la 9 minute de mers (650 metri) - La capitolul World Class, ai de ales intre Park Lake si Galeriile Titan (20 minute de mers) - Restaurantele si cafenelele de pe Decebal sunt la 17 minute de mers (1.2 km) TVA-ul este inclus in pret. ID anun? : 1769972481
Citește mai mult Citește mai puțin
ID anunț: 2652136 Actualizat în: 02 Februarie 2026
Nr. camere: 3
Suprafață utilă: 78 mp
Suprafață utilă totală: 78 mp
Compartimentare: Decomandat
Etaj: Etaj 3
An construcție: 2019

Istoric preț

Utilități

Utilități
Apă

Proprietăți similare

Apartament cu 3 camere decomandat, mobilat în Alba Iulia
310.000 €
București, Alba Iulia
3 camere
91 mp
Etaj 1
Apartament cu 3 camere decomandat în Unirii
311.265 € + TVA
București, Unirii
3 camere
83 mp
Etaj 1 / 3
Apartament cu 3 camere decomandat, mobilat în Splaiul Unirii
295.000 €
București, Splaiul Unirii
3 camere
77 mp
Etaj 4 / 6
Apartament cu 3 camere decomandat, mobilat în Unirii
295.000 €
București, Unirii
3 camere
77 mp
Etaj 4
Apartament cu 3 camere decomandat în Unirii
290.000 €
București, Unirii
3 camere
80 mp
Etaj 2
Apartament cu 3 camere decomandat, mobilat în P-ța Unirii
290.000 €
București, P-ța Unirii
3 camere
74 mp
Etaj 2 / 7
Apartament cu 3 camere, mobilat în Unirii
289.900 €
București, Unirii
3 camere
80 mp
Etaj 2 / 7
Apartament cu 4 camere semidecomandat, mobilat în Unirii
350.000 €
București, Unirii
4 camere
135 mp
Etaj 4 / 4
Apartament cu 2 camere în P-ța Alba Iulia
295.000 €
București, P-ța Alba Iulia
2 camere
67 mp
Etaj 13

Abonează-te la newsletter să fii primul care primește cele mai noi recomandări de proprietăți și sfaturi de la experți.