Baba Novac intersectie Campia Libertatii, 5 minute parc IOR, mall, centrala

125.000 €

Baba Novac, Bucureşti

Nr. camere:
2
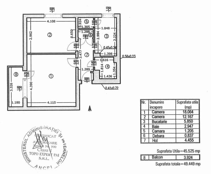
Suprafață utilă:
50 mp
Etaj:
4 / 10
An construcție:
1973
Nr. niveluri:
10

Descriere apartament

Va prezentam un apartament de 2 camere situat in Baba Novac intersectie Campia Libertatii, la numai 5 minute parc IOR si mall Park Lake, 15 minute metrou Dristor, intr-un bloc turn, reabilitat, la etajul 4 din 10. Apartamentul este decomandat, renovat integral in februarie 2026, are instalatiile electrice si sanitare noi, centrala, geamuri termopan, gresie, faianta, parchet, usa metalica. Apartamentul are toate actele si se accepta credit ipotecar.
Citește mai mult Citește mai puțin
Confort 1 Decomandat Centrală proprie Termoficare Renovat

Detalii apartament

ID anunț: 2335895 Actualizat în: 05 Martie 2026
Nr. camere: 2
Suprafață utilă: 50 mp
Suprafață utilă totală: 50 mp
Compartimentare: Decomandat
Confort: 1
Etaj: Etaj 4 / 10
Nr. băi: 1
An construcție: 1973
Regim înălțime: P+10E

Istoric preț

Facilități

Pereți
Faianță
Podele
Gresie Parchet
Ușă intrare
Parchet Metal PVC
Stare interior
Renovat
Ferestre cu geam termopan
PVC
Sistem încălzire
Termoficare Centrală proprie

Puncte de interes

Mijloace transport
transport
Statie troleu/bus Campia Libertatii
Mijloace transport aprox. 38 m
transport
Statie autobuz 311
Mijloace transport aprox. 67 m
transport
Statia Soseaua Campia Libertatii, linia 330
Mijloace transport aprox. 335 m
transport
statie troleu 70,92,79 (en)
Mijloace transport aprox. 585 m
Școală
education
Scoala Generala Nr. 86
Învățământ aprox. 356 m
education
Scoala Nr. 86
Învățământ aprox. 367 m
education
Scoala de muzica si arte plastice nr.5
Învățământ aprox. 377 m
education
Gradinita de copii nr.239
Învățământ aprox. 409 m
Recreere
parks
Parc
Recreere aprox. 94 m
restaurants
La Sediu
Restaurante aprox. 229 m
shopping
Mega Image Gloria
Supermarket/Mall aprox. 461 m
shopping
Mega Image - Campia Libertatii
Supermarket/Mall aprox. 466 m

Proprietăți similare

Apartament cu 2 camere semidecomandat în Baba Novac
116.000 €
București, Baba Novac
2 camere
56 mp
Etaj 2 / 10
Apartament cu 2 camere semidecomandat, mobilat în Baba Novac
119.000 €
București, Baba Novac
2 camere
56 mp
Etaj 3
Apartament cu 3 camere decomandat în Baba Novac
134.990 €
București, Baba Novac
3 camere
72 mp
Etaj 3 / 8
Apartament cu 2 camere semidecomandat, mobilat în Baba Novac
115.000 €
București, Baba Novac
2 camere
52 mp
Etaj 7
Apartament cu 2 camere decomandat în Baba Novac
125.000 €
București, Baba Novac
2 camere
38 mp
Parter / 8
Apartament cu 2 camere decomandat în Baba Novac
115.000 €
București, Baba Novac
2 camere
57 mp
Etaj 9 / 10
Apartament cu 3 camere semidecomandat, mobilat în Baba Novac
135.000 €
București, Baba Novac
3 camere
62 mp
Etaj 8
Apartament cu 2 camere semidecomandat în Baba Novac
116.000 €
București, Baba Novac
2 camere
52 mp
Etaj 2
Apartament cu 2 camere decomandat, mobilat în Baba Novac
114.000 €
București, Baba Novac
2 camere
50 mp
Etaj 2

Abonează-te la newsletter să fii primul care primește cele mai noi recomandări de proprietăți și sfaturi de la experți.