Dristor, Str. Ion Tuculescu, 10 min. pana la metrou Dristor, comision 0%

65.000 €

Baba Novac, Bucureşti

Nr. camere:
2
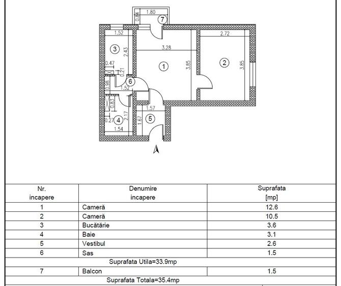
Suprafață utilă:
36 mp
Etaj:
6 / 10
An construcție:
1971
Nr. niveluri:
10

Descriere apartament

Va ofer in exclusivitate spre vanzare un apartament de 2 camere si dependinte situat pe Str. Ion Tuculescu (punct de reper: langa Baba Novac Residence). Distanta pana la statia de metrou Dristor, Parcul Titan sau ParkLake Mall se parcurge in aproximativ 10 minute. Apartamentul este situat intr-un bloc construit in anul 1971, cu regim de inaltime S+P+10E+etaj tehnic. Apartamentul este semidecomandat, situat la etajul 6, cu suprafata totala de 36 mp. Apartamentul este mobilat si utilat conform fotografiilor. In anul 2022, Primaria Sector 3 a solicitat elaborarea unei expertize tehnice in vederea reabilitarii, iar din sinteza expertizei tehnice reiese faptul ca blocul a fost incadrat in clasa de risc seismic RSII. Aceasta proprietate este intermediata de tehnician/consultant imobiliar. Pentru alte detalii tehnice sau juridice, va rugam sa ne contactati. Nu se percepe comision cumparatorului.
Citește mai mult Citește mai puțin
Semidecomandat

Detalii apartament

ID anunț: 3784493 Actualizat în: 10 Martie 2026
Nr. camere: 2
Suprafață utilă: 36 mp
Suprafață utilă totală: 36 mp
Compartimentare: Semidecomandat
Etaj: Etaj 6 / 10
An construcție: 1971
Regim înălțime: P+10E

Istoric preț

Proprietăți similare

Apartament cu 2 camere semidecomandat în Baba Novac
69.000 €
București, Baba Novac
2 camere
37 mp
Etaj 8 / 10
Apartament cu 2 camere nedecomandat în Theodor Pallady
70.248 € + TVA
București, Theodor Pallady
2 camere
58,55 mp
Parter
Apartament cu 2 camere, mobilat în 1 Decembrie 1918
66.500 €
București, 1 Decembrie 1918
2 camere
44 mp
Etaj 10
Apartament cu 2 camere semidecomandat în Est
69.900 €
București, Est
2 camere
46 mp
Parter
Apartament cu 2 camere semidecomandat, mobilat în 1 Decembrie 1918
62.000 €
București, 1 Decembrie 1918
2 camere
35 mp
Etaj 10
Apartament cu 2 camere decomandat în Theodor Pallady
61.500 € + TVA
București, Theodor Pallady
2 camere
51,25 mp
Etaj 2
Apartament cu 2 camere semidecomandat în Theodor Pallady
68.599 € + TVA
București, Theodor Pallady
2 camere
49 mp
Etaj 1
Apartament cu 2 camere decomandat, mobilat în Fizicienilor
67.500 €
București, Fizicienilor
2 camere
54 mp
Etaj 5
Apartament cu 2 camere semidecomandat în Theodor Pallady
63.660 € + TVA
București, Theodor Pallady
2 camere
53,05 mp
Etaj 2

Abonează-te la newsletter să fii primul care primește cele mai noi recomandări de proprietăți și sfaturi de la experți.