Apartament 2 camere I Fabrica de Glucoza

185.000 €

Tei, Bucureşti

Nr. camere:
2
Suprafață utilă:
63 mp
Etaj:
7 / 10
An construcție:
2025
Nr. niveluri:
10

Descriere apartament

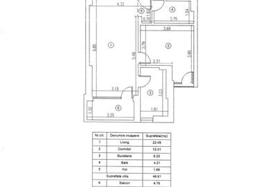
REA1028524 SVN Residentialist Pipera va ofera spre vanzare un apartament modern de 2 camere, situat in zona Fabrica de Glucoza, una dintre cele mai dinamice si in plina dezvoltare zone din nordul Bucurestiului. Apartamentul este decomandat, foarte bine compartimentat si luminos, fiind situat la etajul 7 din 9, intr-un imobil nou finalizat in anul 2025. Are o suprafata utila de aproximativ 49.8 mp, la care se adauga un balcon generos de 13.2 mp, rezultand o suprafata totala de 63 mp. Proprietatea este nelocuita, oferind avantajul unui spatiu nou, pregatit pentru amenajare sau mutare imediata. Locuinta dispune de un living spatios, un dormitor confortabil, bucatarie separata, baie, hol cu spatii de depozitare si un balcon mare, ideal pentru relaxare. Vederea este panoramica, deschisa si neobturata, catre oras si zona verde, oferind un plus de intimitate si confort. Apartamentul beneficiaza de lumina naturala din plin pe tot parcursul zilei si este pozitionat excelent, cu acces rapid catre zonele de business precum Pipera, Floreasca si Barbu Vacarescu. In apropiere se regasesc centre comerciale, cladiri de birouri si mijloace de transport, ceea ce il face ideal atat pentru locuit, cat si pentru investitie, avand un potential foarte bun de inchiriere. Zona Fabrica de Glucoza este una moderna si in continua dezvoltare, foarte cautata datorita infrastructurii si proximitatii fata de principalele puncte de interes din nordul capitalei. Va invitam cu drag sa programati o vizionare si sa descoperiti personal aceasta proprietate exceptionala! Daca aveti intrebari sau doriti informatii suplimentare, nu ezitati sa ne sunati.
Citește mai mult Citește mai puțin
Decomandat

Detalii apartament

ID anunț: 4096317 Actualizat în: 07 Aprilie 2026
Nr. camere: 2
Suprafață utilă: 63 mp
Suprafață utilă totală: 63 mp
Compartimentare: Decomandat
Etaj: Etaj 7 / 10
An construcție: 2025
Regim înălțime: P+10E

Istoric preț

Puncte de interes

Mijloace transport
transport
Metrorex. Staţia Pipera (M2)(1987)
Mijloace transport aprox. 326 m
transport
Pipera (M2)
Mijloace transport aprox. 337 m
transport
Electronica
Mijloace transport aprox. 356 m
transport
Statia Electronica, linia 16,36
Mijloace transport aprox. 373 m
Școală
education
Colegiul Tehnic Edmond Nicolau, fostul Electronica
Învățământ aprox. 710 m
education
Grupul Scolar Industrial Constantin Brancusi (en)
Învățământ aprox. 752 m
education
Gradinita nr. 7
Învățământ aprox. 1078 m
education
Gradinita SOS Satul Copiilor
Învățământ aprox. 1109 m
Recreere
restaurants
Q'inn
Restaurante aprox. 84 m
shopping
Carrefour
Supermarket/Mall aprox. 404 m
parks
Parc
Recreere aprox. 493 m
shopping
Carrefour Market
Supermarket/Mall aprox. 927 m

Proprietăți similare

Apartament cu 3 camere semidecomandat, mobilat în Tei
195.000 €
București, Tei
3 camere
70 mp
Etaj 2
Apartament cu 2 camere în Tei
175.000 €
București, Tei
2 camere
51 mp
Parter / 3
Apartament cu 2 camere decomandat în Tei
189.000 €
București, Tei
2 camere
51 mp
Parter
Apartament cu 3 camere decomandat în Tei
200.000 € + TVA
București, Tei
3 camere
60 mp
Parter
Apartament cu 3 camere decomandat în Tei
171.500 €
București, Tei
3 camere
72 mp
Parter
Apartament cu 2 camere în Tei
195.000 €
București, Tei
2 camere
47 mp
Etaj 4
Apartament cu 3 camere decomandat, mobilat în Tei
169.000 €
București, Tei
3 camere
78 mp
Etaj 1
Apartament cu 2 camere decomandat, mobilat în Tei
183.000 €
București, Tei
2 camere
57 mp
Etaj 1 / 3
Apartament cu 2 camere în Tei
199.000 €
București, Tei
2 camere
44 mp
Etaj 2

Abonează-te la newsletter să fii primul care primește cele mai noi recomandări de proprietăți și sfaturi de la experți.