Apartament 4 camere cu priveliste exclusivista - Parcul Circului

570.000 €

Parcul Circului, Bucureşti

Nr. camere:
4
Suprafață utilă:
95 mp
Etaj:
6 / 7
An construcție:
2011
Nr. niveluri:
7

Descriere apartament

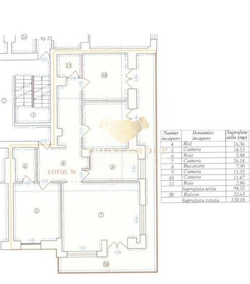
Apartament situat la etajul 6 al unui imobil nou, receptionat si livrat la inceputul anului 2011, conceput ca un proiect rezidential exclusivist, amplasat intr-o zona centrala a Bucurestiului. Proprietatea beneficiaza de acces facil catre principalele mijloace de transport in comun, dar in acelasi timp ofera liniste, intimitate si privelisti ample catre Parcul Circului si zona de Nord a orasului. Pozitionarea excelenta asigura deschideri generoase catre Floreasca, Herastrau si Casa Presei Libere, zona fiind completata de toate facilitatile si punctele de interes necesare unui stil de viata modern si confortabil. Imobilul dispune de 3 niveluri de subsol, proiectate pentru a asigura suficiente locuri de parcare pentru toate apartamentele. Structura de rezistenta este realizata cu incinta de piloti forati secanti, cu excavatie pana la adancimea de -11 m, sub nivelul panzei freatice, oferind un grad ridicat de siguranta si stabilitate. Dotarile cladirii includ lift Schindler, centrala termica Buderus cu arzator Weishaupt, panouri solare Buderus Logasol (40 mp), paza umana si supraveghere video 24/7, sistem automat de detectare si stingere a incendiilor, sistem de detectare si evacuare a noxelor din subsol, precum si sistem de degivrare pentru rampa de acces catre parcarea subterana. Apartamentul are o suprafata utila de 94,55 mp, completata de o terasa generoasa de 25,63 mp, ideala pentru relaxare si pentru a profita de privelistile deschise oferite de pozitionarea la etaj superior.
Citește mai mult Citește mai puțin
Confort 1 Decomandat Centrală proprie

Detalii apartament

ID anunț: 700240 Actualizat în: 16 Februarie 2026
Nr. camere: 4
Suprafață utilă: 95 mp
Suprafață utilă totală: 95 mp
Compartimentare: Decomandat
Confort: 1
Etaj: Etaj 6 / 7
Nr. băi: 2
An construcție: 2011
Regim înălțime: P+7E

Istoric preț

Facilități

Utilități
Curent
Sistem încălzire
Centrală proprie
Podele
Parchet Gresie
Ușă intrare
Parchet Metal PVC
Izolații termice
Exterior Interior
Ferestre cu geam termopan
PVC

Puncte de interes

Mijloace transport
transport
Statia Bd. Lacul Tei, linia 182, 282, N123,5
Mijloace transport aprox. 111 m
transport
Bulevardul Lacul Tei
Mijloace transport aprox. 146 m
transport
Bulevardul Lacul Tei
Mijloace transport aprox. 155 m
transport
Statia Circul Bucuresti, linia 182, 282, N123
Mijloace transport aprox. 217 m
Școală
education
Scoala Generala nr.28
Învățământ aprox. 342 m
education
Scoala Generala nr. 28
Învățământ aprox. 342 m
education
Clubul Sportiv Dinamo Bucuresti
Învățământ aprox. 454 m
education
Athenaeum University (en)
Învățământ aprox. 579 m
Recreere
restaurants
Cup & Cake
Restaurante aprox. 113 m
parks
Parcul Circului(1961)
Recreere aprox. 221 m
shopping
Mega Image
Supermarket/Mall aprox. 619 m
shopping
Kaufland Barbu Vacarescu
Supermarket/Mall aprox. 855 m

Proprietăți similare

Apartament cu 3 camere decomandat, mobilat în Barbu Văcărescu
549.990 €
București, Barbu Văcărescu
3 camere
70 mp
Etaj 7 / 10
Apartament cu 4 camere decomandat în Foișorul de Foc
517.000 €
București, Foișorul de Foc
4 camere
136 mp
Etaj 4 / 10
Apartament cu 6 camere decomandat în Armeneasca
550.000 €
București, Armeneasca
6 camere
160 mp
Etaj 1
Apartament cu 4 camere decomandat în Petricani
595.000 € + TVA
București, Petricani
4 camere
142 mp
Etaj 1 / 4
Apartament cu 7 camere în Ferdinand
575.000 € + TVA
București, Ferdinand
7 camere
185 mp
Etaj 3 / 10
Apartament cu 6 camere decomandat, mobilat în Pache Protopopescu
620.000 €
București, Pache Protopopescu
6 camere
185 mp
Parter / 2
Apartament cu 5 camere semidecomandat în Moșilor
620.000 €
București, Moșilor
5 camere
190 mp
Parter
Apartament cu 4 camere în Barbu Văcărescu
625.000 € + TVA
București, Barbu Văcărescu
4 camere
183 mp
Etaj 9
Apartament cu 6 camere decomandat, mobilat în Armeneasca
600.000 €
București, Armeneasca
6 camere
160 mp
Parter / 2

Abonează-te la newsletter să fii primul care primește cele mai noi recomandări de proprietăți și sfaturi de la experți.