Calea Mosilor | Finisaje Lux | Apartament 2 camere | 107mp | B12517

219.900 €

Moşilor, Bucureşti

Nr. camere:
2
Suprafață utilă:
82 mp
Etaj:
Demisol / 3
An construcție:
2010
Nr. niveluri:
3

Descriere apartament

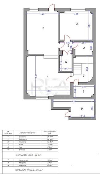
Vanzare Apartament 2 camere.Pret:219.900 Euro.Zona: Calea Mosilor - Obor, oferta: PYF018B12517.Detalii proprietate:Un apartament unic, intr o zona extrem de valoroasa si centrala, a Bucurestiului, cautata atat de familii cat si de investitori, liniste, central, facilitatii nenumerate, toate la cativa pasi!Detalii proprietate:.Tip locuinta: ApartamenteTip operatiune: vanzareNumar camere: 2 camere (1 dormitoare)Suprafata utila: 82 mpSuprafata totala: 107 mpEtaj: demisol INALT 3Compartimentare: semidecomandatConfort: 1An constructie : 2010An renovare : 2025Tip imobil: bloc mixtIncalzire : Incalzire prin pardosealaBai: 1Bucatarii: 1 (inchisa, utilata, mobilata, da )Mobilare : complet, modernStare generala: Stare excelentaUsa intrare: metalVedere: mixtaDestinatie: locuinta birou, birou, locuintaAcces rapid la mijloace de transport in comun:-Statia de metrou: (M1) Metrou Obor-500m, imobil-statie,-autobuze: [66, 79, 86, 97, 135, N108-300m, 101, 143, 330, 335, N10-460m, 409, 409B, 411, 412, 413, 417, 4167, 168, 168B-530m, imobil-statie],-tramvaie: [21,-300m, 1, 10 - 500m, imobil-statie]In apropiere:-Piata Obor, Auchan, Annabela, Kaufland, Mega Image, Berezka, SuperMercato, Halal Macelarie Arabeasca, Al Taiba, Froo, August;-Gradinita Iepurasul Cel Istet, Gradinita Magnolia nr. 133, Gradinita Livada cu Copii, Gradinita Don Castor, Kindi Montessori, Gradinita Nemo, Gradinita Little Learners;-Scoala Gimnaziala Sfantul Silivestru, Scoala Numarul 26, Scoala Gimnaziala Nr. 307, Scoala Gimnaziala Nr. 71, Gimnaziul Monterra-scoala privata;-Liceul Teoretic Dr. Mioara Mincu, Colegiul National Bilingv George Cosbuc, Liceul Teoretic Ady Endre, Colegiul National Iulia Hasdeu, Colegiul National Miahi Viteazu, Colegiul Economic AD Xenopol, Colegiul Tehnologic Ion IC Bratianu;-Parcul Obor, Parcul Pasari, Veranda Mall, Complex Obor, Bucur Obor, Foisorul De Foc;Parcare: posibilitate in strada (1 locuri)Apartamente pe palier: 1Siguranta: interfon - video interfon, lift - liftIzolatii: interior, exteriorAgent responsabil: Robert T.Important de stiut:Vizionarile se realizeaza in baza unui contract de prestari servicii, semnat intre client si agentie. Este necesara prezentarea unui act de identitate. Neprezentarea acestuia poate duce la anularea sau neprogramarea percepe comision din partea cumparatorului conform politicii Pyf Real EstateDin cauza numarului mare de oferte si a fluctuatiei pietei imobiliare informatiile din oferta pot suferi modificari atat in sens apreciativ, cat si in sens depreciativ, de asemenea, este posibil sa nu mai fie de actualitate la momentul prezentarii. Pentru clarificarea acestor aspecte va rugam solicitati actualizarea ofertei ofertelor dorite!Alege PYF REAL ESTATE - partenerul tau de incredere in imobiliare.Transforma visul tau in realitate - contacteaza-ne acum!Anunt relevant pentru cautari in Calea Mosilor, Bucur Obor, Obor, Iancului, Ferdinand, Bulevardul Ferdinand, investitie, zona centrala.
Citește mai mult Citește mai puțin
Semidecomandat Mobilat Aer condiționat Centrală proprie

Detalii apartament

ID anunț: 2749015 Actualizat în: 11 Martie 2026
Nr. camere: 2
Suprafață utilă: 82 mp
Suprafață utilă totală: 82 mp
Compartimentare: Semidecomandat
Etaj: Demisol / 3
An construcție: 2010
Regim înălțime: P+3E

Istoric preț

Facilități

Pereți
Vopsea lavabilă Faianță
Podele
Parchet Gresie
Rulouri/Obloane
Lemn
Ușă intrare
Parchet Metal PVC
Uși interior
Celulare PVC
Izolații termice
Bloc izolat termic
Ferestre cu geam termopan
PVC
Contorizare
Apometre Contor căldură Contor gaz
Bucătărie
Mobilată Utilată
Dotări
Lift
Mobilat
Mobilat
Electrocasnice
Aragaz Frigider Hotă Mașină de spălat TV
Alte spații utile
Debara WC Serviciu
Facilități imobil
Interfon Lift
Sistem încălzire
Centrală proprie
Internet
Wireless
Climatizare
Aer condiționat
Amenajare străzi
Asfaltate Betonate Iluminat stradal Mijloace de transport în comun

Puncte de interes

Mijloace transport
transport
Statia Fainari; Liniile:N101, 66
Mijloace transport aprox. 9 m
transport
Obor
Mijloace transport aprox. 288 m
transport
Bucur Obor
Mijloace transport aprox. 300 m
transport
Metrorex. Staţia Obor (M1)(1989)(Fosta statie de tramvai subterana)
Mijloace transport aprox. 329 m
Școală
education
Scoala Nr. 50
Învățământ aprox. 165 m
education
ŞCOALA DE ARTE ŞI MESERII NR. 3
Învățământ aprox. 340 m
education
Gradinita Magnolia
Învățământ aprox. 353 m
education
Scoala de Arte si Meserii Nr. 3
Învățământ aprox. 381 m
Recreere
shopping
Mega Image Fainari
Supermarket/Mall aprox. 31 m
parks
Parc
Recreere aprox. 79 m
restaurants
Restaurant Casa Jienilor
Restaurante aprox. 128 m
shopping
Mega Image
Supermarket/Mall aprox. 245 m

Proprietăți similare

Apartament cu 4 camere semidecomandat, mobilat în Moșilor
223.500 €
București, Moșilor
4 camere
79 mp
Etaj 5
Apartament cu 2 camere semidecomandat în Moșilor
233.500 € + TVA
București, Moșilor
2 camere
57 mp
Etaj 4 / 4
Apartament cu 5 camere circular, mobilat în Moșilor
205.000 €
București, Moșilor
5 camere
95 mp
Etaj 1 / 3
Apartament cu 4 camere decomandat, mobilat în Moșilor
217.000 €
București, Moșilor
4 camere
79 mp
Etaj 7 / 10
Apartament cu 4 camere semidecomandat, mobilat în Moșilor
210.000 €
București, Moșilor
4 camere
86 mp
Etaj 2 / 8
Apartament cu 3 camere semidecomandat în Moșilor
220.000 €
București, Moșilor
3 camere
84 mp
Parter
Apartament cu 2 camere decomandat în Moșilor
234.500 €
București, Moșilor
2 camere
52 mp
Etaj 4 / 4
Apartament cu 4 camere decomandat în Moșilor
220.000 €
București, Moșilor
4 camere
95 mp
Etaj 1 / 8
Apartament cu 2 camere semidecomandat, mobilat în Moșilor
230.000 €
București, Moșilor
2 camere
73,69 mp
Parter / 1

Abonează-te la newsletter să fii primul care primește cele mai noi recomandări de proprietăți și sfaturi de la experți.