Apartament 2 camere 53 mp, Colentina intersecție Teiul Doamnei

77.000 €

Colentina, Bucureşti

Nr. camere:
2
Suprafață utilă:
53 mp
Etaj:
10 / 10
An construcție:
1970
Nr. niveluri:
10

Descriere apartament

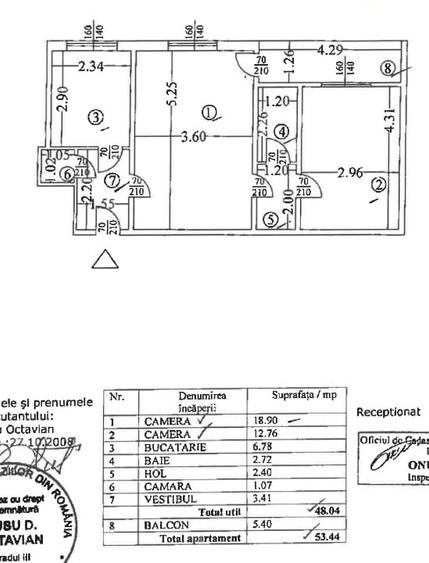
Vand apartament de 2 camere semidecomandat localizat pe soseaua Colentina aproape de intersectia cu Teiul Doamnei. Este situat la etajul 10 din 10. Suprafata este de 53 mp dintre care 4 mp reprezinta balconul. Este foarte luminos cu vedere degajata (spre soseaua Colentina), orientat sud-vest, termopane peste tot si un balcon mare. Are aer conditionat. Solul este din parchet laminat. Apartamentul merita o renovare (de exemplu cada de baie), dar se poate locui fara probleme cu o minima investitie, in asteptarea unei renovari mai serioase. In acest moment nu este locuit, disponibil imediat. Blocul a fost reabilitat termic, clasa de risc seismic RsII. Se poate vizita intre 17 si 29 aprilie. Cel care vinde este un particular, nu trebuie platit nici un comision. Puteti sa ma contactati prin mesaj sau apel whatsapp la numarul +33628136906. Mai multe poze si o filmare video se pot gasi la adresa urmatoare: tinyurl punct com slash mtyswkrj
Citește mai mult Citește mai puțin
Confort 1 Semidecomandat Parțial mobilat Aer condiționat Termoficare Necesită renovare

Detalii apartament

ID anunț: 3951568 Actualizat în: 25 Martie 2026
Nr. camere: 2
Suprafață utilă: 53 mp
Suprafață utilă totală: 53 mp
Compartimentare: Semidecomandat
Confort: 1
Etaj: Etaj 10 / 10
An construcție: 1970
Regim înălțime: P+10E

Istoric preț

Facilități

Sistem încălzire
Termoficare
Climatizare
Aer condiționat
Mobilat
Parțial mobilat
Stare interior
Necesită renovare

Puncte de interes

Mijloace transport
transport
Teiul Doamnei
Mijloace transport aprox. 63 m
transport
Statia Suveica, linia 21
Mijloace transport aprox. 74 m
transport
Teiul Doamnei
Mijloace transport aprox. 153 m
transport
Statia Suveica, linia 143, 182, 682, 254, 101,66
Mijloace transport aprox. 199 m
Școală
education
Coccinelle
Învățământ aprox. 114 m
education
Gradinita particulara
Învățământ aprox. 117 m
education
Gradinita nr. 233
Învățământ aprox. 227 m
education
Scoala generala nr. 27
Învățământ aprox. 306 m
Recreere
restaurants
Dristor Kebap Colentina
Restaurante aprox. 99 m
parks
Parc
Recreere aprox. 118 m
shopping
Carrefour Express
Supermarket/Mall aprox. 163 m
shopping
Hamudi Star Company
Supermarket/Mall aprox. 169 m

Proprietăți similare

Apartament cu 2 camere decomandat în Colentina
83.999 €
București, Colentina
2 camere
49 mp
Parter
Apartament cu 2 camere semidecomandat în Colentina
82.500 €
București, Colentina
2 camere
49,16 mp
Etaj 5
Apartament cu 2 camere decomandat, mobilat în Colentina
80.000 €
București, Colentina
2 camere
46 mp
Etaj 9 / 10
Apartament cu 2 camere decomandat în Colentina
79.000 €
București, Colentina
2 camere
56 mp
Etaj 7
Apartament cu 2 camere în Colentina
74.500 €
București, Colentina
2 camere
52 mp
Apartament cu 2 camere, mobilat în Colentina
73.990 €
București, Colentina
2 camere
57 mp
Etaj 5
Apartament cu 2 camere decomandat în Colentina
80.000 € + TVA
București, Colentina
2 camere
62 mp
Etaj 2
Apartament cu 2 camere decomandat, mobilat în Colentina
72.000 €
București, Colentina
2 camere
37 mp
Etaj 8
Apartament cu 2 camere decomandat în Colentina
70.000 €
București, Colentina
2 camere
57 mp
1980

Abonează-te la newsletter să fii primul care primește cele mai noi recomandări de proprietăți și sfaturi de la experți.