Decomandat, Ion Berindei - Doamna Ghica

79.500 €

Colentina, Bucureşti

Nr. camere:
2
Suprafață utilă:
49 mp
Etaj:
8 / 10
An construcție:
1973
Nr. niveluri:
10

Descriere apartament

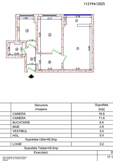
Vânzare apartament cu două camere, decomandat, pe Strada Ion Berindei, în imediata apropiere a pasajului Doamna Ghica și în plan secundar față de Șoseaua Colentina, în bloc construit în 1973, reabilitat termic, la etajul 8/10. Apartamentul este decomandat, cu hol mare la intrare, baia în stânga și bucătăria în față, apoi dormitorul și sufrageria cu balconul tip logie în capăt. Suprafața utilă totală este de 49,4 mp iar orientarea cardinală este către Răsărit.Dispune de un aparat de aer condiționat, ușă metalică, geamuri termopan. Scara este curată, liftul a fost modernizat și sunt 4 apartamente pe palier iar blocul este de tipul OD. Se poate monta centrală termică pe gaz, fiind conductă separată pe scară. Zona este ofertantă cu numeroase facilități în apropiere: - Parcul Plumbuita în vecinătate - Pasaj Doamna Ghica si intersectia cu Soseaua Colentina 100 metri - Piața și metroul Bucur Obor se află la 15 -20 minute de mers pe jos sau 3 stații STB - Kaufland, Veranda Mall la 10 minute - Facultatea de Constructii și Lacul Tei la 6 minute Actele sunt pregătite pentru vânzare iar comisionul pentru cumpărător este 0%
Citește mai mult Citește mai puțin
Confort 1 Decomandat Aer condiționat Calorifere Termoficare Necesită renovare

Detalii apartament

ID anunț: 3743594 Actualizat în: 09 Martie 2026
Nr. camere: 2
Suprafață utilă: 49 mp
Suprafață utilă totală: 49 mp
Compartimentare: Decomandat
Confort: 1
Etaj: Etaj 8 / 10
Nr. băi: 1
An construcție: 1973
Regim înălțime: P+10E

Istoric preț

Facilități

Pereți
Faianță Vopsea lavabilă
Podele
Gresie Parchet
Ușă intrare
Parchet Metal PVC
Stare interior
Necesită renovare
Izolații termice
Exterior
Ferestre cu geam termopan
PVC
Contorizare
Apometre
Facilități imobil
Lift Interfon
Utilități
Gaze Curent Canalizare Apă
Sistem încălzire
Calorifere Termoficare
Internet
Fibră optică
Climatizare
Aer condiționat
Amenajare străzi
Asfaltate Iluminat stradal Mijloace de transport în comun
Servicii imobil
Administrare

Puncte de interes

Mijloace transport
transport
Statie RATB (en)
Mijloace transport aprox. 108 m
transport
Statia Doamna Ghica, linia 66
Mijloace transport aprox. 131 m
transport
Doamna Ghica
Mijloace transport aprox. 174 m
transport
Statia Suveica, linia 143, 182, 682, 254, 101,66
Mijloace transport aprox. 187 m
Școală
education
Gradinita nr. 233
Învățământ aprox. 170 m
education
Coccinelle
Învățământ aprox. 244 m
education
Gradinita particulara
Învățământ aprox. 248 m
education
Scoala Nr. 30 Grigore Ghica Voievod
Învățământ aprox. 389 m
Recreere
restaurants
Fast Food
Restaurante aprox. 127 m
shopping
ED&SA
Supermarket/Mall aprox. 178 m
shopping
Mega Image
Supermarket/Mall aprox. 207 m
parks
Parc
Recreere aprox. 239 m

Proprietăți similare

Apartament cu 2 camere decomandat în Colentina
85.000 €
București, Colentina
2 camere
53 mp
Etaj 2
Apartament cu 2 camere decomandat în Colentina
76.000 €
București, Colentina
2 camere
50 mp
Etaj 7
Apartament cu 2 camere decomandat în Colentina
84.000 €
București, Colentina
2 camere
60 mp
Etaj 8
Apartament cu 2 camere decomandat, mobilat în Colentina
84.000 €
București, Colentina
2 camere
52 mp
Etaj 7
Apartament cu 2 camere decomandat în Colentina
80.000 € + TVA
București, Colentina
2 camere
62 mp
Etaj 2
Apartament cu 2 camere semidecomandat, mobilat în Colentina
76.000 €
București, Colentina
2 camere
54 mp
Etaj 3
Apartament cu 2 camere semidecomandat, mobilat în Colentina
84.980 €
București, Colentina
2 camere
60 mp
Parter / 4
Apartament cu 2 camere decomandat, mobilat în Colentina
84.000 €
București, Colentina
2 camere
60 mp
Etaj 8
Apartament cu 3 camere decomandat în Colentina
86.500 €
București, Colentina
3 camere
67 mp
Parter

Abonează-te la newsletter să fii primul care primește cele mai noi recomandări de proprietăți și sfaturi de la experți.