ARMENEASCA - Mantuleasa 5 camere renovat lux liber

280.000 €

Armeneasca, Bucureşti

Nr. camere:
5
Suprafață utilă:
117 mp
Etaj:
3 / 6
An construcție:
1936
Nr. niveluri:
6

Descriere apartament

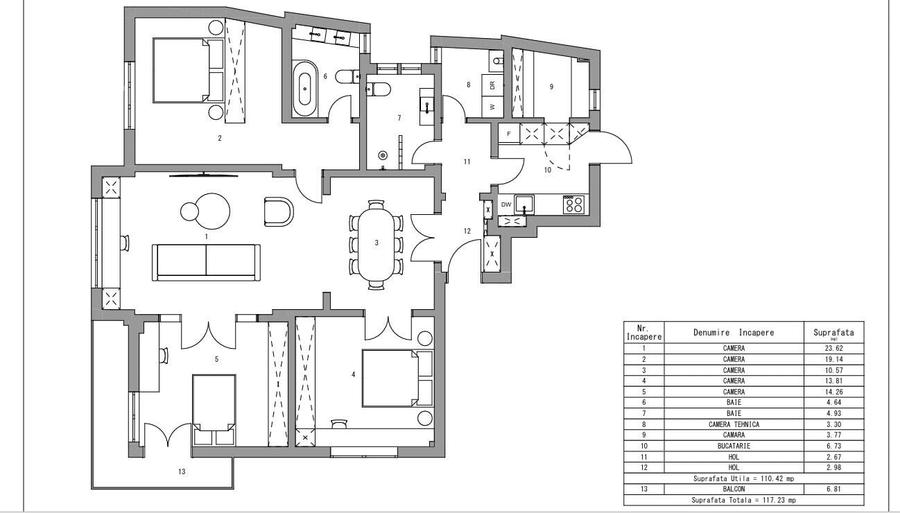
Situat în eleganta zonă Armenească, una dintre cele mai rafinate și istorice zone centrale ale Bucureștiului, acest apartament deosebit de 5 camere oferă combinația rară dintre arhitectura interbelică autentică, spații generoase și confortul unei locuințe cu deschidere către exterior. Proprietatea se află într-un imobil solid construit în perioada 1932–1936, realizat pe structură monolit, cu planșee din beton armat cu armătură de fier – o tehnică modernă pentru acea vreme. Materialele utilizate la construcția clădirii au fost aduse din Europa, ceea ce reflectă standardele ridicate de execuție și durabilitate specifice arhitecturii interbelice. Apartamentul are o suprafață utilă de 117 mp și o suprafață construită de 130 mp, fiind compartimentat armonios cu un living generos, dining separat, dormitor matrimonial cu baie proprie plus o baie pentru celelalte două dormitoare. Spațiile sunt bine proporționate, luminoase și oferă un ambient elegant, specific locuințelor construite în perioada de aur a Bucureștiului, iar renovarea s-a realizat după ultimele standarde, păstrand toate elementele interbelice ale apartamentului. Incălzirea se face prin centrală termică proprie prin pardoseală. Apartamentul este liber și disponibil imediat, reprezentând o oportunitate excelentă atât pentru rezidență sau birou cât si pentru investiție, într-o zonă centrală apreciată pentru farmecul arhitectural, liniște și proximitatea față de centrul orașului. O proprietate rară, cu caracter, destinată celor care apreciază autenticitatea arhitecturii interbelice și spațiile generoase într-o locație de prestigiu. Randarile sunt cu titlu informativ, dar se poate preda cu proiect de mobilare.
Citește mai mult Citește mai puțin
Semidecomandat Nemobilat Parțial mobilat Aer condiționat Alte metode electrice Centrală proprie Beci Renovat Bine întreținut (Bună)

Detalii apartament

ID anunț: 2227683 Actualizat în: 23 Martie 2026
Nr. camere: 5
Suprafață utilă: 117 mp
Suprafață utilă totală: 117 mp
Compartimentare: Semidecomandat
Etaj: Etaj 3 / 6
Nr. băi: 2
An construcție: 1936
Regim înălțime: P+6E

Istoric preț

Facilități

Pereți
Faianță Vopsea lavabilă
Podele
Gresie Parchet
Uși interior
PVC Lemn
Stare interior
Renovat Stare bună
Ferestre cu geam termopan
PVC Lemn
Contorizare
Apometre
Mobilat
Nemobilat Parțial mobilat
Alte spații utile
Boxă la subsol
Facilități imobil
Lift Interfon
Utilități
Gaze Curent Canalizare Apă
Sistem încălzire
Centrală proprie Alte metode electrice
Climatizare
Aer condiționat
Amenajare străzi
Asfaltate Mijloace de transport în comun
Servicii imobil
Administrare

Puncte de interes

Mijloace transport
transport
Statia Armeneasca / Bd. Carol I, linia 5,16
Mijloace transport aprox. 85 m
transport
Bd. Carol I
Mijloace transport aprox. 93 m
transport
Bd. Carol I
Mijloace transport aprox. 137 m
transport
Hristo Botev
Mijloace transport aprox. 270 m
Școală
education
Scoala Generala "Iovan Ducici", Nr 71
Învățământ aprox. 235 m
education
GRADINITA DE COPII NR. 8 "LICURICI"
Învățământ aprox. 248 m
education
Colegiul Economic Hermes
Învățământ aprox. 276 m
education
Grupul Scolar Industrial Unirea
Învățământ aprox. 284 m
Recreere
shopping
Mega Image Paleologu
Supermarket/Mall aprox. 82 m
restaurants
Naser 2
Restaurante aprox. 84 m
parks
Piata Rosetti
Recreere aprox. 293 m
shopping
Pravalia Maestrului
Supermarket/Mall aprox. 736 m

Proprietăți similare

Apartament cu 6 camere semidecomandat în Armeneasca
279.000 €
București, Armeneasca
6 camere
107 mp
Etaj 1
Apartament cu 3 camere decomandat, mobilat în Armeneasca
270.000 €
București, Armeneasca
3 camere
80 mp
Etaj 8
Apartament cu 4 camere semidecomandat, mobilat în Armeneasca
290.000 €
București, Armeneasca
4 camere
101 mp
Parter
Apartament cu 4 camere decomandat în Armeneasca
300.000 €
București, Armeneasca
4 camere
142 mp
Parter
Apartament cu 3 camere decomandat în Barbu Văcărescu
305.000 € + TVA
București, Barbu Văcărescu
3 camere
78 mp
Etaj 1
Apartament cu 2 camere decomandat, mobilat în Barbu Văcărescu
260.000 €
București, Barbu Văcărescu
2 camere
65 mp
Etaj 3
Apartament cu 2 camere decomandat în Barbu Văcărescu
255.000 € + TVA
București, Barbu Văcărescu
2 camere
55 mp
Etaj 2 / 15
Apartament cu 3 camere decomandat, mobilat în Tei
290.000 €
București, Tei
3 camere
78 mp
Etaj 6
Apartament cu 3 camere decomandat în Ferdinand
299.000 € + TVA
București, Ferdinand
3 camere
94 mp
Etaj 3

Abonează-te la newsletter să fii primul care primește cele mai noi recomandări de proprietăți și sfaturi de la experți.