Apartament 3 Camere | Pretabil Birouri | Armeneasca Ultracentral

395.000 € + TVA

Armeneasca, Bucureşti

Nr. camere:
3
Suprafață utilă:
96 mp
Etaj:
Parter / 3
An construcție:
2025
Nr. niveluri:
3

Descriere apartament

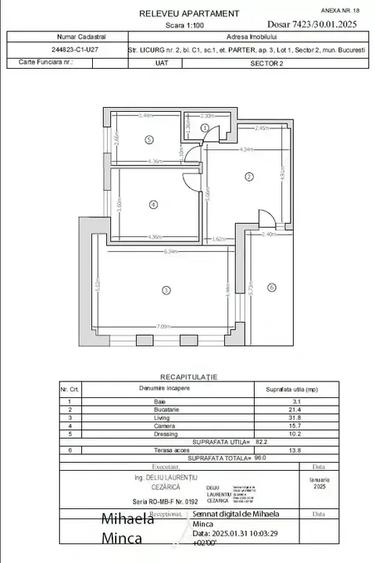
Va prezentam spre vanzare un apartament cu 3 camere, situat aproape de Piata Universitatii, mai exact in cartierul Armenesc. Apartamentul este situat la parter cu acces stradal, separat de intrarea in bloc, pretabil atat pentru locuit cat si pentru amenajarea unui birou sau un bussiness. Acesta are o suprafata utila totala de 96 mp, din care utila interioara de 82,2 mp si este compartimentat in living cu zona de chicineta in suprafata de 21,4 mp, baie si inca 3 camere avand cate 31,8 mp utili, 15,7 mp utili si 10,2 mp utili. În inima uneia dintre cele mai dorite și rafinate zone ale Bucureștiului – zona Armenească –, se află Ansamblul Rezidențial Licurg, un proiect boutique care păstrează cu grijă farmecul, eleganța și arhitectura specifică cartierului. Gândit pentru cei care apreciază liniștea, prestigiul și autenticitatea unei zone istorice, Licurg îmbină perfect estetica clasică a clădirilor de odinioară cu funcționalitatea și confortul contemporan, creând un mediu exclusivist și intim. Ansamblul este recent finalizat, oferind standarde înalte de calitate, finisaje premium și un stil arhitectural ce completează armonios atmosfera aparte a cartierului Armeneasca. Eleganța finisajelor, atenția la detalii și atmosfera caldă transformă acest apartament într-un cămin perfect pentru cei care caută un stil de viață rafinat, în mijlocul Bucureștiului, într-un ansamblu care pune în valoare tradiția și modernitatea deopotrivă. Pretul unui loc de parcare subteran este 32.000 Euro + Tva. Pozele sunt reale! Merita vazut! Pentru vizionari sau mai multe detalii: Alin Cirstea sau VAUNT ID: 109231
Citește mai mult Citește mai puțin
Confort 1 Semidecomandat Aer condiționat Centrală imobil Bine întreținut (Bună)

Detalii apartament

ID anunț: 2731480 Actualizat în: 09 Martie 2026
Nr. camere: 3
Suprafață utilă: 96 mp
Suprafață utilă totală: 96 mp
Compartimentare: Semidecomandat
Confort: 1
Etaj: Parter / 3
Nr. băi: 1
An construcție: 2025
Regim înălțime: P+3E

Istoric preț

Facilități

Pereți
Vopsea lavabilă Faianță
Podele
Gresie Marmură Parchet
Ușă intrare
Parchet Metal
Uși interior
Celulare
Stare interior
Stare bună
Izolații termice
Exterior
Ferestre cu geam termopan
Aluminiu
Contorizare
Apometre Contor căldură
Diverse
Senzor de fum
Facilități imobil
Videointerfon Lift
Utilități
Gaze Curent Apă Canalizare Cablu Supraveghere video
Sistem încălzire
Centrală imobil
Internet
Fibră optică Cablu Wireless
Climatizare
Aer condiționat
Amenajare străzi
Iluminat stradal Mijloace de transport în comun Asfaltate
Servicii imobil
Administrare Menaj Supraveghere video

Puncte de interes

Mijloace transport
transport
Statia Batistei; Linia: 5, 16
Mijloace transport aprox. 205 m
transport
Batistei
Mijloace transport aprox. 209 m
transport
Statia Batistei; Linia:N123
Mijloace transport aprox. 235 m
transport
Bd. Carol I
Mijloace transport aprox. 238 m
Școală
education
Scoala Ajutatoare nr. 1
Învățământ aprox. 78 m
education
Cursuri Paleologu
Învățământ aprox. 180 m
education
GRADINITA DE COPII NR. 8 "LICURICI"
Învățământ aprox. 223 m
education
Scoala Generala "Iovan Ducici", Nr 71
Învățământ aprox. 302 m
Recreere
restaurants
Zepelin
Restaurante aprox. 113 m
parks
Parc
Recreere aprox. 254 m
shopping
Mega Image Paleologu
Supermarket/Mall aprox. 301 m
shopping
OK Non-stop Supermarket (en)
Supermarket/Mall aprox. 501 m

Proprietăți similare

Apartament cu 5 camere semidecomandat, mobilat în Armeneasca
420.000 €
București, Armeneasca
5 camere
181 mp
Etaj 2 / 2
Apartament cu 4 camere în Armeneasca
388.000 €
București, Armeneasca
4 camere
100 mp
Parter / 2
Apartament cu 6 camere decomandat, mobilat în Armeneasca
419.900 €
București, Armeneasca
6 camere
185 mp
Parter / 3
Apartament cu 3 camere decomandat, mobilat în Armeneasca
395.000 € + TVA
București, Armeneasca
3 camere
116,2 mp
Parter / 3
Apartament cu 4 camere semidecomandat, mobilat în Barbu Văcărescu
400.000 €
București, Barbu Văcărescu
4 camere
95 mp
Etaj 1
Apartament cu 4 camere semidecomandat în Petricani
378.000 €
București, Petricani
4 camere
106 mp
Etaj 2 / 21
Apartament cu 4 camere decomandat în Tei
399.999 € + TVA
București, Tei
4 camere
106 mp
Parter / 4
Apartament cu 3 camere decomandat, mobilat în Tei
370.000 €
București, Tei
3 camere
91 mp
Etaj 6
Apartament cu 3 camere decomandat, mobilat în Barbu Văcărescu
425.000 € + TVA
București, Barbu Văcărescu
3 camere
92 mp
Etaj 9

Abonează-te la newsletter să fii primul care primește cele mai noi recomandări de proprietăți și sfaturi de la experți.