Apartament 3 camere Șoseaua Nordului | Parcare

365.000 €

Şoseaua Nordului, Bucureşti

Nr. camere:
3
Suprafață utilă:
90 mp
Etaj:
Parter / 5
An construcție:
2009
Nr. niveluri:
5

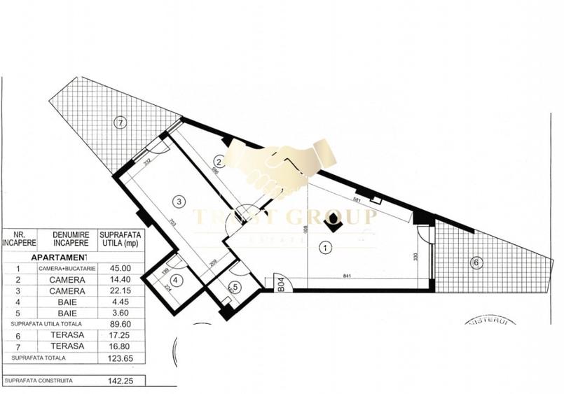
Descriere apartament

Va propunem un apartament de trei camere in zona Șoseaua Nordului , in apropiere de mijloacele de transport in comun, parc si alte facilitati. Apartamentul este situat la parterul unui imobil finalizat in anul 2009 , izolat termic pe exterior , securizat cu video -interfon si paza . Dispune de o suprafata totala utila de 124 mp + 2 terase , este decomandat si compartimentat astfel: living, bucatarie, doua dormitoare, doua bai, hol, spatiii de depozitare si doua terase . Apartamentul se preteaza ca si locuinta de familie sau investitie si se vinde liber. -Clasa energetica : A *Proprietatea a fost verificata si este valabila, confirmarea fiind facuta, atat timp cat este la promovare. *Pentru mai multe detalii si pentru programarea unei vizionari, sunati in orice zi intre orele 09:00 si 21:00 inclusiv in week-end incepand cu ora 10:00 pana la 22:00.
Citește mai mult Citește mai puțin
Confort 1 Decomandat Aer condiționat Calorifere Centrală proprie

Detalii apartament

ID anunț: 3768012 Actualizat în: 10 Martie 2026
Nr. camere: 3
Suprafață utilă: 90 mp
Suprafață utilă totală: 90 mp
Compartimentare: Decomandat
Confort: 1
Etaj: Parter / 5
Nr. băi: 2
An construcție: 2009
Regim înălțime: P+5E

Istoric preț

Facilități

Pereți
Vopsea lavabilă
Podele
Parchet Gresie
Izolații termice
Bloc izolat termic
Contorizare
Apometre Contor căldură Contor gaz
Bucătărie
Mobilată Utilată
Diverse
Senzor de fum Sistem de alarmă Telecomandă poartă acces auto
Alte spații utile
Terasă WC Serviciu
Facilități imobil
Videointerfon Lift
Utilități
Curent Apă Canalizare Gaze
Sistem încălzire
Centrală proprie Calorifere
Climatizare
Aer condiționat
Amenajare străzi
Asfaltate Iluminat stradal Mijloace de transport în comun

Puncte de interes

Mijloace transport
transport
Parcul Herastrau
Mijloace transport aprox. 477 m
transport
Parcul Herastrau
Mijloace transport aprox. 525 m
transport
Statia Muzeul Satului,linia 131,205,331,335,783
Mijloace transport aprox. 748 m
transport
Statie Piata Presei Libere linii: 131, 205, 148, 149, 261, 331, 335, N113, 304, 780, 783
Mijloace transport aprox. 899 m
Școală
education
Gradinita
Învățământ aprox. 529 m
education
Scoala generala nr.12
Învățământ aprox. 763 m
education
Grădiniţa Pentru Hipoacuzici NR. 65
Învățământ aprox. 870 m
education
Grădiniţa Mary Poppins
Învățământ aprox. 1049 m
Recreere
parks
Parc
Recreere aprox. 99 m
restaurants
Isoletta
Restaurante aprox. 270 m
shopping
Carrefour Market
Supermarket/Mall aprox. 640 m
shopping
ART Business Center 5
Supermarket/Mall aprox. 964 m

Proprietăți similare

Apartament cu 3 camere decomandat în Șoseaua Nordului
359.992 €
București, Șoseaua Nordului
3 camere
89,15 mp
Etaj 1 / 5
Apartament cu 3 camere semidecomandat, mobilat în Șoseaua Nordului
348.000 €
București, Șoseaua Nordului
3 camere
89,41 mp
Demisol
Apartament cu 3 camere decomandat în Șoseaua Nordului
360.000 €
București, Șoseaua Nordului
3 camere
89,15 mp
Etaj 1 / 6
Apartament cu 3 camere decomandat, mobilat în Șoseaua Nordului
365.000 €
București, Șoseaua Nordului
3 camere
90 mp
Parter / 6
Apartament cu 3 camere semidecomandat, mobilat în Dămăroaia
330.000 €
București, Dămăroaia
3 camere
163 mp
Parter
Apartament cu 3 camere în Iancu Nicolae
350.000 €
București, Iancu Nicolae
3 camere
83 mp
Etaj 1
Apartament cu 4 camere decomandat, mobilat în Băneasa
390.000 € + TVA
București, Băneasa
4 camere
113 mp
Etaj 2 / 6
Apartament cu 3 camere decomandat, mobilat în Băneasa
380.000 €
București, Băneasa
3 camere
123 mp
Parter / 11
Apartament cu 3 camere semidecomandat în Herăstrău
380.970 €
București, Herăstrău
3 camere
96,5 mp
Etaj 1 / 8

Abonează-te la newsletter să fii primul care primește cele mai noi recomandări de proprietăți și sfaturi de la experți.