Apartament spațios cu 3 camere și 2 balcoane - NOU în Sisești

309.595 € + TVA

Siseşti, Bucureşti

Nr. camere:
3
Suprafață utilă:
108,58 mp
Etaj:
3 / 4
An construcție:
2025
Nr. niveluri:
4

Descriere apartament

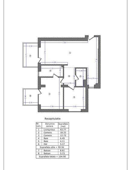
Acest apartament de 3 camere, situat la etajul 3 al proiectului Greenlake din Sectorul 1, București, oferă un design modern și un spațiu generos, ideal pentru confortul locatarilor. Descrierea camerelor: Vestibul (3,10 m²): O intrare primitoare, care oferă un sentiment de căldură și confort. Hol (5,42 m²): Conectează elegant diferitele spații din apartament, facilitând circulația. Living + Dining (29,89 m²): O zonă deschisă și luminoasă, perfectă pentru petrecerea timpului alături de familie și prieteni. Bucătărie (10,44 m²): Spațioasă și bine amenajată, ideală pentru gătit și servirea meselor. Dormitor 1 (18,18 m²): Confortabil și intim, ideal pentru odihnă. Dormitor 2 (12,60 m²): Un spațiu generos, perfect pentru relaxare, cu suficiente soluții de depozitare. Baie 1 (6,38 m²): Amenajată funcțional pentru a asigura confortul locatarilor. Baie 2 (3,96 m²): O a doua baie, amenajată pentru a oferi confort suplimentar. Balcon 1 (8,98 m²): Ideal pentru relaxare și admirarea peisajului. Balcon 2 (6,18 m²): Un spațiu perfect pentru a savura o cafea dimineața. Apartamentul este orientat spre Sud-Est-Vest, ceea ce permite o expunere optimă la lumină naturală pe parcursul zilei. Finisajele de calitate și izolarea termică asigură un ambient plăcut și confortabil. Pentru mai multe informații și detalii, nu ezitați să ne contactați! Suntem aici pentru a vă ajuta să găsiți casa de vis pe care o meritați!
Citește mai mult Citește mai puțin
Decomandat Nemobilat Piscină Curte Centrală imobil

Detalii apartament

ID anunț: 151028 Actualizat în: 21 Aprilie 2026
Nr. camere: 3
Suprafață utilă: 108,58 mp
Suprafață utilă totală: 108,58 mp
Compartimentare: Decomandat
Etaj: Etaj 3 / 4
Nr. băi: 2
An construcție: 2025
Regim înălțime: P+4E

Istoric preț

Facilități

Pereți
Faianță Vopsea lavabilă
Podele
Gresie Parchet
Ușă intrare
Parchet Metal
Uși interior
Celulare
Izolații termice
Exterior
Ferestre cu geam termopan
Aluminiu
Utilități
Curent Apă Canalizare Gaze Supraveghere video
Sistem încălzire
Centrală imobil
Mobilat
Nemobilat
Facilități imobil
Spații agrement Piscină exterioară Curte
Amenajare străzi
Asfaltate Betonate Iluminat stradal Mijloace de transport în comun
Servicii imobil
Pază Supraveghere video

Puncte de interes

Mijloace transport
transport
statie Pod Baneasa 131, 205, 261, 335, N113, 304
Mijloace transport aprox. 324 m
transport
Gara Baneasa
Mijloace transport aprox. 372 m
transport
statie Gara Baneasa 131, 205, 261, 335, N113, 304
Mijloace transport aprox. 485 m
transport
statie Bd. Ficusului 205, 261, 335, N113
Mijloace transport aprox. 693 m
Școală
education
Sala de sport Sc. Gen. 7
Învățământ aprox. 629 m
education
Gradinita nr. 121
Învățământ aprox. 648 m
education
Gradinita
Învățământ aprox. 652 m
education
Scoala generala nr. 7
Învățământ aprox. 662 m
Recreere
restaurants
Clubul Sporturilor Tehnico-aplicative a Mun.Bucuresti
Restaurante aprox. 204 m
parks
Teren sportiv
Recreere aprox. 411 m
shopping
Auto Boca
Supermarket/Mall aprox. 433 m
shopping
Gulliver
Supermarket/Mall aprox. 567 m

Proprietăți similare

Apartament cu 3 camere semidecomandat, mobilat în Sisești
315.000 €
București, Sisești
3 camere
83 mp
Parter
Apartament cu 4 camere decomandat în Sisești
299.900 €
București, Sisești
4 camere
105 mp
Etaj 3
Apartament cu 3 camere decomandat în Sisești
300.000 €
București, Sisești
3 camere
91 mp
Apartament cu 3 camere semidecomandat în Sisești
279.900 €
București, Sisești
3 camere
73 mp
Parter / 3
Apartament cu 4 camere decomandat în Sisești
299.000 €
București, Sisești
4 camere
99 mp
Etaj 5
Apartament cu 3 camere semidecomandat, mobilat în Sisești
285.000 €
București, Sisești
3 camere
73 mp
Parter / 4
Apartament cu 4 camere decomandat în Sisești
300.000 € + TVA
București, Sisești
4 camere
118 mp
2026
Apartament cu 3 camere decomandat, mobilat în Sisești
279.000 €
București, Sisești
3 camere
73 mp
Parter
Apartament cu 3 camere decomandat în Sisești
298.000 €
București, Sisești
3 camere
87,42 mp
Etaj 1

Abonează-te la newsletter să fii primul care primește cele mai noi recomandări de proprietăți și sfaturi de la experți.