Straulesti metrou stradal 3 camere decomandat

157.000 € + TVA

Siseşti, Bucureşti

Nr. camere:
3
Suprafață utilă:
82 mp
Etaj:
2 / 5
An construcție:
2025
Nr. niveluri:
5

Descriere

Straulesti metrou stradal 3 camere decomandat

In vremuri de instabilitate economica, politica si regionala, multi antreprenori se intalnesc cu fenomenul de cernere, neavand o stabilitate reala. Stabilitatea, ca si fundatia unei structuri de rezistenta, se formeaza prin decizii intelepte luate la momentul potrivit, calitatea care percede reputatia si respectul fata de ceea ce faci si prezinti. Stabilitatea noastra ne percede, astfel S.C. SAGEX Construct SRL se afla in Top 10 Firme de Constructii din Romania, iar proiectele noastre Rezidentiale marca TopApartamente cat si proiectele Industriale au format fundatia, bazata pe calitatea serviciilor oferite cat si a executiei de exceptie. Sagex Green Lake Residence este un ansamblu rezidential care continua sirul de proiecte proprii. Locatie accesibila, utila si relaxanta, în apropiere găsești supermarketuri Lidl, Kaufland, Mega Image, precum și școli, grădinițe și alte puncte de interes. Accesul la mijloacele de transport in comun (metrou si RATB) la doar 150 m distanta. Complexul Rezidential beneficiază de un parc privat cu deschidere direct la lac, amenajat cu loc de joaca pentru copii, foisor si spatii verzi recreative
Citește mai mult Citește mai puțin
ID anunț: 78670 Actualizat în: 06 Decembrie 2025
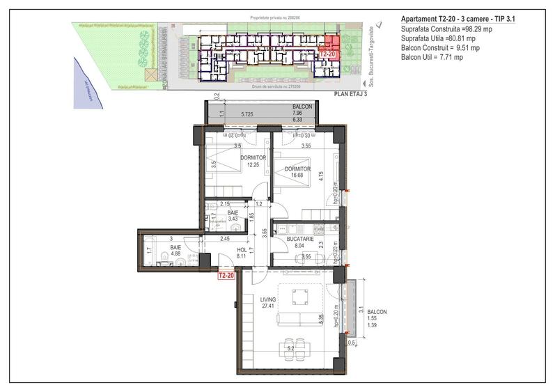
Nr. camere: 3
Suprafață utilă: 82 mp
Suprafață utilă totală: 82 mp
Compartimentare: Decomandat
Etaj: Etaj 2 / 5
Nr. băi: 2
An construcție: 2025
Regim înălțime: P+5E

Istoric preț

Utilități

Utilități
Curent Apă Canalizare Gaze Supraveghere video
Facilități
Boxă Lift Curte Garaj Balcon

Proprietăți similare

Apartament cu 2 camere decomandat, mobilat în Sisești
145.000 €
București, Sisești
2 camere
50 mp
Etaj 2
Apartament cu 3 camere decomandat în Sisești
170.000 €
București, Sisești
3 camere
90 mp
Parter
Apartament cu 2 camere, mobilat în Sisești
153.000 €
București, Sisești
2 camere
60 mp
Etaj 6 / 11
Apartament cu 2 camere decomandat în Sisești
150.000 € + TVA
București, Sisești
2 camere
54 mp
Etaj 6 / 10
Apartament cu 2 camere decomandat în Sisești
150.000 €
București, Sisești
2 camere
54 mp
Etaj 6
Apartament cu 2 camere decomandat în Sisești
144.668 € + TVA
București, Sisești
2 camere
60 mp
Etaj 1 / 5
Apartament cu 2 camere semidecomandat, mobilat în Sisești
146.750 € + TVA
București, Sisești
2 camere
61 mp
Etaj 4 / 11
Apartament cu 2 camere decomandat în Sisești
151.000 € + TVA
București, Sisești
2 camere
60 mp
Etaj 1
Apartament cu 2 camere decomandat în Sisești
141.818 € + TVA
București, Sisești
2 camere
64 mp
Etaj 1

Abonează-te la newsletter să fii primul care primește cele mai noi recomandări de proprietăți și sfaturi de la experți.