Apartament spatios cu 3 camere de vanzare, Herastrau, 100 mp suprafata utila [TU

258.000 €

Herăstrău, Bucureşti

Nr. camere:
3
Suprafață utilă:
90,82 mp
Etaj:
3 / 5
An construcție:
2010
Nr. niveluri:
5

Descriere apartament

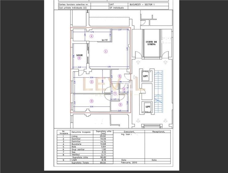
LEVEL Estate vă prezintă spre vânzare un apartament superb cu 3 camere si suprafata utila totala de 99 mp dintre care 8.18 mp terasa, situat intr-un imobil rezidential de lux din Herastrau, in zona premium a capitalei, la doar 2 minute de mers pe jos de parcul Herastrau. Apartamentul este situat la etajul 3 si beneficiază de liniste datorita pozitionarii excelente pe o strada rezidentiala cu trafic redus. Compartimentarea interioară eficientă oferă multiple zone de depozitare, un living spatios cu zona de dining si bucătărie open space in suprafata totala de 41 mp, grup sanitar, doua dormitoare generoase deservite de o baie matrimoniala, precum si o terasa cu suprafata totala de 8.18 mp. Un loc de parcare subteran este disponibil si este inclus in pret. Imobilul se afla in imediata vecinatate a Parcului Herastrau, in zona fiind numeroase restaurante de top cu profil international, scoli, gradinite, centre SPA si Fitness, Mall Promenada, districtul financiar Aurel Vlaicu Pipera, zona avand acces facil catre Aeroportul Otopeni sau centrul orasului. Pentru mai multe detalii nu ezitati sa ne contactati!
Citește mai mult Citește mai puțin
Decomandat Parțial mobilat Aer condiționat Centrală imobil

Detalii apartament

ID anunț: 3305800 Actualizat în: 27 Ianuarie 2026
Nr. camere: 3
Suprafață utilă: 90,82 mp
Suprafață utilă totală: 90,82 mp
Compartimentare: Decomandat
Etaj: Etaj 3 / 5
Nr. băi: 1
An construcție: 2010
Regim înălțime: P+5E

Istoric preț

Facilități

Pereți
Faianță Vopsea lavabilă
Podele
Gresie Parchet
Ușă intrare
Parchet Metal
Izolații termice
Exterior
Contorizare
Contor gaz Apometre
Bucătărie
Mobilată Utilată
Mobilat
Parțial mobilat
Electrocasnice
Mașină de spălat Frigider Aragaz Hotă TV
Alte spații utile
Terasă
Facilități imobil
Lift Interfon
Utilități
Curent Apă Gaze Mașină de spălat rufe Frigider Aragaz / Plită TV
Sistem încălzire
Centrală imobil
Internet
Fibră optică Wireless
Climatizare
Aer condiționat
Amenajare străzi
Asfaltate Iluminat stradal
Servicii imobil
Administrare Pază

Puncte de interes

Mijloace transport
transport
Carutasilor / Pasajul Aviatiei statie 301, 112
Mijloace transport aprox. 538 m
transport
Metrorex. Staţia Aurel Vlaicu (M2)(1987)
Mijloace transport aprox. 547 m
transport
Aurel Vlaicu (M2)
Mijloace transport aprox. 555 m
transport
Maguricea
Mijloace transport aprox. 615 m
Școală
education
Grădiniţa Pentru Hipoacuzici NR. 65
Învățământ aprox. 91 m
education
Scoala generala nr.12
Învățământ aprox. 136 m
education
Gradinita
Învățământ aprox. 335 m
education
Gradinita Miniterra
Învățământ aprox. 370 m
Recreere
restaurants
Boema
Restaurante aprox. 105 m
shopping
Carrefour Market
Supermarket/Mall aprox. 221 m
parks
Parcul Scoala Herastrau
Recreere aprox. 333 m
shopping
Carrefour Market
Supermarket/Mall aprox. 344 m

Proprietăți similare

Apartament cu 2 camere decomandat, mobilat în Herăstrău
248.000 €
București, Herăstrău
2 camere
76 mp
Etaj 3
Apartament cu 2 camere decomandat, mobilat în Herăstrău
260.000 € + TVA
București, Herăstrău
2 camere
58 mp
Parter / 7
Apartament cu 3 camere decomandat în Herăstrău
280.000 € + TVA
București, Herăstrău
3 camere
80 mp
Etaj 4
Apartament cu 2 camere decomandat, mobilat în Herăstrău
275.000 € + TVA
București, Herăstrău
2 camere
65 mp
Etaj 1
Apartament cu 2 camere semidecomandat, mobilat în Herăstrău
270.000 €
București, Herăstrău
2 camere
64,09 mp
Etaj 4
Apartament cu 2 camere semidecomandat, mobilat în Herăstrău
235.000 €
București, Herăstrău
2 camere
59 mp
Etaj 4
Apartament cu 2 camere decomandat în Herăstrău
280.000 € + TVA
București, Herăstrău
2 camere
58,4 mp
Etaj 2
Apartament cu 2 camere în Herăstrău
281.000 € + TVA
București, Herăstrău
2 camere
58,4 mp
Etaj 2
Apartament cu 2 camere semidecomandat în Herăstrău
250.000 € + TVA
București, Herăstrău
2 camere
53 mp
Etaj 4 / 12

Abonează-te la newsletter să fii primul care primește cele mai noi recomandări de proprietăți și sfaturi de la experți.