4 Camere | Floreasca | Terasă Spectaculoasă 223 mp

830.000 € + TVA

Floreasca, Bucureşti

Nr. camere:
4
Suprafață utilă:
101,55 mp
Etaj:
3 / 4
An construcție:
2026
Nr. niveluri:
4

Descriere apartament

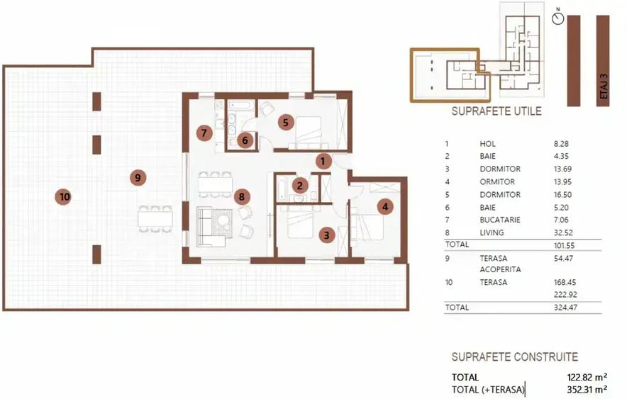
Dacă sunteți în căutarea unei locuințe care să redefinească conceptul de spațiu și libertate, acest apartament cu 4 camere din cadrul Verdi Park Boutique Apartments este o oportunitate rară. Situat într-una dintre cele mai vibrante zone ale Bucureștiului, Barbu Văcărescu – Floreasca, acest imobil impresionează prin echilibrul perfect între interiorul elegant și spațiile exterioare absolut spectaculoase. Elementul care scoate cu adevărat în evidență această proprietate este suprafața teraselor. Cu o terasă acoperită de aproape 55 mp și o terasă deschisă colosală de peste 168 mp, aveți la dispoziție un spațiu exterior total de peste 220 mp. Este locul unde puteți organiza evenimente memorabile, unde copiii se pot juca în siguranță sau unde vă puteți crea propria grădină suspendată, totul sub cerul liber, chiar deasupra orașului. Interiorul este la fel de remarcabil, fiind proiectat pentru o familie care prețuiește calitatea și detaliile fine. Suprafețele vitrate mari inundă fiecare cameră cu lumină naturală, punând în valoare parchetul triplu stratificat și finisajele din gama premium. Confortul termic este asigurat prin sisteme moderne de încălzire în pardoseală și climatizare discretă, astfel încât să vă bucurați de o atmosferă perfectă în orice anotimp. Această locuință nu este doar un apartament, ci un stil de viață pentru cei care nu vor să aleagă între confortul unei case și facilitățile unui apartament în nordul Capitalei. Acest apartament spațios de 4 camere se află la etajul 3 al proiectului rezidențial boutique de pe strada Gheorghe Țițeica. Proprietatea oferă o suprafață utilă de 101.55 mp, la care se adaugă o terasă acoperită de 54.77 mp și o terasă descoperită impresionantă de 168.45 mp. Dotările includ fațadă ventilată, tâmplărie de aluminiu, încălzire în pardoseală și climatizare tip duct. Finisajele sunt de lux, utilizând mărci precum Marazzi, Porcelanosa și Roca, oferind eficiență energetică ridicată și un design modern, perfect integrat în zona Floreasca. La prețul afișat se adaugă TVA de 21%. Sunt disponibile locuri de parcare de la 27000 euro + TVA. VAUNT ID: 110195
Citește mai mult Citește mai puțin
Confort 1 Decomandat Nemobilat Ventiloconvectoare Centrală imobil

Detalii apartament

ID anunț: 3284915 Actualizat în: 24 Februarie 2026
Nr. camere: 4
Suprafață utilă: 101,55 mp
Suprafață utilă totală: 101,55 mp
Compartimentare: Decomandat
Confort: 1
Etaj: Etaj 3 / 4
Nr. băi: 2
An construcție: 2026
Regim înălțime: P+4E

Istoric preț

Facilități

Pereți
Vopsea lavabilă
Ușă intrare
Parchet Metal
Uși interior
Celulare
Izolații termice
Exterior
Ferestre cu geam termopan
Aluminiu
Sistem încălzire
Centrală imobil
Internet
Fibră optică
Climatizare
Ventiloconvectoare
Mobilat
Nemobilat
Alte spații utile
Terasă Debara
Amenajare străzi
Iluminat stradal Mijloace de transport în comun Asfaltate

Puncte de interes

Mijloace transport
transport
Giuseppe Verdi
Mijloace transport aprox. 237 m
transport
Statia Ancuta Baneasa, linia 135, N119
Mijloace transport aprox. 257 m
transport
Ceaikovski
Mijloace transport aprox. 536 m
transport
Muzeul Aviatiei
Mijloace transport aprox. 576 m
Școală
education
LICEUL TEORETIC "C.A. ROSETTI"
Învățământ aprox. 282 m
education
Liceul C.A. Rosetti
Învățământ aprox. 282 m
education
Gradinita SOS Satul Copiilor
Învățământ aprox. 609 m
education
ŞCOALA CU CLASELE I-VIII NR. 10
Învățământ aprox. 655 m
Recreere
parks
Parcul Verdi
Recreere aprox. 42 m
restaurants
Pescariu Sports & Spa - .pescariusports.ro (en)
Restaurante aprox. 347 m
shopping
BILLA - B. Vacarescu
Supermarket/Mall aprox. 679 m
shopping
Kaufland Barbu Vacarescu
Supermarket/Mall aprox. 746 m

Proprietăți similare

Apartament cu 4 camere semidecomandat în Floreasca
850.000 €
București, Floreasca
4 camere
150 mp
Etaj 2
Apartament cu 4 camere semidecomandat, mobilat în Floreasca
799.000 € + TVA
București, Floreasca
4 camere
127 mp
0
Apartament cu 3 camere semidecomandat în Floreasca
750.300 €
București, Floreasca
3 camere
127 mp
Etaj 7
Apartament cu 4 camere decomandat, mobilat în Floreasca
750.000 €
București, Floreasca
4 camere
144 mp
Etaj 4 / 4
Apartament cu 4 camere decomandat în Floreasca
877.000 € + TVA
București, Floreasca
4 camere
153 mp
Etaj 3
Apartament cu 4 camere decomandat în Floreasca
750.000 € + TVA
București, Floreasca
4 camere
203 mp
Etaj 3
Apartament cu 3 camere semidecomandat în Floreasca
799.000 € + TVA
București, Floreasca
3 camere
78,2 mp
Etaj 11
Apartament cu 4 camere decomandat, mobilat în Floreasca
750.000 € + TVA
București, Floreasca
4 camere
142 mp
Etaj 6
Apartament cu 4 camere în Floreasca
780.000 € + TVA
București, Floreasca
4 camere
198 mp
Etaj 5

Abonează-te la newsletter să fii primul care primește cele mai noi recomandări de proprietăți și sfaturi de la experți.