3 camere PREMIUM| 117 MP + 10 MP terasa

600.000 € + TVA

Floreasca, Bucureşti

Nr. camere:
3
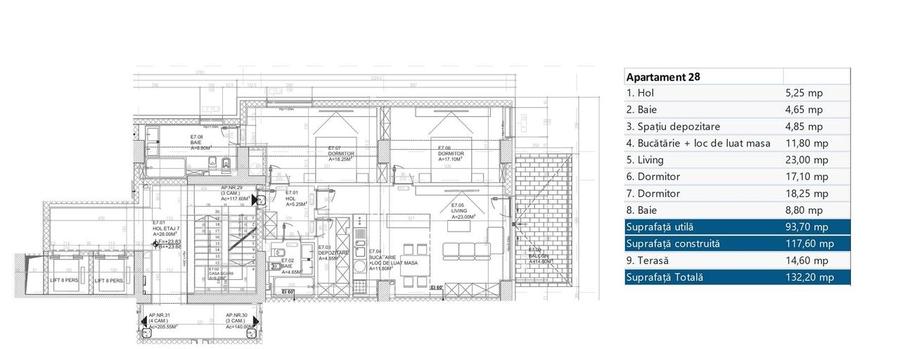
Suprafață utilă:
117,35 mp
Etaj:
1 / 8
An construcție:
2021
Nr. niveluri:
8

Descriere apartament

Impact Real Estate Advisors vă propune spre vânzare un apartament premium cu 3 camere, decomandat, 127 mp, într-un proiect rezidențial exclusivist din zona Floreasca – una dintre cele mai căutate și apreciate zone din București. ***La pretul afisat se adauga TVA. ***Locul de parcare poate fi achizionat separat la pretul de 28.000 +TVA, la subteran -1 sau in sitem Klaus, la -2, 30.000 +TVA -2locuri. Arhitectura modernă și designul elegant se îmbină perfect cu spațiile interioare ample și luminoase, datorită ferestrelor vitrate și finisajelor de cea mai bună calitate. Unul dintre punctele forte ale proprietății îl reprezintă vederea panoramică spectaculoasă către Parcul Verdi, ce oferă liniște și o oază de verdeață chiar în mijlocul orașului. Compartimentare: - Zona de intrare: hol generos cu spațiu de depozitare, zonă de spălătorie și grup sanitar. - Zona de zi: living luminos cu loc de luat masa și bucătărie open-space. - Zona de noapte: dormitor matrimonial cu baie proprie (cada) și dressing, dormitor secundar și baie cu duș. Dotări și finisaje premium - Încălzire prin pardoseală – centrală proprie de bloc - Sistem de climatizare LG VR-F - Plăci ceramice Marazzi (dimensiuni floor-to-ceiling 320x160 mm) - Parchet triplu stratificat Bauwerk (Elveția) - Obiecte sanitare Villeroy & Boch - Uși de interior și acces Dierre - Tâmplărie aluminiu Alumil Imobilul dispune de paza pe timp de zi si supraveghere video 24/7. Vecinătăți: Apartamentul este situat într-o zonă premium, cu acces rapid către: - Parcul Verdi – la câțiva pași - Mall Promenada – 2 minute - Școli și grădinițe de prestigiu: Școala „Herăstrău”, Liceul „Jean Monnet”, Grădinița Bambi Step by Step, British School - Centre medicale și clinici private - Restaurante, cafenele și zone de lifestyle din Floreasca și Dorobanți - Acces facil către mijloace de transport și principalele artere din nordul Capitalei Certificatul energetic va fi disponibil la momentul vânzării. Pentru mai multe detalii sau pentru a programa o vizionare, vă invităm să ne contactați.
Citește mai mult Citește mai puțin
Semidecomandat Nemobilat Curte comună Aer condiționat Centrală imobil

Detalii apartament

ID anunț: 1961959 Actualizat în: 25 Februarie 2026
Nr. camere: 3
Suprafață utilă: 117,35 mp
Suprafață utilă totală: 117,35 mp
Compartimentare: Semidecomandat
Etaj: Etaj 1 / 8
Nr. băi: 3
An construcție: 2021
Regim înălțime: P+8E

Istoric preț

Facilități

Pereți
Vopsea lavabilă
Podele
Gresie Parchet
Ușă intrare
Parchet Metal
Izolații termice
Exterior
Ferestre cu geam termopan
Aluminiu
Contorizare
Apometre Contor căldură Contor gaz
Mobilat
Nemobilat
Electrocasnice
TV
Diverse
Telecomandă poartă garaj
Alte spații utile
WC Serviciu Terasă
Facilități imobil
Acoperiș Curte comună Interfon Lift Videointerfon
Utilități
Curent Apă Canalizare Gaze Cablu TV Supraveghere video
Internet
Cablu
Climatizare
Aer condiționat
Amenajare străzi
Iluminat stradal Mijloace de transport în comun Asfaltate
Servicii imobil
Supraveghere video

Puncte de interes

Mijloace transport
transport
Statia Soseaua Fabrica de Glucoza, linia 135, N119
Mijloace transport aprox. 190 m
transport
Muzeul Aviatiei
Mijloace transport aprox. 299 m
transport
Statia Soseaua Fabrica de Glucoza, linia 135, N119
Mijloace transport aprox. 357 m
transport
Statia Ancuta Baneasa, linia 135, N119
Mijloace transport aprox. 445 m
Școală
education
Gradinita SOS Satul Copiilor
Învățământ aprox. 150 m
education
Grupul Scolar Industrial Constantin Brancusi (en)
Învățământ aprox. 616 m
education
LICEUL TEORETIC "C.A. ROSETTI"
Învățământ aprox. 682 m
education
Liceul C.A. Rosetti
Învățământ aprox. 682 m
Recreere
parks
Teren sportiv
Recreere aprox. 174 m
restaurants
Spazi Caffe Promenada
Restaurante aprox. 429 m
shopping
Promenada
Supermarket/Mall aprox. 505 m
shopping
Carrefour Market
Supermarket/Mall aprox. 628 m

Proprietăți similare

Apartament cu 4 camere semidecomandat în Floreasca
580.000 € + TVA
București, Floreasca
4 camere
116,07 mp
Etaj 2
Apartament cu 3 camere decomandat, mobilat în Floreasca
590.000 €
București, Floreasca
3 camere
104 mp
Etaj 1
Apartament cu 3 camere decomandat în Floreasca
629.999 €
București, Floreasca
3 camere
104 mp
Etaj 2 / 6
Apartament cu 3 camere decomandat, mobilat în Floreasca
580.000 € + TVA
București, Floreasca
3 camere
135 mp
Etaj 2
Apartament cu 4 camere decomandat în Floreasca
567.244 € + TVA
București, Floreasca
4 camere
164 mp
Etaj 1
Apartament cu 3 camere decomandat în Floreasca
654.000 € + TVA
București, Floreasca
3 camere
90 mp
Parter / 5
Apartament cu 4 camere decomandat, mobilat în Floreasca
649.000 € + TVA
București, Floreasca
4 camere
199 mp
Parter
Apartament cu 4 camere decomandat, mobilat în Floreasca
644.500 €
București, Floreasca
4 camere
160 mp
Etaj 3 / 4
Apartament cu 3 camere decomandat în Floreasca
596.000 € + TVA
București, Floreasca
3 camere
117 mp
Etaj 1

Abonează-te la newsletter să fii primul care primește cele mai noi recomandări de proprietăți și sfaturi de la experți.