De vanzare - Apartament cochet Strada Lotru Domenii

380.000 €

Domenii, Bucureşti

Nr. camere:
3
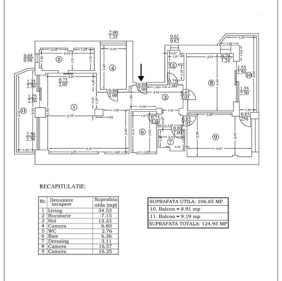
Suprafață utilă:
125 mp
Etaj:
2 / 2
An construcție:
2000
Nr. niveluri:
2

Descriere apartament

Comision 0% Cumparator!. Am placerea a va prezenta spre tranzactionare un apartament cu Suprafata Utila Totala de 125mp situat la etajul 2 al unui imobil cu regim de inaltime D+P+2+M. Imobilul este construit in anul 2000, cu structura pe cadre si plansee din beton armat si zidarie exterioara si interioara din caramida G.V.P., cu fundatie continua din beton armat. A fost achizitionat in 2017 de actualii proprietari si re-expertizat tehnic inclusiv pe structura. Imobilul a fost renovat complet si extins cu mansarda in anul 2018, apartamentat in anul 2021 cu numere cadastrale separate si intabulate individual. Toate lucrarile au fost efectuate cu autorizatii si cu furnizori autorizati (constructor, instalatii electrice, instalatii sanitare, acoperis, izolatii, instalatii gaz, interfon, etc). Se va oferi garantie completa pentru vicii ascunse 12 luni. Renovarea a fost atat la exterior cat si la interior. Toate instalatiile electrice, termice si apa / canalizare au fost schimbate complet, inclusiv canalizare, cămine, alimentare apa. La exterior, imobilul este izolat complet cu vata bazaltica, iar acoperisul este din tigla, izolat de asemenea cu vata bazaltica. Geamurile si usile de la terase sunt tripan, iar usile de acces in apartamente sunt metalice. Scara comuna de acces este din marmura. La interior, toate compartimentarile sunt din caramida. Usile de interior sunt Pinum. Toate obiectele sanitare / baterii / dus / cada sunt Ideal Standard. Incalzirea se face cu centrala termica proprie Viesmann Vitodens 50, cu distributie automata Purmo catre calorifere si termostat programabil individual pentru fiecare camera, cu automatizare. Utilitatile (gaz, electricitate) sunt separate pe fiecare apartament in parte, cu contracte de utilitati si contoare separate si cu citire la strada a contoarelor individuale. Toate reviziile (instalatie gaz, centrale termice) sunt efectuate la zi. Parcarea se face la comun in rampa (2 locuri), in fata imobilului (2 locuri) sau pe strada. Strada nu este aglomerata, fiind o strada cu o singura cale de acces, foarte linistita si ferita complet de trafic, cu o comunitate de vecini excelenta. Pentru detalii suplimentare si stabilire vizionari nu ezitati a ma contacta!.
Citește mai mult Citește mai puțin
Confort 1 Semidecomandat Lux Aer condiționat Calorifere Centrală proprie Renovat

Detalii apartament

Actualizat în: 19 Mai 2026 ID anunț: 1278396
Nr. camere: 3
Suprafață utilă: 125 mp
Suprafață utilă totală: 125 mp
Compartimentare: Semidecomandat
Confort: 1
Etaj: Etaj 2 / 2
Nr. băi: 2
An construcție: 2000
Regim înălțime: P+2E

Istoric preț

Facilități

Pereți
Vopsea lavabilă
Podele
Parchet
Ușă intrare
Parchet Metal Lemn PVC
Uși interior
Lemn PVC
Stare interior
Renovat
Izolații termice
Exterior
Ferestre cu geam termopan
Lemn PVC
Contorizare
Apometre Contor gaz
Bucătărie
Mobilată Utilată
Mobilat
Lux
Alte spații utile
WC Serviciu Terasă
Utilități
Gaze Curent Canalizare Apă Cablu
Sistem încălzire
Calorifere Centrală proprie
Internet
Fibră optică Wireless Cablu
Climatizare
Aer condiționat
Amenajare străzi
Asfaltate Betonate Iluminat stradal Mijloace de transport în comun

Puncte de interes

Mijloace transport
transport
Statie R.A.R. N117, 105, 65, 97, 86
Mijloace transport aprox. 357 m
transport
Clabucet
Mijloace transport aprox. 407 m
transport
Sandu Aldea
Mijloace transport aprox. 431 m
transport
Metrorex Statia 1 Mai M4
Mijloace transport aprox. 435 m
Școală
education
Clubul Sportiv Scolar nr.1 Pajura
Învățământ aprox. 187 m
education
Colegiul Tehnic Mircea cel Batran
Învățământ aprox. 270 m
education
Scoala Nr. 175 Sf. Nicolae
Învățământ aprox. 302 m
education
Liceul Aurel Vlaicu
Învățământ aprox. 326 m
Recreere
parks
Parc
Recreere aprox. 136 m
shopping
Magazin Alimentar
Supermarket/Mall aprox. 241 m
restaurants
Forneti
Restaurante aprox. 269 m
shopping
Mega Image
Supermarket/Mall aprox. 513 m

Proprietăți similare

Apartament cu 3 camere decomandat, mobilat în Domenii
365.000 €
București, Domenii
3 camere
75 mp
Etaj 7
Apartament cu 2 camere semidecomandat în Domenii
393.842 €
București, Domenii
2 camere
50 mp
Etaj 3
Apartament cu 3 camere decomandat, mobilat în Domenii
395.000 €
București, Domenii
3 camere
73,32 mp
Etaj 10 / 12
Apartament cu 3 camere decomandat în Domenii
359.000 €
București, Domenii
3 camere
78,06 mp
Etaj 7
Apartament cu 3 camere decomandat în Domenii
395.000 €
București, Domenii
3 camere
81 mp
Etaj 10 / 11
Apartament cu 3 camere decomandat în Domenii
395.000 €
București, Domenii
3 camere
90 mp
Etaj 10
Apartament cu 3 camere decomandat, mobilat în Domenii
395.000 €
București, Domenii
3 camere
81 mp
Etaj 10
Apartament cu 3 camere semidecomandat în Domenii
365.000 €
București, Domenii
3 camere
75,55 mp
Etaj 7
Apartament cu 3 camere semidecomandat, mobilat în Domenii
369.800 €
București, Domenii
3 camere
110 mp
Parter

Abonează-te la newsletter să fii primul care primește cele mai noi recomandări de proprietăți și sfaturi de la experți.