1

Raritate absoluta in zona Domenii !

499.500 €

Domenii, Bucureşti

Nr. camere:
4
Suprafață utilă:
147 mp
Etaj:
1 / 2
An construcție:
2025
Nr. niveluri:
2

Descriere apartament

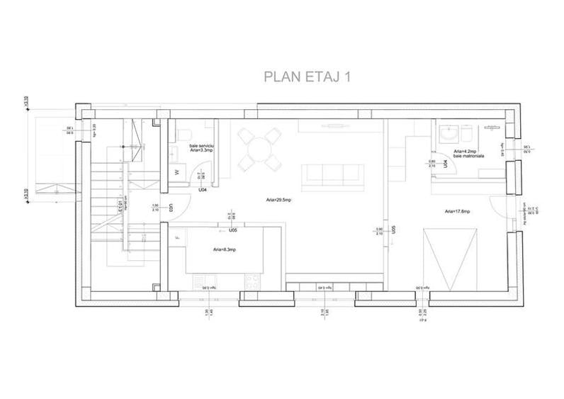
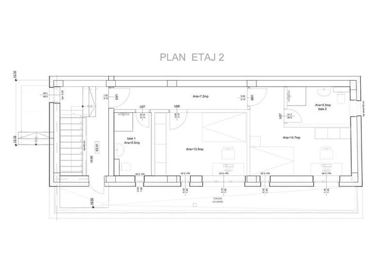
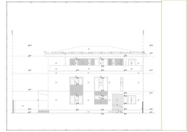
Pe o strada rezidentiala linistita din zona Pietei Domenii, intr-un cadru elegant si verde, se afla o vila complet noua, finalizata in 2025 – o raritate autentica intr-o zona consacrata, unde majoritatea imobilelor sunt reconvertite sau supraetajate. Proprietatea cuprinde doar doua apartamente: parterul, pastrat de proprietar (care locuieste 11 luni pe an in strainatate), si duplexul de la etajele 1 si 2, disponibil acum spre vanzare. Practic, viitorul proprietar va beneficia de intimitatea si linistea unei vile aproape individuale, intr-o locatie cu prestigiu. Apartamentul se desfasoara pe doua niveluri si ofera o zona de zi bine proportionata, cu living si dining ce comunica natural cu bucataria separata, completata de 3 dormitoare, fiecare cu baie proprie, plus un grup sanitar suplimentar. In exterior, se afla o curte privata de cca. 50 mp, ideala pentru relaxare, gradinarit sau o zona lounge, precum si doua locuri de parcare in curte. Constructia este integral noua, realizata la standarde moderne, cu incalzire in pardoseala si finisaje contemporane, aflate acum in faza finala de montaj (parchet, usi interioare si bai). Imobilul se afla in ultimele etape de finisare, astfel ca in locul fotografiilor finale sunt disponibile planurile duplexului, fatada cladirii si o randare orientativa, menite sa ofere o imagine corecta asupra arhitecturii si compartimentarii. O proprietate rara si rafinata, potrivita celor care cauta liniste, discretie si calitate, intr-un imobil nou, cu doar doi proprietari si o atmosfera de vila individuala. ID intern: NEO011642.
Citește mai mult Citește mai puțin
Confort 1 Decomandat Centrală proprie

Detalii apartament

ID anunț: 2461397 Actualizat în: 29 Ianuarie 2026
Nr. camere: 4
Suprafață utilă: 147 mp
Suprafață utilă totală: 147 mp
Compartimentare: Decomandat
Confort: 1
Etaj: Etaj 1 / 2
Nr. băi: 3
An construcție: 2025
Regim înălțime: P+2E

Istoric preț

Facilități

Sistem încălzire
Centrală proprie
Izolații termice
Exterior

Puncte de interes

Mijloace transport
transport
Bd. Mihalache
Mijloace transport aprox. 343 m
transport
Bd. Maresal Averescu
Mijloace transport aprox. 345 m
transport
Maresal Averescu
Mijloace transport aprox. 349 m
transport
Statie Tramvai 20, 24, 41, 42, 45 - Bd. Mihalache
Mijloace transport aprox. 371 m
Școală
education
Gradinita Cami
Învățământ aprox. 75 m
education
Gradinita de copii nr.222
Învățământ aprox. 211 m
education
Gradinita nr. 222
Învățământ aprox. 221 m
education
Gradinita 97
Învățământ aprox. 230 m
Recreere
parks
Parc
Recreere aprox. 321 m
restaurants
Jerry's Pizza - 1 Mai
Restaurante aprox. 346 m
shopping
Mega Image Domenii Non-Stop
Supermarket/Mall aprox. 441 m
shopping
CARREFOUR Express Mihalache
Supermarket/Mall aprox. 460 m

Proprietăți similare

Apartament cu 2 camere decomandat, mobilat în Domenii
495.000 €
București, Domenii
2 camere
102 mp
Etaj 9 / 12
Apartament cu 4 camere semidecomandat în Domenii
460.000 €
București, Domenii
4 camere
150 mp
Etaj 1 / 3
Apartament cu 4 camere în Domenii
472.000 € + TVA
București, Domenii
4 camere
135 mp
Etaj 11 / 12
Apartament cu 3 camere decomandat, mobilat în Domenii
480.000 €
București, Domenii
3 camere
79,47 mp
Etaj 2 / 3
Apartament cu 8 camere decomandat în Arcul de Triumf
485.000 €
București, Arcul de Triumf
8 camere
337 mp
Etaj 3 / 4
Apartament cu 3 camere în Arcul de Triumf
450.000 €
București, Arcul de Triumf
3 camere
100 mp
Etaj 6 / 7
Apartament cu 2 camere semidecomandat, mobilat în Herăstrău
470.000 €
București, Herăstrău
2 camere
88 mp
Etaj 5
Apartament cu 4 camere decomandat, mobilat în Herăstrău
535.000 €
București, Herăstrău
4 camere
119 mp
Parter
Apartament cu 3 camere decomandat, mobilat în Pipera
460.000 €
București, Pipera
3 camere
101,6 mp
Etaj 7 / 8

Abonează-te la newsletter să fii primul care primește cele mai noi recomandări de proprietăți și sfaturi de la experți.