2 camere I bloc 2013 I etaj 3/3 I Bucurestii Noi I Damaroaia

130.000 €

Dămăroaia, Bucureşti

Nr. camere:
2
Suprafață utilă:
46 mp
Etaj:
3 / 3
An construcție:
2013
Nr. niveluri:
3

Descriere apartament

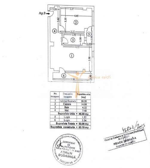
Avem plăcerea de a vă prezenta spre vanzare un apartament de 2 camere, situat in zona Bucurestii Noi, in apropiere de Damaroaia, pe str Piatra Morii, aflat in apropierea mijloacelor de transport in comun precum: -stația de metrou Jiului, care se află la o distanță de 10 minute de mers pe jos -liniile STB 53, 331 aflate la 1 minut de mers pe jos. Apartamentul se află la etajul 3, al unui bloc de 3 etaje construit in anul 2013. Oferă o suprafață utilă de 46mp, la care se adauga 2 balcoane insumand 7mp, rezultând o suprafață totală de 53mp. Acesta prezintă finisaje de calitate ridicată. Încălzirea se realizează prin centrala termica proprie cu calorifere, confortul termic fiind asigurat. Apartamentul se vinde precum in poze, mobilat/utilat. Nu ratați oportunitatea de a achiziționa acest apartament pentru cei care doresc să locuiasca într-o zonă liniștită și bine conectată la facilitățile orașului. Pentru o vizionare sau mai multe informații, vă rugăm să ne contactați. Contact: Destine Imobiliare este aici pentru a vă asigura că fiecare pas al tranzacției imobiliare se desfășoară fără probleme și cu succes. Despre noi: Destine Imobiliare este o agenție imobiliară inovatoare, dedicată să ofere soluții optime și de încredere pentru clienții săi.
Citește mai mult Citește mai puțin
Confort 2 Semidecomandat Mobilat Aer condiționat Centrală proprie Bine întreținut (Bună)

Detalii apartament

ID anunț: 4065803 Actualizat în: 03 Aprilie 2026
Nr. camere: 2
Suprafață utilă: 46 mp
Suprafață utilă totală: 46 mp
Compartimentare: Semidecomandat
Confort: 2
Etaj: Etaj 3 / 3
Nr. băi: 1
An construcție: 2013
Regim înălțime: P+3E

Istoric preț

Facilități

Pereți
Vopsea lavabilă Var Faianță
Podele
Parchet Gresie
Ușă intrare
Parchet PVC Metal Lemn
Uși interior
PVC Lemn
Stare interior
Stare bună
Izolații termice
Exterior Interior
Ferestre cu geam termopan
PVC Lemn
Contorizare
Apometre Contor gaz
Bucătărie
Mobilată Utilată
Mobilat
Mobilat
Electrocasnice
Mașină de spălat Frigider Aragaz Mașină spălat vase TV Cuptor microunde Hotă
Facilități imobil
Interfon
Utilități
Curent Apă Canalizare Gaze Mașină de spălat rufe Frigider Aragaz / Plită Mașină de spălat vase TV Cuptor cu microunde Supraveghere video
Sistem încălzire
Centrală proprie
Climatizare
Aer condiționat
Amenajare străzi
Asfaltate Iluminat stradal Mijloace de transport în comun
Servicii imobil
Supraveghere video

Puncte de interes

Mijloace transport
transport
Statie Cartier Damaroaia Tv24
Mijloace transport aprox. 537 m
transport
Statie Capat Cartier Damaroaia linii : 331.
Mijloace transport aprox. 548 m
transport
Cartier Damaroaia
Mijloace transport aprox. 556 m
transport
Cartier Damaroaia
Mijloace transport aprox. 557 m
Școală
education
Scoala Gimnaziala Nicolae Grigorescu Nr. 177
Învățământ aprox. 505 m
education
Scoala Nr. 177 Nicolae Grigorescu
Învățământ aprox. 523 m
education
Scoala Speciala Nr. 8
Învățământ aprox. 613 m
education
Scoala Speciala Sfantu Gavril Nr. 8
Învățământ aprox. 630 m
Recreere
parks
Parc
Recreere aprox. 682 m
restaurants
Rotiserie
Restaurante aprox. 934 m
shopping
Crystal System S.R.L.
Supermarket/Mall aprox. 1072 m
shopping
Profi
Supermarket/Mall aprox. 1079 m

Proprietăți similare

Apartament cu 2 camere semidecomandat, mobilat în Dămăroaia
119.900 €
București, Dămăroaia
2 camere
42 mp
Etaj 1 / 3
Apartament cu 2 camere în Străulești
155.000 € + TVA
București, Străulești
2 camere
52,46 mp
Etaj 6
Apartament cu 2 camere decomandat, mobilat în Dămăroaia
119.999 €
București, Dămăroaia
2 camere
56,69 mp
Etaj 4 / 4
Apartament cu 2 camere în Dămăroaia
119.900 €
București, Dămăroaia
2 camere
44 mp
Etaj 5 / 11
Apartament cu 2 camere semidecomandat în Dămăroaia
130.000 €
București, Dămăroaia
2 camere
46 mp
Etaj 3 / 3
Apartament cu 2 camere semidecomandat, mobilat în Floreasca
120.000 €
București, Floreasca
2 camere
33,75 mp
Parter / 4
Apartament cu 2 camere semidecomandat în Bucureștii Noi
134.900 €
București, Bucureștii Noi
2 camere
47 mp
Etaj 1 / 1
Apartament cu 2 camere, mobilat în Băneasa
125.000 €
București, Băneasa
2 camere
73 mp
Etaj 1
Apartament cu 2 camere semidecomandat în Pipera
139.900 € + TVA
București, Pipera
2 camere
62,9 mp
Etaj 5

Abonează-te la newsletter să fii primul care primește cele mai noi recomandări de proprietăți și sfaturi de la experți.