REA1020230 Duplex Padurea Baneasa l terasa 40mp

720.000 €

Băneasa, Bucureşti

Nr. camere:
5
Suprafață utilă:
155 mp
Etaj:
2 / 3
An construcție:
2021
Nr. niveluri:
3

Descriere apartament

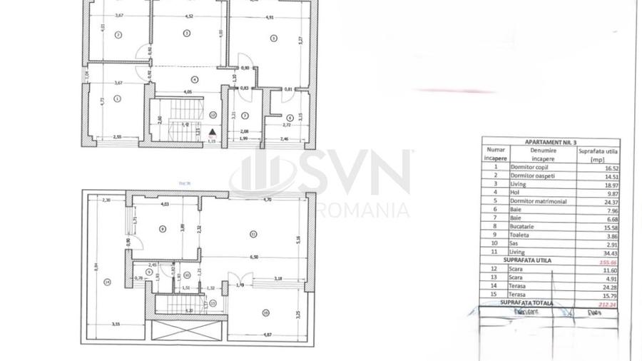
REA1020230 SVN ROMANIA are placerea sa va prezinte un apartament duplex exclusivist de 212 mp, situat intr-un bloc boutique la etajele 2 si 3, langa Padurea Baneasa. Aceasta proprietate fabuloasa se remarca prin eleganta, functionalitate si un design armonios, indeplinind toate standardele noastre de lux si confort. Cu o compartimentare inteligenta, apartamentul ofera 5 camere, incluzand un master bedroom spatios de 24 mp cu baie proprie, inca 2 dormitoare, o camera de relaxare, un living generos si o bucatarie inchisa si spatioasa, perfecta pentru o familie numeroasa. De asemenea, duplexul dispune de 3 bai. Imobilul se desfasoara pe doua nivele si include anexe special amenajate pentru uscatorie si depozitare. Terasele sunt complet utilate si mobilate, iar una dintre ele este dotata cu o sauna privata, oferind un spatiu ideal pentru relaxare. Zona este extrem de linistita si insorita, avand in apropiere un loc de joaca pentru copii, amenajat de comunitatea locala si Padurea Baneasa. Proprietatea beneficiaza de 2 locuri de parcare incluse in pret. Atat suprafata impresionanta cat si locatia avantajoasa recomanda aceasta proprietate drept o buna investitie. Pentru mai multe detalii si vizionari, nu ezitati sa ne contactati.
Citește mai mult Citește mai puțin
Confort 1 Decomandat Mobilat Complet Aer condiționat Centrală proprie

Detalii apartament

ID anunț: 277750 Actualizat în: 30 Ianuarie 2026
Nr. camere: 5
Suprafață utilă: 155 mp
Suprafață utilă totală: 155 mp
Compartimentare: Decomandat
Confort: 1
Etaj: Etaj 2 / 3
Nr. băi: 1
An construcție: 2021
Regim înălțime: P+3E

Istoric preț

Facilități

Pereți
Faianță
Podele
Gresie Parchet
Ferestre cu geam termopan
PVC
Utilități
Supraveghere video
Sistem încălzire
Centrală proprie
Acces internet
Fibră optică Wireless
Climatizare
Aer condiționat
Bucătărie
Mobilată
Mobilat
Complet
Alte spații utile
WC Serviciu
Dotări imobil
Interfon Lift
Servicii imobil
Supraveghere video Pază

Puncte de interes

Mijloace transport
transport
Statia Piscul Radului, linia 205
Mijloace transport aprox. 321 m
transport
Statia Drumul Regimentului linii : 205
Mijloace transport aprox. 591 m
transport
statia Piscul Scoartei, linia 205
Mijloace transport aprox. 763 m
transport
Statia Darmanesti, linia 205
Mijloace transport aprox. 854 m
Școală
education
Scoala Generala Nr. 8
Învățământ aprox. 1223 m
education
International School for Primary Education, Bucharest (en)
Învățământ aprox. 1350 m
education
International School for Primary Education
Învățământ aprox. 1429 m
education
Universitatea Biotera
Învățământ aprox. 1496 m
Recreere
parks
Parc
Recreere aprox. 953 m
restaurants
Vatra Noua
Restaurante aprox. 1044 m
parks
Teren sportiv
Recreere aprox. 1049 m
shopping
CRIS-TIM
Supermarket/Mall aprox. 1841 m

Proprietăți similare

Apartament cu 4 camere semidecomandat în Băneasa
685.000 € + TVA
București, Băneasa
4 camere
260 mp
Parter
Apartament cu 5 camere decomandat, mobilat în Băneasa
750.000 €
București, Băneasa
5 camere
200 mp
Etaj 2
Apartament cu 4 camere decomandat în Băneasa
780.000 € + TVA
București, Băneasa
4 camere
206 mp
Etaj 3
Apartament cu 5 camere decomandat în Băneasa
690.000 € + TVA
București, Băneasa
5 camere
211 mp
Etaj 1
Apartament cu 4 camere decomandat în Băneasa
780.000 € + TVA
București, Băneasa
4 camere
206 mp
Etaj 3 / 6
Apartament cu 3 camere decomandat în Floreasca
699.000 € + TVA
București, Floreasca
3 camere
128 mp
Etaj 2
Apartament cu 3 camere decomandat în Floreasca
690.000 € + TVA
București, Floreasca
3 camere
112 mp
Parter / 5
Apartament cu 4 camere decomandat, mobilat în Floreasca
749.999 €
București, Floreasca
4 camere
145 mp
Etaj 4 / 5
Apartament cu 4 camere semidecomandat în Floreasca
705.000 €
București, Floreasca
4 camere
166 mp
Etaj 4

Abonează-te la newsletter să fii primul care primește cele mai noi recomandări de proprietăți și sfaturi de la experți.