Apartament 4 camere 83mp + 63mp curte | 0 comision | Sisesti

385.000 €

Băneasa, Bucureşti

Nr. camere:
4
Suprafață utilă:
83 mp
Etaj:
Parter
An construcție:
2020

Descriere apartament

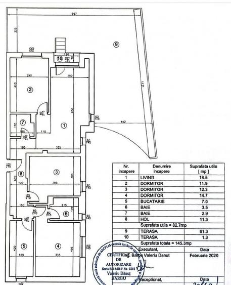
0 Comision. Va oferim pentru achizitie fara comision un apartament de 4 camere de 83mp plus 63mp curtea localizat in Bucuresti, pe Soseaua Sisesti intr-un bloc finalizat in 2020. Apartamentul se vinde complet mobilat, partial utilat impreuna cu 2 locuri de parcare in subteran. Asa cum v-am obisnuit: - toate ofertele Monga Imobiliare sunt fara comision din partea cumparatorului - pentru ca iubim transparenta, toate preturile afisate de Monga Imobiliare includ TVA (daca se aplica). Pretul afisat de noi este intotdeauna pretul final pe care il vei achita. Acceseaza Monga Imobiliare (Monga RO) pentru mai mai multe poze si pentru intreg portofoliul nostru de case si apartamente din Otopeni, Tunari, Balotesti, Corbeanca, Pipera si nordul Bucurestiului. Punctul forte al acestui apartament il reprezinta locatia lintr-o zona premium din nordul capitalei. Se vinde mobilat si partial utilat ceea ce permite a fi utilizat imediat cu investitii minime. Despre spatiu Accesul se face intr-un hol ce comunica cu bucataria, un dormitor matrimonial cu baie proprie, inca doua dormitoare, o baie si zona de living. Din living se acceseaza curtea. Se vinde finisat si mobilat impreuna cu o parte din electrocasnice. Utilitati: - blocul este conectat la toate utilitatile. - centrala proprie Alte detalii: - constructie solida din beton armat - mobilat si partial utilat - 2 locuri de parcare in subteran Despre locatie: - in aprpiere avem zone comerciale, restaurante, transport in comun. Apeleaza cu incredere la Monga Imobiliare. Suntem alaturi de tine pana la finalizarea tranzactiei si te ajutam sa treci cu incredere si in cunostinta de cauza prin toti pasii necesari. Te putem ajuta in pregatirea documentelor, selectia notarului, obtinerea finantarii, si altele. Te asteptam sa ne contactezi..
Citește mai mult Citește mai puțin
Mobilat Curte Aer condiționat Calorifere Centrală proprie Bine întreținut (Bună)

Detalii apartament

ID anunț: 2559663 Actualizat în: 24 Martie 2026
Nr. camere: 4
Suprafață utilă: 83 mp
Suprafață utilă totală: 83 mp
Etaj: Parter
Nr. băi: 2
An construcție: 2020

Istoric preț

Facilități

Utilități
Curent Apă Canalizare Gaze
Sistem încălzire
Centrală proprie Calorifere
Bucătărie
Mobilată Parțial utilată
Mobilat
Mobilat
Podele
Parchet Gresie
Stare interior
Stare bună
Amenajare străzi
Asfaltate

Puncte de interes

Mijloace transport
transport
Statia Drumul Regimentului linii : 205
Mijloace transport aprox. 101 m
transport
Statia Darmanesti, linia 205
Mijloace transport aprox. 382 m
transport
Statia Piscul Radului, linia 205
Mijloace transport aprox. 425 m
transport
Statia Oaspetilor, linia 261
Mijloace transport aprox. 572 m
Școală
education
International School for Primary Education, Bucharest (en)
Învățământ aprox. 820 m
education
Scoala Generala Nr. 8
Învățământ aprox. 883 m
education
International School for Primary Education
Învățământ aprox. 899 m
education
Universitatea Bioterra
Învățământ aprox. 1009 m
Recreere
restaurants
Vatra Noua
Restaurante aprox. 589 m
parks
Parc
Recreere aprox. 774 m
shopping
CRIS-TIM
Supermarket/Mall aprox. 1744 m
shopping
Lidl
Supermarket/Mall aprox. 1914 m

Proprietăți similare

Apartament cu 3 camere decomandat, mobilat în Băneasa
380.000 €
București, Băneasa
3 camere
123 mp
Parter
Apartament cu 4 camere decomandat în Băneasa
420.000 € + TVA
București, Băneasa
4 camere
141,41 mp
2025
Apartament cu 4 camere decomandat, mobilat în Băneasa
390.000 € + TVA
București, Băneasa
4 camere
113 mp
Etaj 2
Apartament cu 3 camere decomandat, mobilat în Băneasa
420.000 €
București, Băneasa
3 camere
147 mp
Parter
Apartament cu 3 camere decomandat, mobilat în Băneasa
350.000 € + TVA
București, Băneasa
3 camere
122,51 mp
2025
Apartament cu 4 camere semidecomandat, mobilat în Băneasa
350.000 €
București, Băneasa
4 camere
109 mp
Etaj 3
Apartament cu 3 camere decomandat în Băneasa
350.000 € + TVA
București, Băneasa
3 camere
126 mp
Etaj 1
Apartament cu 3 camere decomandat în Băneasa
379.000 €
București, Băneasa
3 camere
83 mp
Etaj 2
Apartament cu 4 camere în Băneasa
355.000 €
București, Băneasa
4 camere
128 mp
Etaj 3

Abonează-te la newsletter să fii primul care primește cele mai noi recomandări de proprietăți și sfaturi de la experți.