1

Apartament 3 camere in ansamblu nou/ 92 mp+ terasa 29mp/ Comision 0%

295.000 € + TVA

Băneasa, Bucureşti

Nr. camere:
3
Suprafață utilă:
91,95 mp
Etaj:
2 / 3
An construcție:
2025
Nr. niveluri:
3

Descriere apartament

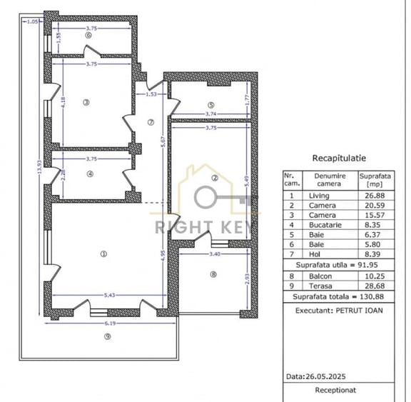
Apartament modern de 3 camere, situat intr-un ansamblu rezidential nou, cu regim de inaltime P+3 in Baneasa. Locuinta este ideala pentru cei care isi doresc confort, lumina naturala si acces rapid catre cele mai importante puncte din nordul Capitalei. Disponibil imediat. Cu o suprafață utilă de 92 mp, apartamentul se remarcă prin: - Suprafețe generoase și spațiu luminos - Living generos cu spațiu de relaxare și dining - Bucătărie închisă - 2 dormitoare spațioase, dintre care unul matrimonial cu baie proprie - 2 băi moderne cu finisaje premium - Balcon 10 mp si o terasa de 28 mp – perfect pentru momente de relaxare Avantaje ansamblu: -proiect nou, cu arhitectura moderna si spatii aerisite; -zona exclusiv rezidentiala, linistita si bine conectata; -acces rapid catre DN1, aeroport, scoli internationale, centre comerciale si parcuri; -ideal atat pentru locuire, cat si pentru investitie. - dotări și finisaje premium Pretul apartamentului este de 295.000 +TVA Va asteptam la vizionare!
Citește mai mult Citește mai puțin
Confort 1 Decomandat Nemobilat Centrală proprie Bine întreținut (Bună)

Detalii apartament

ID anunț: 4124094 Actualizat în: 10 Aprilie 2026
Nr. camere: 3
Suprafață utilă: 91,95 mp
Suprafață utilă totală: 91,95 mp
Compartimentare: Decomandat
Confort: 1
Etaj: Etaj 2 / 3
Nr. băi: 2
An construcție: 2025
Regim înălțime: P+3E

Istoric preț

Facilități

Pereți
Vopsea lavabilă Faianță
Podele
Parchet Gresie
Ușă intrare
Parchet Metal Lemn
Uși interior
Lemn
Stare interior
Stare bună
Izolații termice
Exterior
Ferestre cu geam termopan
Aluminiu Lemn
Contorizare
Apometre Contor gaz
Mobilat
Nemobilat
Facilități imobil
Interfon
Utilități
Curent Apă Canalizare Gaze
Sistem încălzire
Centrală proprie
Amenajare străzi
Asfaltate

Puncte de interes

Mijloace transport
transport
Apicola
Mijloace transport aprox. 102 m
transport
statie Apicola 605, 301, 112
Mijloace transport aprox. 134 m
transport
statie ROMAERO 205, 261, 335, N113
Mijloace transport aprox. 285 m
transport
Piata Baneasa
Mijloace transport aprox. 404 m
Școală
education
Gradinita
Învățământ aprox. 315 m
education
Grup Scolar Industrial Henri Coanda
Învățământ aprox. 319 m
education
Parc avioane Grup Scolar de Aeronautica "H. Coanda"
Învățământ aprox. 345 m
education
Gradinita 238 Bucuresti
Învățământ aprox. 357 m
Recreere
restaurants
EL BACHA Lebanese Restaurant
Restaurante aprox. 203 m
shopping
Mega Image
Supermarket/Mall aprox. 342 m
shopping
Complexul comercial Baneasa
Supermarket/Mall aprox. 363 m
parks
Parc
Recreere aprox. 686 m

Proprietăți similare

Apartament cu 3 camere în Băneasa
302.500 €
București, Băneasa
3 camere
85,11 mp
2025
Apartament cu 3 camere decomandat, mobilat în Băneasa
280.000 €
București, Băneasa
3 camere
75 mp
Etaj 3 / 4
Apartament cu 4 camere semidecomandat în Băneasa
320.000 €
București, Băneasa
4 camere
109 mp
Etaj 3
Apartament cu 4 camere decomandat, mobilat în Băneasa
320.000 €
București, Băneasa
4 camere
139 mp
Etaj 3
Apartament cu 3 camere semidecomandat în Băneasa
320.000 €
București, Băneasa
3 camere
79,3 mp
Parter
Apartament cu 3 camere decomandat, mobilat în Băneasa
269.990 €
București, Băneasa
3 camere
84 mp
Etaj 3 / 6
Apartament cu 3 camere semidecomandat în Băneasa
315.360 €
București, Băneasa
3 camere
73,5 mp
Etaj 2
Apartament cu 3 camere decomandat, mobilat în Băneasa
295.000 €
București, Băneasa
3 camere
80 mp
Etaj 5
Apartament cu 3 camere decomandat în Băneasa
268.000 € + TVA
București, Băneasa
3 camere
107 mp
Etaj 1 / 3

Abonează-te la newsletter să fii primul care primește cele mai noi recomandări de proprietăți și sfaturi de la experți.