REA1028374 3 camere - Baneasa-Antena 1 - parcare inclusa - terasa

299.000 €

Băneasa, Bucureşti

Nr. camere:
3
Suprafață utilă:
99 mp
Etaj:
2 / 4
An construcție:
2011
Nr. niveluri:
4

Descriere apartament

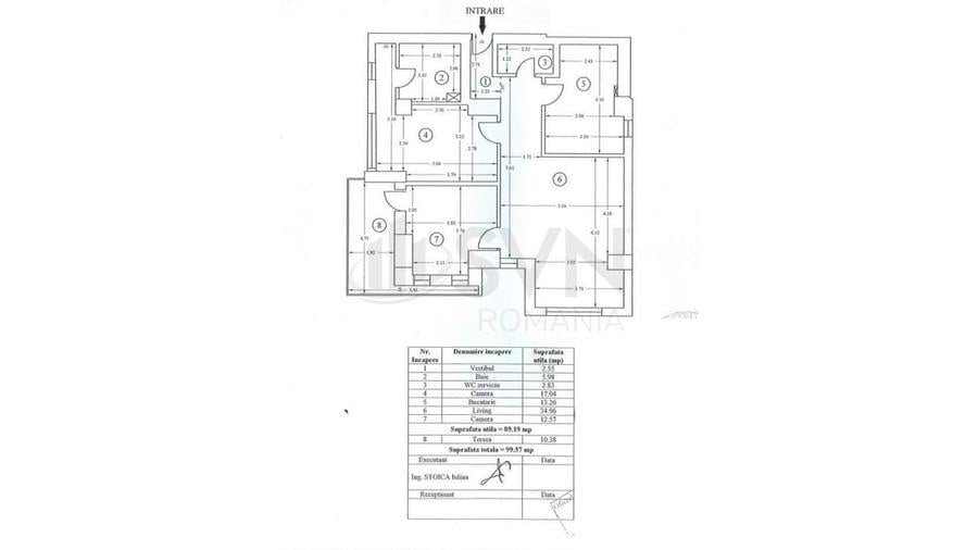
SVN Romania va propune spre vanzare un apartament cu 3 camere situat in cartierul Baneasa, in spatele fostului sediu Antena 1. Proprietatea are o suprafata totala de 99,57 mp, din care 10,38 mp reprezinta suprafata terasei. Apartamentul este situat la etajul 2 si beneficiaza de o orientare sud-vest, fiind foarte luminos pe tot parcursul zilei. Dispune de finisaje moderne, 2 bai, centrala termica proprie, aer conditionat si bucatarie complet mobilata si utilata. Mobilierul executat la comanda din sufragerie, bucatarie, dormitor si hol este inclus in pret, oferind un plus de confort si functionalitate. In plus, apartamentul beneficiaza de un loc de parcare in garajul subteran al cladirii, precum si de o boxa de depozitare, iar blocul este dotat cu lift. Strada este una linistita, fara trafic intens, aflata in imediata apropiere a lacului Baneasa. O alegere ideala pentru cei care cauta un spatiu modern, luminos si bine compartimentat intr-o zona linistita si bine conectata. Pentru mai multe informatii, nu ezitati sa ne contactati.
Citește mai mult Citește mai puțin
Confort 1 Semidecomandat Aer condiționat Calorifere Centrală proprie Beci

Detalii apartament

Actualizat în: 12 Mai 2026 ID anunț: 1309715
Nr. camere: 3
Suprafață utilă: 99 mp
Suprafață utilă totală: 99 mp
Compartimentare: Semidecomandat
Confort: 1
Etaj: Etaj 2 / 4
Nr. băi: 2
An construcție: 2011
Regim înălțime: P+4E

Istoric preț

Facilități

Pereți
Faianță
Podele
Gresie Parchet
Izolații termice
Exterior
Ferestre cu geam termopan
PVC
Utilități
Gaze
Sistem încălzire
Centrală proprie Calorifere
Climatizare
Aer condiționat
Bucătărie
Mobilată
Alte spații utile
WC Serviciu Boxă la subsol
Facilități imobil
Interfon Lift

Puncte de interes

Mijloace transport
transport
statie Pod Baneasa 131, 205, 261, 335, N113, 304
Mijloace transport aprox. 421 m
transport
Gara Baneasa
Mijloace transport aprox. 538 m
transport
statie Gara Baneasa 131, 205, 261, 335, N113, 304
Mijloace transport aprox. 662 m
transport
Aeroportul Baneasa / Soseaua Bucuresti-Ploiesti statie 205, 261, 605, 301, 112
Mijloace transport aprox. 676 m
Școală
education
Scoala Nr. 6
Învățământ aprox. 581 m
education
Scoala Generala nr. 6
Învățământ aprox. 581 m
education
Scoala Generala nr 6
Învățământ aprox. 581 m
education
Sala de sport Sc. Gen. 7
Învățământ aprox. 653 m
Recreere
restaurants
Clubul Sporturilor Tehnico-aplicative a Mun.Bucuresti
Restaurante aprox. 402 m
shopping
Auto Boca
Supermarket/Mall aprox. 492 m
parks
Loc de Joaca
Recreere aprox. 558 m
shopping
Gulliver
Supermarket/Mall aprox. 563 m

Proprietăți similare

Apartament cu 2 camere decomandat, mobilat în Băneasa
270.858 €
București, Băneasa
2 camere
60 mp
Etaj 9
Apartament cu 3 camere decomandat în Băneasa
302.500 €
București, Băneasa
3 camere
85,11 mp
Etaj 2
Apartament cu 3 camere decomandat în Băneasa
269.900 €
București, Băneasa
3 camere
84 mp
Etaj 5
Apartament cu 2 camere decomandat în Băneasa
275.000 €
București, Băneasa
2 camere
74 mp
Etaj 1
Apartament cu 2 camere decomandat în Băneasa
273.500 €
București, Băneasa
2 camere
71 mp
Etaj 1
Apartament cu 3 camere semidecomandat, mobilat în Băneasa
299.000 €
București, Băneasa
3 camere
94 mp
Etaj 5
Apartament cu 3 camere decomandat, mobilat în Băneasa
289.891 €
București, Băneasa
3 camere
63 mp
Etaj 8
Apartament cu 2 camere decomandat în Băneasa
275.000 €
București, Băneasa
2 camere
90 mp
Etaj 1
Apartament cu 2 camere decomandat în Băneasa
280.000 €
București, Băneasa
2 camere
90,4 mp
Etaj 1

Abonează-te la newsletter să fii primul care primește cele mai noi recomandări de proprietăți și sfaturi de la experți.