Apartament 3 camere Aviatiei | Imobil 2025 | Parcare

€ 260.000 + TVA

Băneasa, Bucureşti

Nr. camere:
3
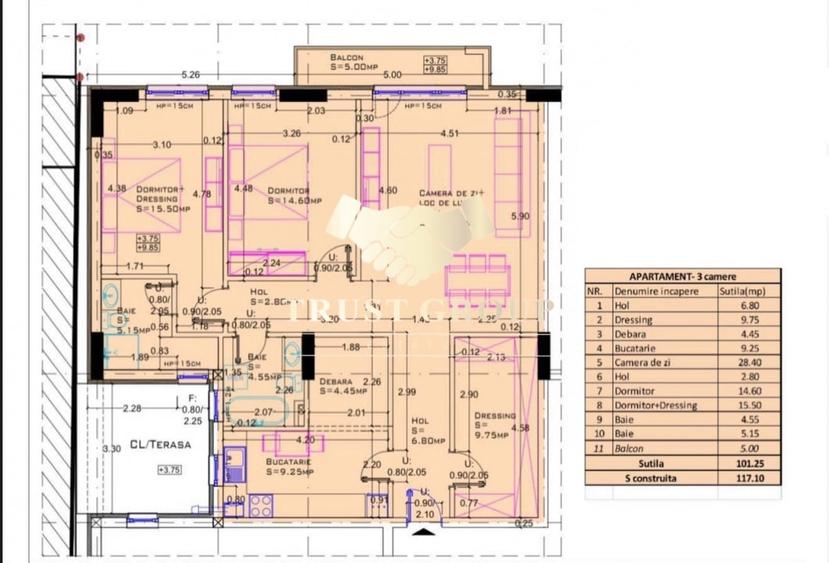
Suprafață utilă:
102 mp
Etaj:
3 / 5
An construcție:
2025
Nr. niveluri:
5

Descriere

Raportează anunț

Apartament 3 camere Aviatiei | Imobil 2025 | Parcare

Apartament 3 camere | 118 mp | Zona Aviatiei | Imobil Nou 2025 | Finisaje la alegere Va prezentam un apartament modern cu 3 camere, 118 mp, situat intr-un imobil premium finalizat in 2025, in una dintre cele mai apreciate zone ale Capitalei – Aviatiei. Proprietatea este ideala atat pentru locuire, cat si pentru investitie, beneficiind de compartimentare decomandata, spatii generoase si posibilitatea de a personaliza finisajele interioare dupa propriul stil. Dormitoarele avand cate un dressing, oferind un plus de confort si functionalitate. Caracteristici ale imobilului Constructie realizata cu materiale premium, atentie la detalii si standarde ridicate de siguranta Rampa de acces in garaj dotata cu sistem de degivrare – perfect pentru sezonul rece Balcoane cu design modern, balustrade din sticla securizata dubla Imobil racordat complet la gaze, curent, apa si canalizare Structura solida: Beton B400, zidarie exterioara/interioara Porotherm Austria, fier beton de calitate superioara Tamplarie tripan cu 7 camere pentru o eficienta energetica ridicata Fatada CAPAROL Dalmatina Ignifug – durabilitate si protectie sporita Lift modern Schindler, 6 persoane – deja functional Dotari interioare premium Fiecare apartament este complet decomandat Incalzire in pardoseala TECCE (Germania) Instalatii electrice GEWISS Sistem de canalizare antifonat, pentru confort acustic Finisaje alese de cumparator in colaborare cu Delta Studio: gresie, faianta, parchet, usi interioare, obiecte sanitare etc. Centrala termica proprie Usi de intrare Safe, inchidere in 3 puncte Glafuri din granit Casa scarii finisata cu granit si marmura Contorizare 100% separata Inaltime camere: 2.85 m Parcare Parcari disponibile in subsol, contra cost La pretul afisat se adauga TVA ! Imaginile sunt cu titlu de prezentare .
Citește mai mult Citește mai puțin
ID anunț: 2987786 Actualizat în: 19 Ianuarie 2026
Nr. camere: 3
Suprafață utilă: 102 mp
Suprafață utilă totală: 102 mp
Compartimentare: Decomandat
Confort: 1
Etaj: Etaj 3 / 5
Nr. băi: 2
An construcție: 2025
Regim înălțime: P+5E

Istoric preț

Utilități

Utilități
Curent Apă Canalizare Gaze
Facilități
Terasă Lift

Proprietăți similare

Apartament cu 4 camere decomandat în Băneasa
€ 265.000
București, Băneasa
4 camere
92,13 mp
Etaj 2 / 4
Apartament cu 4 camere semidecomandat, mobilat în Băneasa
€ 278.000
București, Băneasa
4 camere
113 mp
Etaj 5 / 5
Apartament cu 3 camere decomandat în Băneasa
€ 250.000 + TVA
București, Băneasa
3 camere
85,11 mp
Etaj 2 / 3
Apartament cu 3 camere semidecomandat, mobilat în Băneasa
€ 260.000 + TVA
București, Băneasa
3 camere
80 mp
Etaj 7 / 10
Apartament cu 3 camere decomandat în Băneasa
€ 252.625
București, Băneasa
3 camere
101,05 mp
Etaj 1
Apartament cu 2 camere decomandat, mobilat în Băneasa
€ 234.500
București, Băneasa
2 camere
68,3 mp
Etaj 1
Apartament cu 3 camere decomandat în Băneasa
€ 285.000
București, Băneasa
3 camere
74 mp
Etaj 5 / 6
Apartament cu 3 camere semidecomandat, mobilat în Băneasa
€ 239.000
București, Băneasa
3 camere
107 mp
Etaj 3
Apartament cu 3 camere, mobilat în Băneasa
€ 249.900
București, Băneasa
3 camere
77 mp
Etaj 2

Abonează-te la newsletter să fii primul care primește cele mai noi recomandări de proprietăți și sfaturi de la experți.