Aviatiei | Nusco City | Faza 2 | luminos si bine pozitionat

170.000 € + TVA

Aviaţiei, Bucureşti

Nr. camere:
2
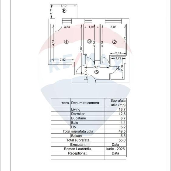
Suprafață utilă:
49,5 mp
Etaj:
5 / 10
An construcție:
2026
Nr. niveluri:
10

Descriere apartament

Va propun spre achizitionare un apartament foarte luminos situat in cadrul ansamblului Nusco City , unul dintre cele mai moderne proiecte rezidentiale din nordul Bucurestiului. Complexul este situat în nordul orașului, chiar în inima zonei de business a Bucureștiului și în imediata apropiere a zonelor Aviației și Floreasca, între stațiile de metrou Pipera și Aurel Vlaicu, la mică distanță de Promenada Mall și de cele mai mari clădiri de birouri din zonă. Apartamentul este pozitionat la etajul 5 din blocul 2A, este orientat catre SV si are o vedere libera catre zonele adiacente liniștite ale complexului si catre Sky Tower. Dispune de o suprafata utila de 50 mp la care se adauga un balcon larg de 5 mp. Compartimentarea este eleganta si eficienta: living luminos cu iesire catre balcon, bucatarie inchisa, dormitor larg, baie moderna cu walk-in shower si hol cu spatii de depozitare. Beneficiaza de finisaje si dotari Premium: -inchideri exterioare cărămidă 30cm si termosistem PEX 10 cm -tamplarie aluminiu Schuko -compartimentări interioare caramida 15 cm -incalzire in pardoseala cu centrala proprie Viessman–Vitodens Clasa A -parchet triplustratificat Haro Germania Oak Light White -placari ceramice Cristacer Spania - Erastone Dark Grey -obiecte sanitare Ideal Standard Italia -usi interior Pinum -climatizare AC Mitsubishi. Complexul este prevazut cu 15.000 mp de spații verzi amenajate spectaculos cu plante înalte și copaci, străzi și alei interioare largi, terase generoase, locuri de joacă pentru copii, locuri de parcare pentru biciclete. Apartamentul dispune si de un loc de parcare subteran care se poate achizitiona separat la pretul de 25.000 E+TVA. Vizionarile se pot efectua incepand cu data de 20 Februarie. Pret 170.000 E+TVA Tranzactionare prin contract de vanzare-cumparare sau cesiune, proprietar firma cu posibilitate de taxare inversa.
Citește mai mult Citește mai puțin
Confort 1 Decomandat Nemobilat Centrală proprie

Detalii apartament

ID anunț: 3419850 Actualizat în: 09 Februarie 2026
Nr. camere: 2
Suprafață utilă: 49,5 mp
Suprafață utilă totală: 49,5 mp
Compartimentare: Decomandat
Confort: 1
Etaj: Etaj 5 / 10
Nr. băi: 1
An construcție: 2026
Regim înălțime: P+10E

Istoric preț

Facilități

Pereți
Faianță Vopsea lavabilă
Podele
Gresie Parchet
Ușă intrare
Parchet Lemn Metal
Uși interior
Lemn
Izolații termice
Exterior
Contorizare
Apometre Contor gaz
Mobilat
Nemobilat
Dotări imobil
Acoperiș Interfon Spații agrement Videointerfon
Sistem încălzire
Centrală proprie
Amenajare străzi
Iluminat stradal

Puncte de interes

Mijloace transport
transport
"Platforma Pipera" RATB terminal (en)
Mijloace transport aprox. 157 m
transport
Platforma Industriala Pipera (Coborare)
Mijloace transport aprox. 179 m
transport
Platforma Industriala Pipera (Urcare)
Mijloace transport aprox. 184 m
transport
Statia Platforma Pipera, linia 16,36
Mijloace transport aprox. 209 m
Școală
education
Colegiul Tehnic Edmond Nicolau, fostul Electronica
Învățământ aprox. 223 m
education
Grupul Scolar Industrial Constantin Brancusi (en)
Învățământ aprox. 323 m
education
Gradinita SOS Satul Copiilor
Învățământ aprox. 873 m
education
Scoala Generala Nr. 12
Învățământ aprox. 902 m
Recreere
restaurants
Casa Vera
Restaurante aprox. 129 m
parks
Parc
Recreere aprox. 170 m
shopping
Carrefour Market
Supermarket/Mall aprox. 426 m
shopping
Carrefour
Supermarket/Mall aprox. 504 m

Proprietăți similare

Apartament cu 2 camere decomandat, mobilat în Aviației
173.000 €
București, Aviației
2 camere
54 mp
Etaj 1 / 4
Apartament cu 2 camere decomandat, mobilat în Aviației
158.000 €
București, Aviației
2 camere
50 mp
Etaj 4 / 4
Apartament cu 2 camere, mobilat în Aviației
184.000 € + TVA
București, Aviației
2 camere
67 mp
Etaj 1 / 11
Apartament cu 2 camere decomandat în Aviației
169.500 €
București, Aviației
2 camere
50 mp
Etaj 11
Apartament cu 2 camere semidecomandat în Aviației
159.900 €
București, Aviației
2 camere
Etaj 5
2019
Apartament cu 2 camere semidecomandat, mobilat în Aviației
185.000 €
București, Aviației
2 camere
55,5 mp
Etaj 8 / 11
Apartament cu 2 camere decomandat, mobilat în Aviației
185.000 €
București, Aviației
2 camere
50 mp
Etaj 1
Apartament cu 2 camere decomandat, mobilat în Aviației
185.000 €
București, Aviației
2 camere
50 mp
Etaj 1 / 4
Apartament cu 2 camere decomandat în Aviației
158.000 €
București, Aviației
2 camere
56 mp
Etaj 4 / 4

Abonează-te la newsletter să fii primul care primește cele mai noi recomandări de proprietăți și sfaturi de la experți.