Penthouse tip Duplex 3 camere | Garaj dublu | Arcul de Triumf | Clucerului

550.000 €

Arcul de Triumf, Bucureşti

Nr. camere:
3
Suprafață utilă:
100 mp
Etaj:
6 / 7
An construcție:
2002
Nr. niveluri:
7

Descriere apartament

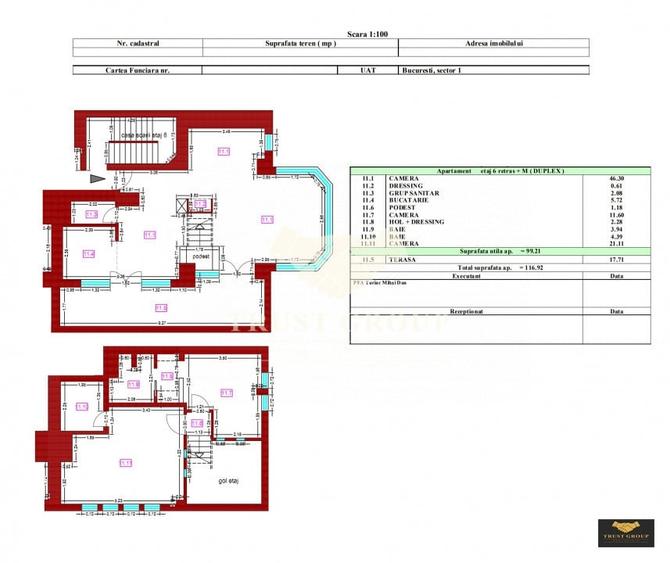
Penthouse de lux cu vedere panoramica in inima Zonei Arcului de Triumf. Descoperiti eleganta si rafinamentul in acest penthouse de tip duplex situat pe Bulevardul Maresal Averescu, oferind o priveliste impresionanta asupra orasului si a simbolurilor sale istorice. Amplasat la etajele 6 si 7 dintr-un imobil elegant cu 7 etaje construit in anul 2002, acest apartament este o oaza de lux si confort intr-unul dintre cele mai prestigioase cartiere din Bucuresti. Caracteristici principale: - Cu o suprafata utila de 100 de metri patrati, acest penthouse impresioneaza prin spatiile luminoase si aerisite, care au fost amenajate cu atentie pentru a oferi un cadru perfect pentru viata urbana moderna. - Etajul 6 gazduieste un living spatios si primitor, ideal pentru petrecerea timpului liber alaturi de familie si prieteni. Ferestrele ample permit luminii naturale sa patrunda in interior, creand o atmosfera placuta si relaxanta. - Bucataria deschisa este complet echipata si dispune de toate utilitatile necesare pentru a satisface orice cerinte culinare. Zona de dining este perfecta pentru a va bucura de mese delicioase in compania celor dragi. - Etajul 7 gazduieste doua dormitoare elegante, fiecare cu baie proprie si cu un dressing generos. Aici veti gasi linistea si confortul necesare pentru a va relaxa si odihni in intimitate. - Penthouse-ul dispune de o terasa generoasa de 18 metri patrati, oferind o panorama impresionanta asupra orasului. Aici puteti savura o ceasca de cafea in timp ce admirati apusurile spectaculoase sau puteti organiza seri romantice sub cerul instelat. - Apartamentul este vandut impreuna cu un garaj, dublu oferindu-va confort si siguranta pentru masinile dumneavoastra. - Situata intr-o zona centrala si bine conectata, aceasta proprietate va ofera acces facil la restaurante, magazine, parcuri si alte facilitati importante. Cu o istorie de inchiriere de succes si un potential de rentabilitate ridicat, acest apartament reprezinta o investitie ideala pentru cei care cauta sa obtina profit din proprietati imobiliare. Cu un istoric de inchiriere la un pret de peste 2500€, acest penthouse se remarca ca o optiune atragatoare pentru investitori. Cu un design elegant si o locatie privilegiata, acest penthouse reprezinta o oportunitate unica de a trai sau investi in inima Bucurestiului. Nu ezitati sa ne contactati pentru mai multe informatii sau pentru a programa o vizionare, astfel inca sa puteti vedea singuri potentialul acestei proprietati.
Citește mai mult Citește mai puțin
Confort 1 Nemobilat Ventiloconvectoare Centrală imobil Necesită renovare

Detalii apartament

ID anunț: 3280705 Actualizat în: 24 Martie 2026
Nr. camere: 3
Suprafață utilă: 100 mp
Suprafață utilă totală: 100 mp
Confort: 1
Etaj: Etaj 6 / 7
Nr. băi: 3
An construcție: 2002
Regim înălțime: P+7E

Istoric preț

Facilități

Pereți
Vopsea lavabilă Faianță
Podele
Parchet Gresie
Rulouri/Obloane
Aluminiu Lemn
Ușă intrare
Parchet Metal Lemn
Uși interior
Lemn
Stare interior
Necesită renovare
Izolații termice
Bloc izolat termic
Ferestre cu geam termopan
Aluminiu Lemn
Contorizare
Apometre Contor gaz
Mobilat
Nemobilat
Electrocasnice
Mașină de spălat Frigider Aragaz Mașină spălat vase TV Hotă
Alte spații utile
Terasă WC Serviciu
Facilități imobil
Interfon Lift
Utilități
Curent Apă Canalizare Gaze Mașină de spălat rufe Frigider Aragaz / Plită Mașină de spălat vase TV
Sistem încălzire
Centrală imobil
Climatizare
Ventiloconvectoare
Amenajare străzi
Asfaltate Iluminat stradal

Puncte de interes

Mijloace transport
transport
Statie Tramvai 41 - Casin
Mijloace transport aprox. 304 m
transport
Statia Piata Domenii, linia 205, 300, 282, N118, 20, 24, 42, 45
Mijloace transport aprox. 348 m
transport
Statia Manastirea Casin, linia 205,282
Mijloace transport aprox. 367 m
transport
Piata Domenii
Mijloace transport aprox. 371 m
Școală
education
Liceul Nicolae Iorga
Învățământ aprox. 197 m
education
Liceul Teoretic "Nicolae Iorga"
Învățământ aprox. 209 m
education
Afterschool inGenius
Învățământ aprox. 380 m
education
Facultatea de Horticultura
Învățământ aprox. 391 m
Recreere
restaurants
PERU
Restaurante aprox. 207 m
shopping
Mega Image Domenii Non-Stop
Supermarket/Mall aprox. 293 m
parks
Teren sportiv
Recreere aprox. 336 m
shopping
Branza Sibiu
Supermarket/Mall aprox. 341 m

Proprietăți similare

Apartament cu 3 camere semidecomandat, mobilat în Arcul de Triumf
594.999 €
București, Arcul de Triumf
3 camere
126 mp
Parter
Apartament cu 3 camere decomandat, mobilat în Arcul de Triumf
595.000 € + TVA
București, Arcul de Triumf
3 camere
127 mp
Parter / 9
Apartament cu 3 camere decomandat, mobilat în Arcul de Triumf
595.000 €
București, Arcul de Triumf
3 camere
126 mp
Parter / 8
Apartament cu 3 camere semidecomandat, mobilat în Arcul de Triumf
595.000 €
București, Arcul de Triumf
3 camere
126,04 mp
Parter / 10
Apartament cu 5 camere decomandat în Arcul de Triumf
499.000 €
București, Arcul de Triumf
5 camere
200 mp
Etaj 4 / 4
Apartament cu 5 camere semidecomandat în Arcul de Triumf
515.000 €
București, Arcul de Triumf
5 camere
191,08 mp
Etaj 4 / 4
Apartament cu 3 camere decomandat în Arcul de Triumf
549.900 €
București, Arcul de Triumf
3 camere
117 mp
Etaj 2 / 7
Apartament cu 3 camere decomandat, mobilat în Primăverii
579.900 €
București, Primăverii
3 camere
96 mp
Etaj 3 / 5
Apartament cu 4 camere semidecomandat în Floreasca
580.000 € + TVA
București, Floreasca
4 camere
116,07 mp
Etaj 2

Abonează-te la newsletter să fii primul care primește cele mai noi recomandări de proprietăți și sfaturi de la experți.