Apartament - 2 Camere - Tip Studio - 49mp - Parcare - Subcetate -Sanpetru Brasov

84.999 €

Sânpetru, Judeţul Braşov

Nr. camere:
2
Suprafață utilă:
49 mp
Etaj:
Parter / 4
An construcție:
2026
Nr. niveluri:
4

Descriere apartament

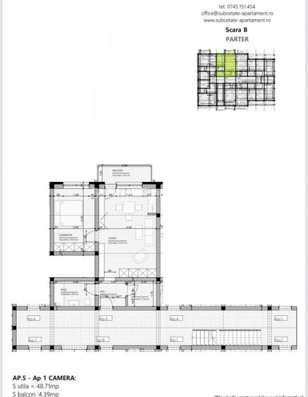
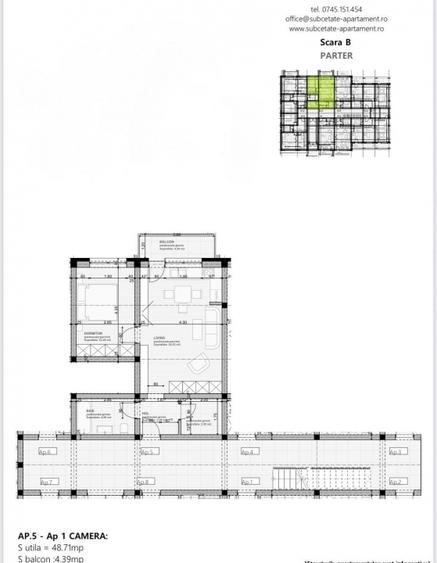
BSK Imobiliare va propune spre achizitie un apartament cu 2 camere tip studio, situat in ansamblul Subcetate City 2, pe Strada Marin Preda, in Sanpetru. Imobilul este amplasat la parter, in Vila 6, fiind finalizat si disponibil imediat pentru tranzactionare. Suprafata utila: 48,71 mp Balcon: 4,4 mp Parcare: loc de parcare privat inclus in pret Compartimentarea este practica si moderna: living cu bucatarie open-space, dormitor, baie, hol si dressing, oferind un plus de spatiu pentru depozitare si confort. Locuinta beneficiaza de incalzire in pardoseala si acces facil catre magazinele din cartier si statia de autobuz. Pret: 85.000 euro Modalitati de plata acceptate: cash sau credit Comision agentie: 2% Pentru informatii suplimentare si programarea unei vizionari, va rugam sa ne contactati!
Citește mai mult Citește mai puțin
Nemobilat Centrală proprie Bine întreținut (Bună)

Detalii apartament

ID anunț: 2694363 Actualizat în: 19 Aprilie 2026
Nr. camere: 2
Suprafață utilă: 49 mp
Suprafață utilă totală: 49 mp
Etaj: Parter / 4
Nr. băi: 1
An construcție: 2026
Regim înălțime: P+4E

Istoric preț

Facilități

Pereți
Vopsea lavabilă Faianță
Podele
Parchet Gresie
Ușă intrare
Parchet Metal PVC
Uși interior
Celulare PVC
Stare interior
Stare bună
Izolații termice
Exterior
Ferestre cu geam termopan
PVC
Contorizare
Apometre Contor gaz
Mobilat
Nemobilat
Facilități imobil
Interfon
Utilități
Curent Apă Canalizare Gaze
Sistem încălzire
Centrală proprie
Internet
Fibră optică
Amenajare străzi
Asfaltate Iluminat stradal Mijloace de transport în comun

Puncte de interes

Mijloace transport
transport
Stupini
Mijloace transport aprox. 1231 m
Școală
education
Colegiul Tehnic "Sfintii Voievozi Romani"
Învățământ aprox. 1980 m
Recreere
restaurants
Hotel restaurant STOP
Restaurante aprox. 1460 m

Proprietăți similare

Apartament cu 2 camere decomandat în Sânpetru
90.000 €
Județul Brașov, Sânpetru
2 camere
47 mp
Etaj 3
Apartament cu 2 camere semidecomandat în Sânpetru
84.103 €
Județul Brașov, Sânpetru
2 camere
50,2 mp
2025
Apartament cu 2 camere semidecomandat în Sânpetru
87.000 €
Județul Brașov, Sânpetru
2 camere
51 mp
Etaj 3
Apartament cu 2 camere, mobilat în Sânpetru
90.000 €
Județul Brașov, Sânpetru
2 camere
44 mp
Etaj 1
Apartament cu 2 camere semidecomandat, mobilat în Sânpetru
85.000 €
Județul Brașov, Sânpetru
2 camere
45,6 mp
2024
Apartament cu 2 camere decomandat, mobilat în Sânpetru
79.000 €
Județul Brașov, Sânpetru
2 camere
46 mp
Etaj 4
Apartament cu 2 camere în Sânpetru
91.900 €
Județul Brașov, Sânpetru
2 camere
46 mp
Parter
Apartament cu 2 camere semidecomandat, mobilat în Sânpetru
85.000 €
Județul Brașov, Sânpetru
2 camere
38 mp
Parter
Apartament cu 2 camere semidecomandat, mobilat în Sânpetru
89.900 €
Județul Brașov, Sânpetru
2 camere
45,6 mp
Etaj 2

Abonează-te la newsletter să fii primul care primește cele mai noi recomandări de proprietăți și sfaturi de la experți.