 
            
                            
                    
            
                2 săptămâni în urmă            
        
                    
                
                                    
                
                    9
                
            
            - Agenție
Apartament 2 camere , Zona Maternitatii , Bulevardul Tudor Vladimirescu
                
                    105.000 €
                    
                                    
            
        
            Central, Râmnicu Vâlcea
Descriere
        
        Raportează anunț
    
    
    
    
        
        
            
            
            
                
            
                                    
                            
        
        
    
                                        Sesizează o problemă
Apartament 2 camere , Zona Maternitatii , Bulevardul Tudor Vladimirescu
Apartament 2 camere , Zona Maternitatii , Bulevardul Tudor Vladimirescu
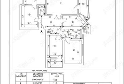
                                            Se vinde apartament 2 camere , situat la etajul 6 din 8 cu lift pe Bulevardul Tudor Vladimirescu . Detalii generale:  Suprafata utila: 56,90 mp  Suprafata totala: 62,40 mp Compartimentare :  Hol  Bucatarie cu acces catre balconul inchis  Baie  Dormitor cu acces catre balconul inchis  Living spatios Apartamentul este situat intr-o zona linistita cu acces rapid catre scoli , gradinite , magazine si centrul comercial . Apartamentul dispune de centrala proprie , geamuri termopan si se poate vinde mobilat sau nemobilat .   ID anun?
                                        
                                        
                                            
                                                Citește mai mult
                                                Citește mai puțin
                                            
                                        
                                    
            
                ID anunț: 9447529
            
                            
                    Actualizat în: 16 Octombrie 2025
                
                    
        
                            
                                Nr. camere:
                            
                            
                                2
                            
                        
                                                                                
                            
                                Suprafață utilă:
                            
                            
                                57 mp
                            
                        
                                                                                
                            
                                Suprafață utilă totală:
                            
                            
                                57 mp
                            
                        
                                                                                
                            
                                Etaj:
                            
                            
                                Etaj 8
                            
                        
                                    
                            Utilități
                                        
                                        
                                            Utilități
                                        
                                        
                                        
                                                            
                                                                                            
                                                    Apă
                                                
                                                                                    
                                    Proprietăți similare
Abonează-te la newsletter să fii primul care primește cele mai noi recomandări de proprietăți și sfaturi de la experți.
Căutări similare
- Apartamente de vânzare în Central
- Apartamente de vânzare în Râmnicu Vâlcea
- Apartamente de vânzare în Ostroveni
- Apartamente de vânzare în Nord
- Apartamente de vânzare în Agrement Ostroveni
- Apartamente de vânzare în Lenin Sud
- Apartamente de vânzare în Traian
- Apartamente de vânzare în Morilor
- Apartamente de vânzare în 1 Mai
- Apartamente de vânzare în Cartierul Nord
- Apartamente de vânzare în Cartierul Traian
- Apartamente de vânzare în Ferdinand-CPL
 
                            
                         
                            
                         
                            
                         
                            
                         
                            
                         
                            
                         
                            
                         
                            
                         
                            
                         
                            
                            
                                             
                            
                            
                                             
                            
                            
                                             
                            
                            
                                             
                            
                            
                                             
                            
                            
                                             
                            
                            
                                             
                            
                            
                                             
                            
                            
                                             
             
             
             
             
             
             
             
            